Aké zmeny by boli dobré v tomto projekte?

Zobraz úvodný príspevok
Zdravim. Rada by som si vypocula nejake pripomienky,rady a tipy na predbezny projekt. Ide mi hlavne o vela svetla v obyvacke a detskych izbach. Izby budeme zrejme este trosku zvacsovat. Dakujem
Odpovedať
@franci1986 dost malo kupelni na 4 spalne.
Odpovedať
@marrad zial bol to kompromis,viac by sme tam nevpratali
Odpovedať
@sousedekovci89 nevyhnutna,manzel vela pracuje aj z domu
Odpovedať
@lenkito10 to zvazujeme,ci dat vstup z garaze do technickej alebo miesto toho mat moznos regalov na celej ten stene v garazi,kde by boli dvere. Nad tymi detskymi este popremyslam
Odpovedať
@zltalienka manzel vstava okolo 5 a teraz to mame presne tak,ze skrina v spalni a to svietenie mobilom rano,ked ja spim🙈 to som si dala podmienku,ze satnik bude solo
Odpovedať
@franci1986 tak aspon dvere si dajte do toho satnika zo spalni 🙂 Este by bolo fajn,keby posuniete garaz zaroven s kuchynou a viete zvacsit detsku a zaroven vam vznikne prekryte zavetrie pred vchodovymi dverami 😊
Odpovedať
@franci1986 mohli by ste urobit vchod z garaze priamo do tej chodby dnu, vedla chodbovej skrine - myslim, ze to ocenite, je to velmi prakticke, nemusiet chodit cez predok a cez garazovu branu. A tiez sa mi zda praktickejsi satnik so vstupom priamo zo spalne... manzel by ta nemusel nijako rusit svetlom, ked si tam date plne dvere. Potom sa uz len pohrat s detailami (ja by som osobne dala urcite vacsie kuchynske okno, mozno skoro na celu sirku linky) a s usporiadanim zariadenia v detskych izbach, a myslim, ze to bude pekne.
Odpovedať
@zltalienka to v tej detskej nemusi byt cele vstavana skrina, moze to byt taka ulozna zostava so skrinou, kniznicou, policami na hracky, sportove potreby... podla mna deti ulozne priestory vyuziju.
Odpovedať
@maru_maruska zaiste. Takto poukladaná detská izba poskytuje rovnako veľa úložného priestoru ako tá pôvodná, plus sa vojde aj úzky regál, či knižnica na stenu za dverami, hoci som ju tam nekreslila. Navyše druhá detská izba sa o čosi zväčší. Radšej mať m² v izbe ako v chodbe, nemyslíš? @franci1986 mne sa nezdá ten nábytok, keď som sa lepšie prizrela. Skriňa rovnako široká ako posteľ, stôl užší ako skriňa?! Tak potom buď je skriňa minimálne 80cm hlboká alebo posteľ široká len 65cm? Alebo ako? Hádam tam máš nahodené normálne veľkosti nábytkov, nie detské verzie.
Odpovedať
@zuzana838 Niekomu to tak nemusí vyhovovať, naši majú tiež šatník samostatne a to ráno vstal otec a zavrel dvere na spálni a už tam nemusel ísť, už mama mohla spať v kľude a on sa vedel vychystať bez problémov, keď to mali samostatne 😉
Odpovedať
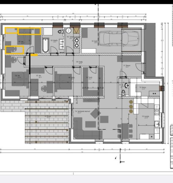
@zltalienka vyzera fajn to rozlozenie nabytku(zltym),len mi napada kam sa da pisaci stol este @maru_maruska Este mi skuste poradit ako zmensit kuchynu,zda sa mi zbytocne velka a bojim sa aby,tam nebol zbytocne hluchy priestor kde su tie barove stolicky.
Odpovedať
@franci1986 nemáš pôdorys s rozmermi?
Odpovedať
@franci1986 mne sa ta kuchyna zda uplne akurat, ta v predoslom navrhu sa mi prave zdala dost mala. Tu mas super dostatok pracovnych ploch a na tej stene, ktora susedi so spajzou, mozes dat vysoke skrinky. Ak nepotrebujete barovy pult, mozete ho zrusit, nebude to vybec vyzerat zle, ked to bude iba do U.
Odpovedať
@franci1986 v tej detskej by to podla mna bolo fajn tak, ako nakreslila zltalienka, ale s tym, ze postel by som dala do laveho horneho rohu pozdlz hornej steny (je prijemne, vidiet z postele na dvere, kto vchadza, ale zaroven nebyt nohami priamo do dveri), potom na zvysok tej steny oproti dveram dat satnikovu skrinu. Pisaci stol dat do laveho dolneho rohu pozdlz steny susediacej s druhou detskou (tym padom ti hned vchadzajuci clovek nevidi do monitora a sediaci za stolom vidi otocenim hlavy, kto vchadza), zaroven by tak napriklad sediac na posteli mohol obyvatel izby kukat film alebo videa s kamaratom, surodencom... menej hlboke policky na knihy, hracky by mohli byt v regali pozdlz steny za dverami (ak by sa tam vosli aspon 28 cm hlboke policky), alebo potom na plytkej nizkej polickovej skrinke pod oknom, akoby medzi postelou a stolom (mohla by vrchna doska tej policky zachadzat az pod stolovu dosku a vytvorit tak plochu na nabijacky, powerbanky, kable a pod.). Pri posteli by tak vznikla zase plocha ala nocny stolik. Prepac, neviem to na PC nejako rychlo nacrtnut, snad sa to da podla toho mojho popisu predstavit...
Odpovedať
@franci1986 kniznica alebo policova skrinka by sa asi zmestila aj medzi pisaci stol a dvere. Nebude to velka izba na tancovanie, ale pre pubertaka super, da sa to ulozit tak, aby sa tam pohodlne voslo vsetko potrebne.
Odpovedať
@franci1986 odhadom je kuchyňa široká 4,5-5m? Ak áno, je to dosť nepraktické pre prácu v kuchyni. Ale možno to Tebe takto vyhovuje. Čo sa týka "hluchých miest" iste by sa dal pôdorys zmenšiť, ale ak si z veľkosťou domu spokojná a aj z cenou, čo to bude stáť, tak nie je čo riešiť.
Odpovedať
Článok sa načítava...
@maru_maruska ja som to pochopila a je to pekný návrh 🙂
Odpovedať
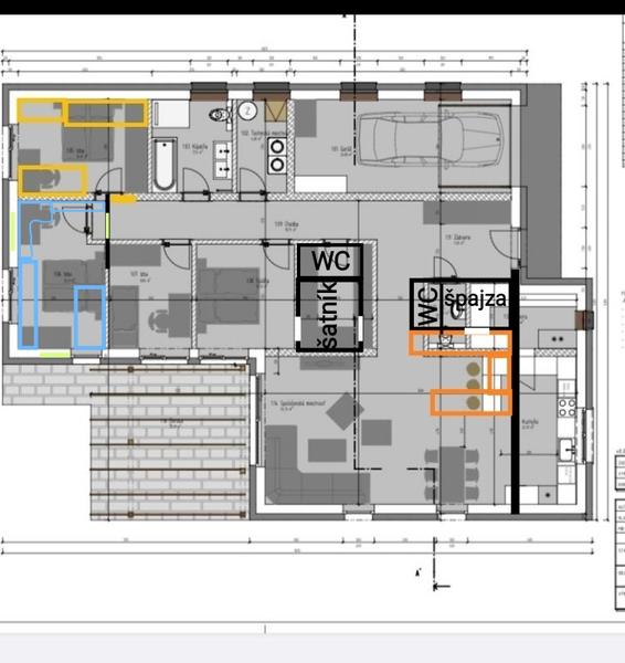
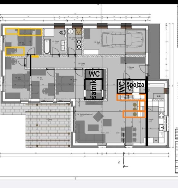
@zltalienka Alebo posunut ten blok wc + spajza akoby cely do kuchyne o nejakych 60 cm alebo meter a rozsirit si predsien. V predsieni podla mna je vzdy priestor nazvys iba vyhoda (ked sa vela ludi naraz chysta von, alebo pride navsteva, alebo viac uloznych priestorov), sirka kuchyne 3,9 sa mi zda zase dost prakticka na pohyb.
Odpovedať
@maru_maruska to sa mi celkom pozdava,premyslala som aj to wc prehodit do predsiene na tu stenu co susedi s garazou
Odpovedať
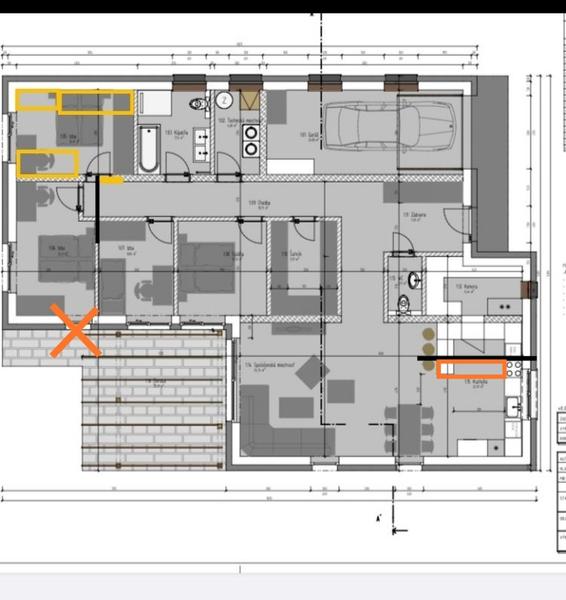
@zltalienka presne taka je sirka tej kuchyne a aj mne sa to zda vela. Premyslala som este zrusit ten barovy pult a dat tam ostrovcek. Ale stale mi tam pride vela hlucheho priestoru tam pri tej chodbicke
Odpovedať
@maru_maruska mna skor trapi ta druha izba,tym,ze su tam az dve okna,ci sa bude dat dobre zariadit ta
Odpovedať
@franci1986 ja by som to menšie okno z detskej izby nedávala. Izba bude dosť presvetlená i tak, bude sa dať lepšie zariadiť, zároveň dieťa nebude rušené prípadným hlukom z terasy a aj z vonku to bude krajšie vyzerať, keď tam nebudú až 3 rozdielne rozmery okien blízko pri sebe. Čo sa týka kuchyne, mne najviac vyhovuje takéto U, ale čo so zvyšným priestorom, to netuším. Na špajzu pri kuchyni mi to príde priveľké, zas robiť druhý "kumbalik" zo zádveria... no neviem Potrebuješ toľko priestoru? Keď počujem ceny stavebných materiálov, aj by som si každý m² navyše poriadne rozmyslela...
Odpovedať
@zltalienka suhlasim,preto by som najradsej tu kuchynu okresala. Asi takto nejako,zasunut tu komoru do kuchyne a zmensit tym kuchynu. Len neviem ci stale to kde sa napaja chodba na obyvacku nebude zbytocne hluche. Zrusenie okna som aj ja navrhoval,ale projektant tvrdil,ze to bude skarede. Este si to necham prejst hlavou
Odpovedať
@franci1986 ak chceš zmenšiť kuchyňu a aj chodbičku k dennej časti, dá sa to aj takto....wc samozrejme nechať len 1, podľa toho, či chceš viac miesta v špajzi alebo v šatníku. Bielym som naznačila, kde by mohli byť dvere do šatníka, a do špajze.
Odpovedať
@franci1986 😉
Odpovedať
Profilova fotka
ak by to malo byt zarovno, @zltallenka toto je velmi dobry napad na umiestenie, asi by mi to takto vyhovovalo viacej ako ten prvotny navrh
Odpovedať
@zltalienka to vyzera super,len jednu chybicku to ma. Lebo povodne sme to aj my mali zarovnane a napokon sme to museli vystrkovat,lebo sa velmi skrati obyvacka. Teraz mala okolo 10m,co sq ki nezda vela a ked sa skrati,tak by to bolo len nejak do 8. Ach,to je zacarovany projekt,niekde vzdy nieco chyba🙈
Odpovedať
@franci1986 takto skrátená obývačka by mala 8m do dĺžky? Za mňa je to úplne v pohode. 3 metre pre stôl, 5 metrov pre gauč.
Odpovedať
@zltalienka hej okolo 8m. Mne sa to zda zas kratke,ale uz asi moc vymyslam🙈 lebo ked beriem,ze 80% casu travime v obyvacke a keby tam chcem napr este kreslo,tak to tam uz nevpracem. Inak sa mi tvoj napad velmi paci. Este porad ako zariadit tu druhu detsku,to okno zrusime,rozhodli sme sa. Stale ma mata,zvacsit tie izby aspon o pol metra,ale uz sa vsetko tak navysuje…
Odpovedať
@franci1986 Detská izba: takto my zariadime 4,3mx3m izbu pre syna. Dá sa to aj s 2 oknami, ale je to obmedzujúce. Stôl bude rohový, pc na tej hlbšej časti. Za dverami úzka polička na všetko možné. Okná a dvere sú tiež naznačené. Čo sa týka denného priestoru, každý je zvyknutý na iné veľkosti, niekto zariaďuje 28m², niekto 38m², niekto 68m²....kto na čo má 😉
Odpovedať
Na pridanie príspevku sa musíte prihlásiť.
Presunutím fotiek môžete zmeniť ich poradie

Nenašli ste čo ste hľadali?