Aké zmeny by boli dobré v tomto projekte?

Zobraz úvodný príspevok
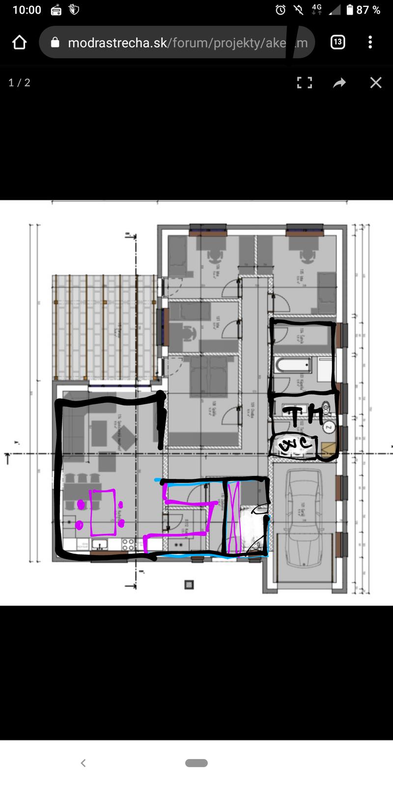
Zdravim. Rada by som si vypocula nejake pripomienky,rady a tipy na predbezny projekt. Ide mi hlavne o vela svetla v obyvacke a detskych izbach. Izby budeme zrejme este trosku zvacsovat. Dakujem
Odpovedať
@zltalienka dom nakreslil podla nasho navrhu,tak som si to predstavovala,ze denna a nocna cast bude oddelena. Aj to,ze nechcem,aby mi pripadna navsteva musela chodit po celom dome,preto to wc na chodbe. A dalsia podmienka,aby mali deti v izbach na ucenie dost denneho svetla. Je to len prvy nacrt,mame si spisat pripomienky a zmeny a tu uz tapam,lebo sa nerozumiem praktickym veciam,nikdy som dom nestavala🙈 Aj to co pises,ze dlha linka,to su presne tie veci na ktore som sa tu pytala,lebo sama si to nevsimnem a takto mozem o tom popremyslat. Nad dlzkou linky sa priznam ani neviem,ze by som mala rozmyslat. Pripdne ako premiestnit dvere alebo zmensit/zvacsit zadverie,aby sa tam vosla aj nejaka skrina atd.
Odpovedať
@franci1986 Toto je uplne normalna vec, my teraz napriklad by sme tiez niektore veci urobili uplne inak, ono jedna vec je ked je nieco na papieri a ine je to zase potom ked to je real. Ked byvas. 🙂
Odpovedať
@franci1986 nevieš pridať pôdorys, kde sú čitateľné aj rozmery miestností? Napríklad taká obývačka s kuchyňou má koľko? Odhadom 8x5 metrov? Vieš si to rozumne zariadiť? Linka je samostatná kapitola, to Ti bežný projektant riešiť nebude, len čosi nakreslí....aby bolo 😥. Na to si sadni a poriadne porozmýšľaj, poštuduj na nete, veľa informácií je dostupných.
Odpovedať
Hm, preco radsej nekslovite architekta, ako projektanta? Ten by vam z toho domu dostal omnoho viac... tu je vidiet, ze projektant sa nijako nezamysla nad zariadenim, usporiadanim nabytku, ergonomiou, pohybom ludi v izbach, dennymi cinnostami. Uz len ten detail, ze okno v jedalni nelicuje s jedalenskym stolom vela napovie o tom, akym sposobom (ne)rozmysla...
Odpovedať
Je napr. neprijemne sediet za stolom tam, ze mate za chrbtom dvere... je neprijemne mat stol rovno pred oknom, ak robte napr na NB, co deti teraz robia do skoly stale, maju konferencne hovory a pod... je neprijemne mat postel rovno oproti dveram... 5m dlha kuch. linka v jednom rade je neprakticka... okno v kupelni je na nelogickom mieste... mne to pride, ze tam to zariadenie a okna iba tak naklikal od buka do buka...
Odpovedať
@maru_maruska @franci1986 len chcem napísať, nám dom kreslil architekt, nie projektant. ALE, prvé návrhy mali okná, dvere, nábytok nahodené "len tak" .... keď vôbec boli 🤔. V prvých návrhoch išlo o pochopenie sa v celkovej koncepcie domu, nie o detaily. Umiestnenie okien a dverí sme riešili až keď bolo definitívne rozhodnuté aké šírky a dĺžky budú v každej miestnosti. Ešte napíšem, že keď architekt videl, že navrhnutá koncepcia domu vo viacerých bodoch nelicuje s tým, čo sme my chceli, tak daný návrh "neznásilňoval" ale vymyslel iný.
Odpovedať
Profilova fotka
@zltalienka to je fajn. Niekedy prekreslovanie nepomoze tak ako by clovek chcel a ten koncept je proste iny, vtedy je fakt najlepsie zmenit cely projekt. Mali ste dobreho projektanta
Odpovedať
@diousaa architekta.
Odpovedať
Profilova fotka
@franci1986 vzhladom na pozemok, by sa viac hodil iny typ L domu. Takto si zaclanate izbami dennu cast. Bud zarovnat dennu cast s izbami, alebo len mierne vysunut izby, ale skor vysunut dennu cast, mali by ste v nej V,J aj Z.
Odpovedať
@lenkito10 majú takto orientovaný pozemok, takže v lete budú mať prirodzene zatienené obývačkové okno voči silnému zapadajúcemu slnku a nebudú musieť komplikovane riešiť tienenie okien a v zime slnko zapadá presne oproti oknu v obývačke a oknám v detských izbách, takže si nič netienia. V tak otočenom dome, ako navrhuješ by slnko v zime v okne smerom na terasu ani nevideli 😞 a to je veľká nevýhoda. Nočná časť by bola v zime odkázaná na pár hodín slnečného svitu až keď by slnko vykuklo spozad dennej časti, takže minimálne spálňa by bola v zime tmavá a detská otočená na SV tiež. Ešte je otázka či by sa im takto otočený dom vošiel na pozemok. Šírka pozemku je u nich 23 metrov.
Odpovedať
Profilova fotka
Lahsie je sa pred slnkom skryt, na tie tri mesiace v roku, ako ho dostat do domu. V okoli budu stavby, nebudu mat velke horizonty. Detske na JZ. Mali sme jedalen na zapad, v okoli nebolo nic, velmi neprijemne pri veceri. Vtedy mi to vadilo. Dnes som rada ze nam svieti. Mozno o 10 rokov sa budeme schovavat pred horkom. V ich pripade by slnko dopadalo na tv a roh jedalne. V lete by tienili v obyvacke, v ostatne mesiace slnecne luce vyuzivali. Tak ci onak, vsetko ma svoje pre a proti. Toto som zabudla rano pridat.
Odpovedať
Ja nemam nic konstruktivne, len chcem poznamenat ze ten navrh je hrozny. Tiez sa prihovaram za oslovenie architekta nie projektanta. Pripadne ci ze jaspravim alebo odesk pozri nejakeho kludne aj zahranicneho - nech ti da idei a potom projektant uz nech to dotiahne na slovenske normy. BTW, je tam tolko rohov a vsetkeho, ze sa to bude aj strasne zle stavat.
Odpovedať
@zltalienka mne sa zda tiez to rozlozenie izieb vzhaldom na svetove strany fajn,ide mi hlavne o to slnko cez den v obyvacke a teds aj v tych detskych izbach
Odpovedať
@marekjahoda musim sa projektanta trochu zastat,on nakreslil len to co sme mu my povedali. Ze chceme dom do L,aj s garazou a na ktore strany ma byt orientovany,pocet izieb a teda nech sa zmesti na pozemok a zostane nam aj nejake miesto vzadu. Ale hovorim,sme s muzom neznali v tejto oblasti,nevieme si to velmi v reale predstavit ako bude prakticke to,co sme mu navrhli. Ze vela rohov,to mi ani nenapadlo…ako inak by sa to dalo potom riesit,akma byt dom do L?
Odpovedať
@lenkito10 to vyzera zaujimavo,ale tym pdom by sa orientacia voci svetovym stranam nemenila nie? A este mi napada,ze by vypadla spajza?lebo tu by som chcela
Odpovedať
@franci1986 skús si v návrhu od lenkito10 špajzu predstaviť medzi zádverím a kuchyňou. Myslím, že by mohla vojsť.
Odpovedať
Článok sa načítava...
Profilova fotka
@zltalienka hmmm podla mna hej. zalezi od toho, ako velku si ju predstavuju, no podla mna by to mohlo byt optimalne
Odpovedať
@franci1986 ved to je prave ta robota pre architekta, aby vam do vasich poziadaviek vymyslel dobru funkcnu dispoziciu, vy to nemate velmi podla coho vediet, lebo to vobec nie je lahke... ale vcera som tu niekde na streche videla projekt s podobnym podorysom, ako vas, idem ho skusit pohladat, mozno by vam sadol na pozemok...
Odpovedať
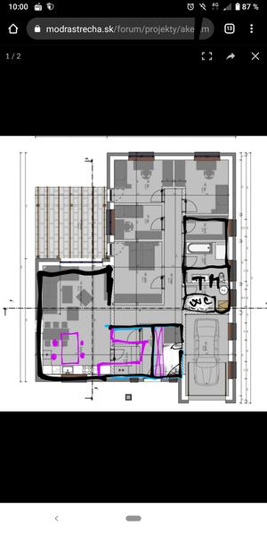
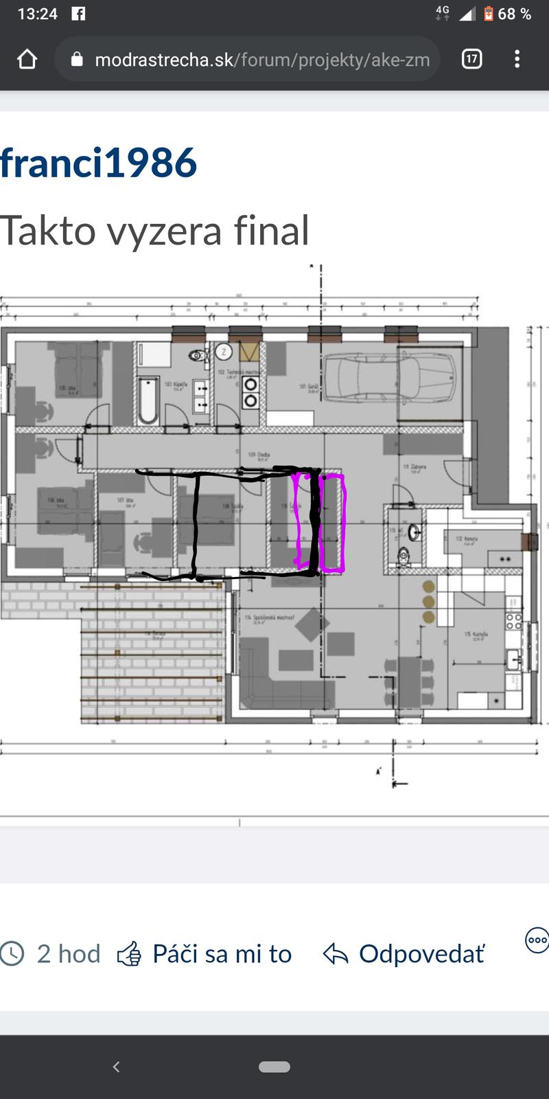
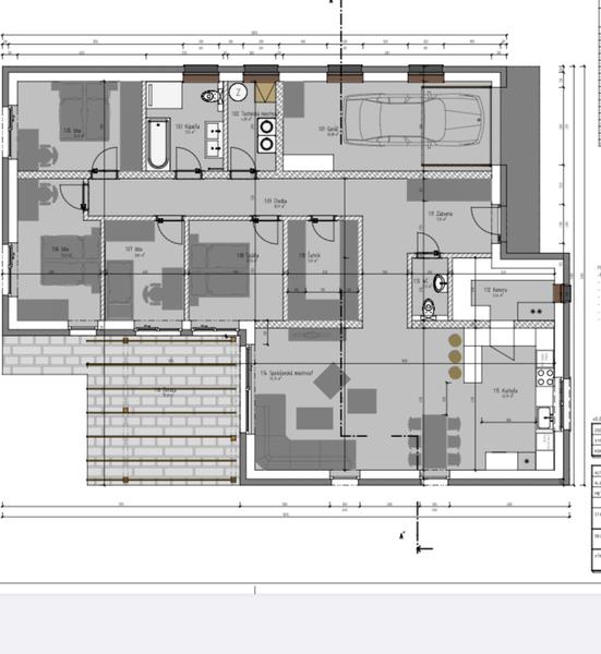
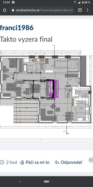
Takto vyzera final
Odpovedať
@franci1986 rohová detská izba s 2 oknami- pouvažovať či sú nevyhnutné obe okná. ostane tam veľmi málo priestoru na skrine.
Odpovedať
@franci1986 keď ste spokojní, nie je čo riešiť.
Odpovedať
Profilova fotka
@franci1986 Este by som oddelil chodbu, co ide do nocnej casti nejakym predelom s dennou, bude to take evidentnejsie predelenie a nebude vobec rusive ak budete mat navstevu a deti pojdu do kupelne alebo nieco. Budu mat aj oni aj vy klud.
Odpovedať
@drslavino myslite nejake mozno zasuvacie dvere?to znie fajn
Odpovedať
@sousedekovci89 tiez som velmi nebola za,ale vyzeralo to nepekne z terasy,ked tam to okno nebolo
Odpovedať
@zltalienka to uplne neviem 🙂 ale vzhladom tomu,ze chceme 5 izb.dom,tak sme museli robit kompromisy
Odpovedať
@franci1986 ktorá z tých 3 izieb s manželskou posteľou bude spálňa? Rozmery síce nevidím, ale zdajú sa mi všetky dosť natesno. Jedna z nich dokonca obsahuje iba posteľ, nie je tam ani skriňa a zrejme by ani nevošla.
Odpovedať
@zltalienka to bude spalna. Chceme tam len postel a nocne stoliky,ziadnu skrini ani komodu. Ta malicka hned za nou je pracovna a dve dalsie su detske. Maju kazda 12,4m2,co sa bojim,aby nebolo malo
Odpovedať
@franci1986 je ta pracovňa nevyhnutná? ak nie je nevyhnutná tak by som ju zrušil a využil na rozšírenie detských izieb 🙂
Odpovedať
Profilova fotka
Mame detske 12m2, je nam to akurat. Postacujuce. Lava izba je zmensena pre to, aby prava izba Mala skrinu za dverami. Skrina za dverami je prakticka, ale ci kvoli tej druhej izbe... Zariad si izby, pisaci stol oproti dveram.... Na ktory je vyhlad hned z vchodu... Tiez mam v spalni len postel... No tu by som zvazilz zrusit satnik a dat skrinu na chodbu a dalsiu skrinu do spalne, zmensit spalnu. Pristup z garaze do domu nebude?
Odpovedať
@franci1986 Ak je toto spálňa, potom nerozumiem usporiadaniu dverí detských izieb. Pre jedno dieťa nepotrebuješ vstavanú skriňu po celej stene, hlavne keď potom druhá detská vyjde taká s odskokmi. Čo sa týka spálne, keď vám to tak vyhovuje, za každým kúskom oblečenia chodiť cez chodbu do šatníka. Kým sú deti malé, budiš. Až vyrastú, budú k vám chodiť pubertálne návštevy vašich detí 😲 radšej by som prepojila šatník so spálňou, alebo návrh lenkito10.
Odpovedať
Na pridanie príspevku sa musíte prihlásiť.
Presunutím fotiek môžete zmeniť ich poradie

Nenašli ste čo ste hľadali?