Upravili by ste niečo na dispozícii??

Zobraz úvodný príspevok
Skúste poradiť či je vhodné takéto rozloženie a ak nie poraďte ako ho prerobiť. Ďakujem za všetky reakcie.
Odpovedať
aSam uvidis ze to nebude stacit, ale to clovek ziati az sa nastahuje. Vo vstupe sa nezmestite s kabatami bundami a topankami ani. V kupelni sa do skrinky da akurat kozmetika.
Odpovedať
@atlaska vo vstupe bude roldor rozdelený pre kabáty a boty v roldor v izbách a v šatníku budú bundy ktoré sa nenosia aktuálne tak to mame aj teraz v byte.A v kúpeľni budú aj čistiace tak ako aj teraz máme na to skrinku väčšinou sa používa skrinka pod umývadlom na kozmetiku je v zrkadle plus skrinka ďalšia zavesená na stene tak naozaj neviem prečo by sme sa nevosli. Teraz máme 70m2 a tam bude viac ako 113m2 takže sa nebojím ze by sme sa nezmestili... Plus v domčeku záhradnom bude kopec veci co sa týka korculi a tak.
Odpovedať
@atlaska Jsem na MS také rád za každou radu a to hlavně a ty na které se ptám. Ale on je opravdu každý člověk jiný a věřím, že když panco951 píše, že se vejdou, tak se vejdou. I když zkušenost od někoho kdo už v domě bydlí je samozřejmě dobrá. Taky nevidím moc rozdíl mezi bytem a domem v případě, že bude zahradní domek. Co se třeba týče kosmetiky, tak když si teď vystačím s jedním mýdlem, které používám na celé tělo a i na holení a k tomu jeden speedstick a holítko, tak do baráku si toho víc kupovat nebudu. Cestovat taky asi nezačnu, tak mi ten jeden bágl bude stačit i v tom domě. A pod..
Odpovedať
.
Odpovedať
@r4d3k74 Práveže naopak žena a aj ja mame toho veľa čo sa týka kozmetiky a tak ale teraz máme dva roldory doma kde sa veľa zmesti a v dome budeme mat v izbách na vstupnej chodbe v spálni dosť veľký šatník plus dve kupelne a jedno wc samostatné. V kúpeľni bude určite skrinka pod umývadlom a určite za zrkadlom a tak isto aj na stene bude nejaká to isté v kúpeľni pre decke izby a v samostatnom wc bude nad zabudovaným wc ďalšia skriňa na odkladanie veci typu wc papier a na umývanie tak ako aj vo WC pre spálňu. Treba vedieť premyslieť odkladací priestor a da sa všetko vymyslieť a porobit podľa mňa.
Odpovedať
ja by som taku technicku otazku k tym oknam rohovym, ako to je riesene prekladom nad oknami, nejako zapazene do protitlaku? ze co nakreslili architekti bude aj technicky realizovatelne ? obcas sa zabudne nejaka drobnost a uz to ide, napr. ked sa na papieri zasadi dom do pozemku ale zabudne sa na to, ze podlozie treba spevnit a frekventovana cesta s murom vedla.... videla som akurat cez vikend tieto velke okna a rohove, tak to mam v pamati, ale aj tak tam mali rozlahlu sedacku, tak okno nevyniklo ako malo
Odpovedať
Profilova fotka
@panco951 vidim, ze som niekomu riadne stupila na otlak. Nie nepoviem ti, kde byvam, pretoze to nemas daleko a na zaklade tvojich reakcii sudim, ze by si mi mohol prist rozbit hubu. Nic to ale nemeni na fakte, ze to je MALE (este nedaj boh ked budete 4ja) a nakoniec skoncis tak, ze aktualne nepotrebne bundy (a ine veci) nebudes skladovat v satniku, ale v tych dvoch bytoch v Bratislave, pretoze hentam sa jednoducho NEZMESTIS. Mozno to nezistis hned, ale po takych 2-3-4 rokoch urcite.
Odpovedať
V tych kupelniach budes rad ak tam na steny zavesis osusky a uteraky, nieto skrinky. Deti budu mat v skriniach aj spoľcenske hry hracky nejake ruksaky, nielen oblecenie. To tu potom budu o rok otazky kam by ste dali rebrikovy radiator? kde kupim uzku skrinku do kupelne? Ale tak odpoved je jasna - je to super ucelne, hlavne tie rohove okna a obrovsky satnik pri spalni. @r4d3k74 kecas o cestovani aj kozmetike, nech sa nik nepyta na nazor ak chce pocut iba to ze je to super, nech to ukazuje rodine alebo sebe a kazdy vecer sa utvrdzuje v tom ake to bude super.
Odpovedať
@maslenka47 prosím Ťa nebuď smiešna ze prídem a neviem čo. Len nerozumiem podľa čoho si sudila keď si to písala...A s tým nezmestenim to je Tvoj názor viem co píšem a viem ze nam to bohate stačí a opakujem nie preto ze by som na to nemal ale preto ze domov si idem oddýchnuť nie makať na záhrade a na dome ktorý má 160m2 to už dávno prešla ta móda mat dvojposchodový dom pre dve rodiny kde býva jedna rodina...skoda ze si nepovedala v com bývaš by som si to porovnal ako žiješ ty a ako si môžeš byť tak istá ze to bude malé...
Odpovedať
@atlaska potom keď to bude pošlem fotky ze sa tam zmestilo viac ako uteráky a neviem co ok? A to ze deti majú v roldore všetko je podľa mňa normálna vec, existuje milión doplnkov do nich... A mam kopec známych ktorý bývajú v menšom a sú spokojný.A áno mne ide o názor ale nie aby mi niekdo písal máš to malé nedáš tam nič a tak ja som sa pýtal či niečo upraviť nie meniť všetko pôdorys základy strechu... Išlo mi o rozloženie a niektorí super pomohli s tou technickou miestnosťou a chladničkou za to im vďačím a kritizovať a bývať v oveľa menšom je tak slovenské bohužiaľ.... Cest výnimkám
Odpovedať
Profilova fotka
@panco951 mne je to jedno, ja tam byvat nebudem ;-) Byvam v niecom podobnom (hadam uz nie dlho) a po 7 rokoch mnozstvo veci skladujem u rodicov a svokrovcov na povale. Obytneho priestoru mas dost, ale ty si zjavne neuvedomujes, ze casom ti budu pribudat do domacnosti veci, ktore teraz nemas a nieco budes musiet z obytneho priestoru vyradit. Kam to das? Kam naprikald v zime zazimujes zahradny nabytok, aby ti ho neznicilo vlhko a mraz? Ked nic insie, tak by som tomu strechu o pol metra zdvihla a spravila tomu podchodzie podkrovie s nejakym sklopnym rebrikom napriklad z technickej miestnosti. Tych 100m neobytneho priestoru, ktore nikto nevidi (a nemusis tam upratovat) raz neskutocne ocenis. A ta predsien je tiez priserne mala. Ked tam zapilis vstavanu skrinu, tak ti efektivne zostane priestor cca 2.5m, co je velkost WC. Plus budete mat na zemi kazdy niekolko parov topanok, pretoze napriklad mokre hadam do skrine nedas. Vies si predstavit, ze sa vsetci traja pohodlne prezliekate a prezuvate na WC? Ja teda nie a bud budete chodit z/do domu po jednom alebo si budete nosit blato do obyvacky. Ako ten priestor zvacsit netusim, ale v ziadnom pripade by som donho neriesila vstavanu skrinu. Iba nejaky nastenny vesiak a lavicu s botnikom, na ktoru si pripadne mozes sadnut. Nech ti tam zostane co najviac z toho maleho priestoru pre LUDI.
Odpovedať
@atlaska Nekecam... Mame toho mrte a vlezeme sa do 70m2 čiže 113 aj nieco bohate bude stačiť.Mne ide o prístup nie o kritiku. A v prvom rade mi islo o dispozíciu a nie meniť komplet všetko treba čítať.
Odpovedať
@maslenka47 @panco951 Dom by mal byť priestrannejší ako panelákový byt. Napríklad detské izby 16 m2, rodičovská izba 20 m2, hala 30 m2, zádverie tak široké aby sa tam dali poukladať mokré zablatené topánky (po vyschnutí sa vonku len otrepú), jedna veľká chodba z ktorej je vstup do haly aj do spální, samostatné WC, sklad 12 m2.
Odpovedať
@maslenka47 A vidíš to to si sa ma pýtala na začiatku?? Nie jasne ze bude podkrovie na odkalanie veci... A nebude tam cez celú vstupnú halu roldor ale len do polovice presne koli miestu...
Odpovedať
Pokus :-)
Odpovedať
@diskuter rozumiem tomu ale nepotrebujem viac priestoru ako tých 113 niečo čo tam je... možno skúsim s tým zadverim niečo urobiť ale ostatné nám bohate stačí na život. Ďakujem.
Odpovedať
Článok sa načítava...
Profilova fotka
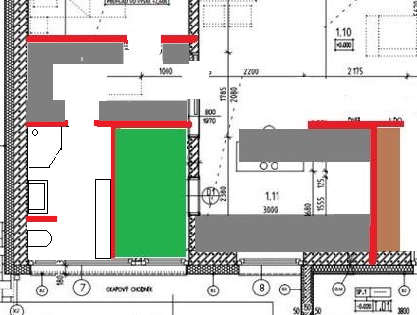
@panco951 ten roh medzi posuvnymi dvermi z obyvacky a rohovym oknom si priam pyta problemy. dufam, ze sa mylim. troska som sa pohral s tym podorysom. domcek je to pekny, tak vela som nemenil. predlzil a rozsiril som zadverie a zrusil technicku. tu som dal namiesto spajze (zelena) z viacerych dovodov- 1,tak ako ju mas teras stracas miesto v zadveri, 2, je daleko od oboch kupelni=dlhe cakanie na teplu vodu, takto ju mas aspon blizsie k tvojej kupelni a v detskej daj radsej prietokovy ohrievac a potiahni tam len studenu vodu...vo wc ti teplu vodu netreba. 3, ak tu spajzu naozaj chces mat, da sa tam dat, ta technicka je uz takto 2-krat vacsia, ako mas teraz. zvacsil som aj tu chodbu k detskym, takto ti tam vojdu dve skrine + mozes dat skrinu aj v detskej na stenu k zadveriu. (zlte postel, oranzove komoda pod okno) proste cervene je zmenene :)
Odpovedať
Profilova fotka
@panco951
Odpovedať
@martin153 ďakujem veľmi pekne konečne návrh. Chcem sa spýtať vlezie mi tam aj wc keby to bolo takto?? A este ten šatník urobiť zvlášť vchod??
Odpovedať
@martin153 a ešte ako z dverami kde by ste odporucili podľa vášho názoru?? Tie co su zmenené myslím
Odpovedať
Profilova fotka
@panco951 b..a nevykaj mi :-D
Odpovedať
Tak slušnosť káže ;-)
Odpovedať
Profilova fotka
@panco951
Odpovedať
Ďakujem veľmi pekne. ;-) takto som to očakával na začiatku a nie len že je to malé a neviem co. Fakt moc dik myslím si že toto bude super 👌
Odpovedať
Profilova fotka
@panco951 ale porozpravaj sa najsor s architektom a statikom
Odpovedať
@martin153 jasne pokecam s nimi určite. Fakt ďakujem
Odpovedať
Naozaj nerozumiem ako moze niekomu prist 113 m2 MALO pre 3 -4 clennu rodinu?? Malo ulozneho priestoru v kupelnach ktore maju dokopy 11 m2 ??? Co trpite nejakou obsesiou zhromazdovania veci, kupovania novych a novych raroh, potrebou mat 30 rifli, 50 svetrov a 60 parov topánok na osobu ked je jeden satnik malo. Kolko si myslite ze dieta potrebuje stavebnic a hraciek ked je jedna izba malo na ich uskladnenie? Mate naozaj pocit ze sa to dieta so vsetkymi hra a vy naozaj nosite vsetky tie handry, pouzivate 10 roznych sad tanierov? Alebo je to len hlupa potreba mat viac a viac a viac... Ludom uz uplne prepina, stavaju doslova palace kde ma kazda raroha svoju vlastnu miestnost, kde je 5 zachodov na tri zadky co v dome ziju... a ten svoj palac si ani neuziju lebo makaju v praci aby ho splatili, vykurili a cele vikendy travia upratovanim a pracami megavelkej zahrade - kde nechovaju ziadne zvierata, nepestuju ziadnu zeleninu a len otrocia lebo dookola kosit 1000 m2 golfového travnika nieje ziadna sranda My sme 2 a pol cloveka v 75 m2 domceku a pre mna je to dostacujuci priestor aj s tym jednym WC, vo dvojici mame uptratane za pol hodinku a mozeme ist niekam von na vylet. Moji rodicia maju tych luxusných 140 m2 aj s predpisanymi 3 zachodkami, denno nocnymi castami, kumbalmi a upratuju to 3 hodiny Ja stravim rocne 26 hodin upratovanim, moja mama 156 ...ved to je sialene
Odpovedať
@teta_z_lesa V činžiaku má každý pivnicu plnú vecí a ty odporúčaš stavať domy bez skladu, potom si ľudia stavajú búdky na záhrade. 1000 m2 nie je problém pokosiť s dobrou kosačkou pár krád do roka, trávnik môže mať 10 cm, vlastne to nie je trávnik ale kosená lúka - púpavky, ďatelina, margarétky... Stačí jeden samostatný záchod a kúpelňa so záchodom. Stavba domu je drahá, a asi nechcem mať malé izby ako v činžiaku. Pár metrov štvorcových pre izby navyše, je 100 m2 oproti vašim 75 m2 užitkovej plochy. Upratovanie si možno uľahčiť odstránením lapačov prachu (koberce, záclony), plávajúca podlaha sa len pretrie mopom. Dom má mať špinavý priestor v zádverí kde sa prezúvajú topánky pri vstupe do domu, ak sú spravené chodníka tak veľa špiny aj tak nie je.
Odpovedať
Profilova fotka
@teta_z_lesa Preto je dnes na jednej strane výhods to že každý si môže postaviť čo mu vyhovuje kto chce malé postavý si malé kto chce velké postavý si veľké na druhej strane je to nevýhoda v tom že hlavne tie dnešné obce vyzerajú ako vyzerajú každý dom každý plot iný
Odpovedať
@panco951 my mame na 90% podobny projekt :) my sme ale technicku miestnost chceli ako pračovnu, sklad, kotol+zasobnik... ak by ti teda nevadilo trochu zvacsit dom, mohol by si upraviť tu lavu stranu podla pravej aby vznikol tvar H a budes mat aj zavetrie vpredu a trochu krytu aj terasu...
Odpovedať
Na pridanie príspevku sa musíte prihlásiť.
Presunutím fotiek môžete zmeniť ich poradie

Nenašli ste čo ste hľadali?