Náš favorit

Zobraz úvodný príspevok
Profilova fotka
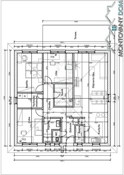
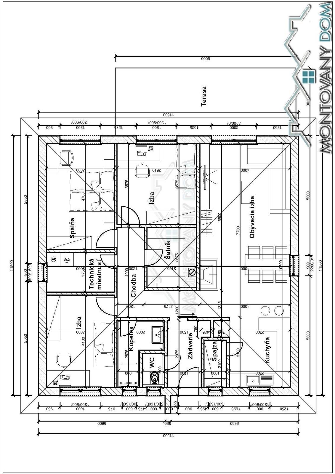
Ahojte prosím o názor čo hovoríte na tento projekt na našom pozemku. Pozemok má rozmer 16x90 a je orientovaný tak, že vstup od cesty je východ. Dom má 11,5m s tým že po stranách by nám ostalo 2m a 2,5m, od cesty by sme ho dali na 13,5m. Niekde som čítal ze odstup od hranice v stiesnených odmienkach je min.2m ale medzi stavbami je 4m a tu neviem čo platí lebo susedov dom je 30cm od hranice ale čo sme sa pýtali tak on nemá problém keby sme mali dom 2m od hranice. Viem že terasa na západnej strane nieje výhra ale nič iné nám neostáva lebo dispozície domov na úzky pozemok typ 8x16 sa nám nepáčia. Ďakujme za každý názor.
Odpovedať
1
2
@atlaska Ahoj. To je jak v Česku. Zákony se dají ohýbat lépe, jak vrbový proutek. Tazateli gratuluji, že si tam může postavit tu krychli. Možná, že mohla být i větší. ;-)
Odpovedať
Profilova fotka
Dakujem za kazdy jeden nazor a poznatok. Skusim zavolat na pozemok architekta a uvidime.
Odpovedať
@praoteccech to uz davno viem, ze vzdelanie uspech v zivote nezarucuje. ;-) dneska je to celkovo problem. neberiem to osobne....ani vazne😎
Odpovedať
Profilova fotka
Ahoj! Ja by som zrkadlovo otocila dom, do obyvacky by som dala tiez plnphodnotne okno, vsak susedia tam maju dvor, vy by ste mali krasne svetlo v obytnej casti. A dom by som umiestnila 1,5m od praveho suseda, ak dovoli a na lavej by si mal odstup 3m.To je moj nazor...
Odpovedať
Profilova fotka
@pebu aaa zabudla som dolezitu vec, aby nehovorili susedia, ze im budes kukat do dvora, vysadzala by som tuje, aby samozrejme aj oni mali sukromie, ale ty by si aspon z hora a z boku si ziskal denne svetlo. Ale urcite je k tomu potrebne aj suhlas od susedov, tak treba sa to spytat.Drzim palce!
Odpovedať
Profilova fotka
@frezia11 len tam je riziko, ze ak nahodou sa zmeni majitel toho susedneho domu tak moze zacat robit problemy skrz to.
Odpovedať
Profilova fotka
@frezia11 Ďakujem krásne
Odpovedať
Profilova fotka
@pebu to bude najrozumnejsie. Drzim palce :-)
Odpovedať
Profilova fotka
@pebu super rozhodnutie architekti vedia najlepsie poradit tak uvidis
Odpovedať
Profilova fotka
Mame podobny pozemok. 13 x22m a ulicu na vychod.zatial sme v stadiu vyberania projektu .radsej uzky a dlhy ako takuto kocku..aj keby ste sa rozhodli pre kocku podla mna toto nieje dobre rieseny dom..vsetky miestnosti mi pridu nejak rozhadzane.. skuste zhodnotit tento domcek http://www.wittner-haus.sk/bungalov/b... ale asi zrkadlovo otoceny z pravej strany bo bolo okno z kuchyne ale nam by nevadilo lebo hranica pozemku nieje sused ale potocik a zelen. Dom by xmr umiestnili na pravu stranu pozemku ale este neviem ci dopredu al.dozadu..no vela miesta tam nieje :D
Odpovedať
Profilova fotka
@pebu to je najlepsie riešenie, nam tiez navrhol dom dost ináč ako som povodne myslela a jeho riešenia su lepsie, na co prichádzam az teraz počas výstavby... Napr tienenie veľkých okien, orientácia... V tvojom pôvodnom projekte by som určite minimálne vymenila šatník s kupelkou a tiez technickú nie ku spálni kvoli hluku. Daj si poradiť od tých, co uz dom stavali, vyvaruju ta mnohých chýb, ono sa hovorí, ze az 3. Dom by mal človek stavať pre seba, na prvých dvoch sa len učí. Ja by som ho položila viac pozdĺžne pozemku ako do štvorca, mas fakt dlhy pozemok, treba to využiť. A obývačko Jedalen viac presklit, s výhľadom na peknú záhradu, živý plot. Orientácia zavisí od toho ake mate leta, ak by sa ti okna na J zbytočne prehrievali, potom ho potiahnuť na ľavej strane pozemku a presklit SZ, my v Tatrách naopak presklievame JZ kvoli teplu-))toto všetko ti poradí architekt, vie ti spraviť aj slnečnú simuláciu na všetky ročne obdobia a cely den. Tak aby si zbytočne neminala na tienenie. Za seba ti odporúčam dať samozrejme od cesty garáž spojenú s technickou miestnosťou, kde budu aj technické skladovacie priestory, biky. časom bude treba stále viac miesta. Ku vstupu do RD podla mna viac ako hneď WC ( veď uz toľko dobehneš 4 kroky) potrebuješ VELKY šatník, botnik. Predstav si z lyžovačky dojdete 4-5ks mokré kombinezy, kde ich dáš???? My mame pri vstupe technickú, kde je aj susiaren a tam dam mokré topánky, lyžiarky, veci, pracky, mraziak, technickú vaňu, kotol a pod.. Zároveň su pri vstupe namiesto skríň 2 šatníky- tu odporúčam posuvne zrkadlové dvere- ušetria miesto, za normálnymi dverami ti vzniká tzv čierna diera, kde sa ti bude zle chodiť a ukladať. Tieto veci ocenis, keď vas bude viac, vela ludi staví potom nový dom, treba tak, aby si mala radšej teraz uz všetko super, môžeš si spraviť prípravu a veci dorábať postupne...
Odpovedať
Profilova fotka
Každopádne by som pochodila známych s deťmi co uz majú dom po rozumy, my sme tak pochodili vela domov a učíme sa za jazdy. Na druhej strane mysli prakticky, aj keď architekt bude hlavne esteticky a presad si co najviac úložného priestoru na prístupných miestach. PS 2 x Wc v RD by bodlo-)) keď aj jedno do tej kupelky...
Odpovedať
@pebu :cit: a tu neviem čo platí lebo susedov dom je 30cm od hranice ale čo sme sa pýtali tak on nemá problém keby sme mali dom 2m od hranice. Tak teraz neviem, to ako ten sused s bledou fasadou je 30 cm od hranice alebo ten s tou ciernou strechou? Lebo ked ten napravo z pohladu od cesty, jak si tam vobec mohol dovolit dat okna zboku? 30 cm od hranice pozemku to je predsa akoby rovno na hranici s pozemkom, ked tam date plot, tak on tam bude mat len 30 cm, to ani neprejde. Ak su tam take podmienky ze moze sa stavat na hranici pozemku, ja by som rovno supol svoj dom na hranicu s pozemkom sprava, nedal by som na tu stranu ziadne okna nechal by som medzeru 1 m na prechod pozdlz svojej parcely, a ten somar vedla moze cez tie 2 okienecka cumiet mi do steny vo vzdialenosti 130 cm. Ale to by chcelo uplne iny projekt. Sused dalsi nalavo je uz hotovy akotak, aj ked pohlad na tu jeho pseudonadheru nebol by pre mna, dalo by sa nieco s tou Vasou stranou pozemku nieco robit, uplacirovat tym smnerom k nemu okna do izieb atd. Obyvacku a kuchynu by som dal potom do hornej casti.
Odpovedať
Profilova fotka
Súhlas so snowy66. Máte problém, že rozmýšľate v intenciách tých hrôz v susedstve. Pozemok nie je až taký zlý a ešte v miernom svahu, čo by sa dalo určite využiť na vcelku zaujímavú stavbu. Netuším aké sú stavebné obmedzenia vo vašej oblasti, vždy to záleží na "osvietenosti" daného úradu. No určite si prizvite dobrého architekta. Ten by mal mať skúsenosti ako najlepšie využiť parcelu a zároveň vyriešiť tých nešťastných susedov. Jedno je však viac menej isté, hoci sa vám nepáčia úzke a dlhé domy (8x16 tiež nie je nič moc), tak postaviť štvorcový dom na parcele dlhej 90m je asi to najneefiktívnejšie čo budete môcť spraviť. Teda ak nechcete mať na zvyšku pozemku stajne a kone či inú "zverenu". Len tak zo zaujímavosti, skúste opustiť na chvíľu Slovenskú stavebnú klasiku a pozrieť si nejaké moderné stavby. Aj keď nakoniec nič také možno nepostavíte, získate aspoň nejaké inšpirácie. My sme napríklad jediná stavba v našej časti, ktorá má rovnú strechu.
Odpovedať
1
2
Na pridanie príspevku sa musíte prihlásiť.
Presunutím fotiek môžete zmeniť ich poradie

Nenašli ste čo ste hľadali?