Nacrt RD - co poviete?

Zobraz úvodný príspevok
Dava to zmysel? Co by ste zmenili?
Odpovedať
1
2
ja som za posledny anvrh ako aj vacsina diskutantov, samozrejme si ale musite vybrat to co vyvhovuje vam, my tam nebudeme zit do konca zivota :)
Odpovedať
Profilova fotka
@ajana1 to by mohlo dobre vyzerat, to by som bol za to aj ja, nech to je poriadne predelene!
Odpovedať
@ernesti4 presne toto je to, do niektorych veci by sme si nemali dat hovorit, ale by sme sa mali rozhodovat sami, predsa len my budeme zit v dome, tak by to malo byt nase rozhodnutie ;-)
Odpovedať
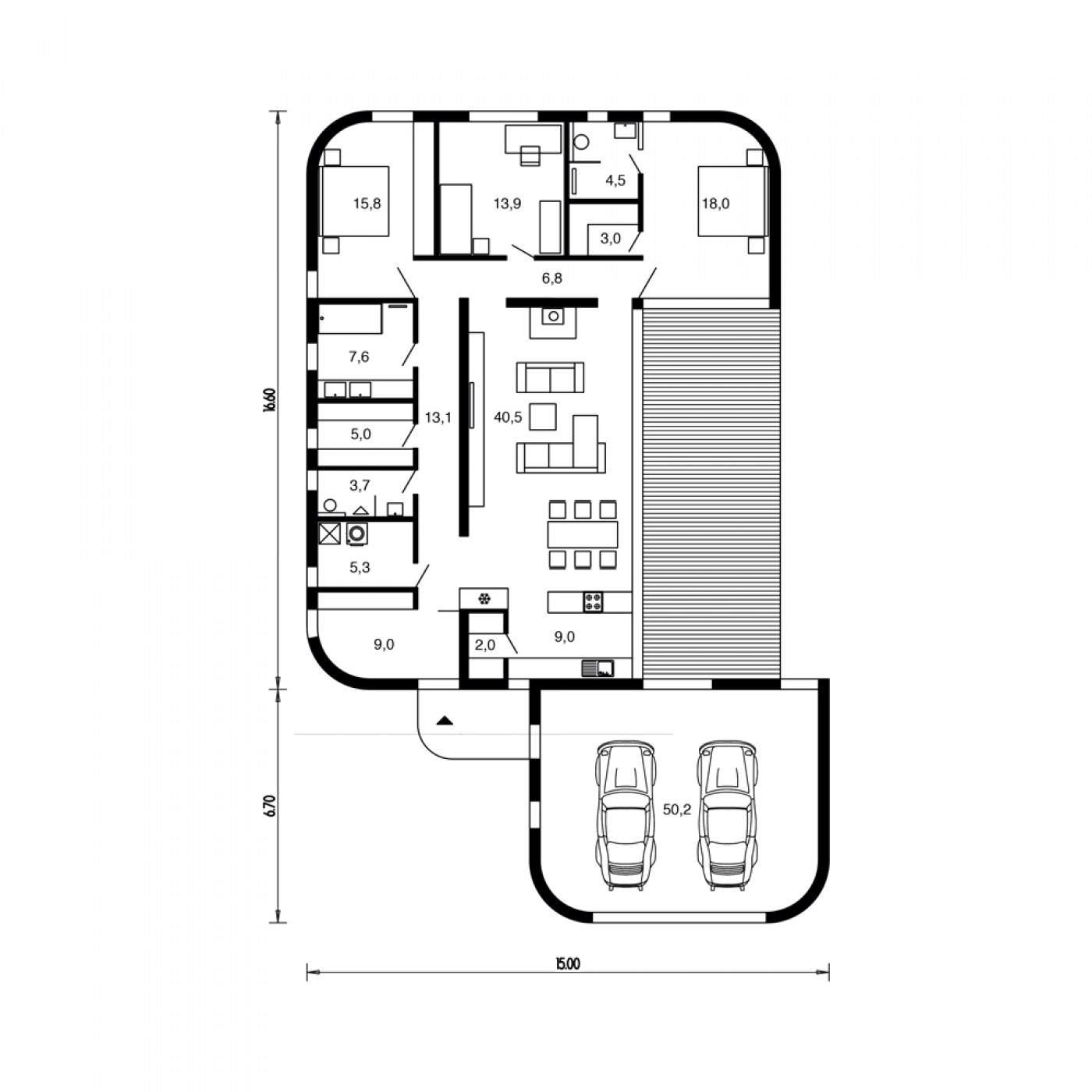
Váš návrh je vcelku pekny, len by som sa troska vyhrala s nočnou časťou, menšie úpravy z pohľadu praktickosi a bude fajn🙂 Možno takéto niečo na inšpiráciu 🙂😉
Odpovedať
@ingma Väčšina týchto návrhov, projektov, ktoré si pridala má zmysel, že majú pekne rozdelené časti. Podľa mňa toto by malo byť gro domu, že rozdelený dom na deň a noc. Aby v izbách bol kľud, aby nebolo nič počuť, či už z obývačky, kuchyne, technickej a pod.
Odpovedať
@edberg dakujem🙂 Súhlasím s rozdelenou dennou a nočnou časťou, ale kazdy ma iné požiadavky a predstavy. No v každom prípade som dala na inšpiráciu, možno to chce trosku predstavivosti, niečo pozmeniť a vybrať len časť alebo niektoré prvky do návrhu🙂
Odpovedať
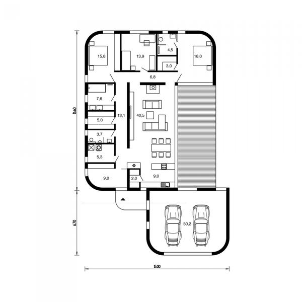
Upravena chodba! Myslim ze je to lepsie. Co poviete
Odpovedať
@melon123 za mňa fajn, pekne rozdelene časti, len zádverie je pre mna troška menšie, ale ak vám to postačuje, tak potom je to ok🙂
Odpovedať
@melon123 Na 4 spalnovy dom a jeho velkost by sa hodili uz 2 kupelne, ale inac celkom o.k.
Odpovedať
@melon123 mne sa tento posledny navrh celkom pozdava. Ako pise @klara321 zvazte tu druhu kupelnu. Zmensila by som tu velku kupelnu a rozsirila to samostatne wc a pridala tam sprchovy kut. Mame dve kupelne a je to na nezaplatenie.
Odpovedať
@ingma Jasné, máš pravdu v tomto, že každý má inú predstavu a presne o tom to je, len mnoho ľudí predsa len stavia svoj prvý dom, tak nemôže mať úplne jasnú predstavu, že čo bude ok, keď sa presťahujú ;-)
Odpovedať
@edberg úplný súhlas 🙂
Odpovedať
1
2
Na pridanie príspevku sa musíte prihlásiť.
Presunutím fotiek môžete zmeniť ich poradie

Nenašli ste čo ste hľadali?