Umiestnenie TC

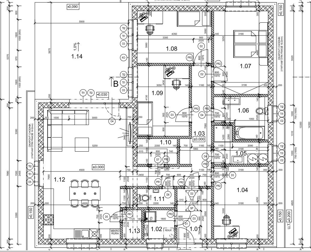
Som vo fáze hrubej stavby domu a zamýšľam sa nad tým kde umiestnim vnútornú jednotku tepelného čerpadla vzduch/voda. Podľa projektu ju mam naplánovanú v technickej miestnosti pri vstupe do domu (1.02) a vonkajšia jednotka by potom išla na pravú stranu domu ako je hosťovská izba (1.04) smerom k susedovi, je tam 3,5m od plota a ďalších 3,5m ma sused dom čo by mohlo byť OK. No teraz tak rozmýšľam že tu vonkajšiu jednotku by som radšej posunul trochu ďalej až na úroveň medzi tie dve kúpeľne aby som tam pripadne mohol parkovať auto vpredu a tu ma napadlo či potom nebude lepšie presunúť aj vnútornú jednotku TC do tej prvej kúpeľne - tam kde je teraz práčka a sušička. S tým že vnútorná jednotka bude typu "all in one" so vstavaným zásobníkom na TUV o rozmeroch 1880/ 595/ 693 a vedľa nej by som ešte teoreticky mohol postaviť pračku a sušičku na seba. Ako výhody tohto riešenia vidím: kratšiu vzdialenosť medzi vonkajšou a vnútornou jednotkou TC (monoblok) + by som mal zásobník TUV blízko oboch kúpeľní teda by som tam mal teplu vodu bez čakania/bez potreby recirkulácie. Ako nevýhody vidím to že mi to zaberie miesto a pošpatí kúpeľňu a mierne zacloní aj okno. Ako by ste to riešili?
Odpovedať
Profilova fotka
Ahoj. Kto bude vyuzivat ktoru kupelnu? My sme styria a odkedy deti stoja na nohach, sa len sprchuju, takze my by sme sa vopchali do tej sprcharne a kupelna vedla by bolo druhe WC. Potom 4 osusky, 4 kefky, aby mali miesto. Mat hned teplu vodu je super, potom budes riesit ako ju mat hned v kuchyni. Do tej miestnosti 1,1 by mohla ist? Ak nie je ulica rusna, dala by som si spalnu do 1.4 s malou privatnou sprcharnou. Dvere z predsiene do chodby si daj na otvaranie do predsiene, vacsie okno medzi kuchynou a sedackou.
Odpovedať
@lenkito10 Mne osobne by vana nechýbala vôbec ale momentálne mame male deti takže ju dosť využívame + manželka si rada občas tiež nepusti vaňu takže asi sa zíde aj ked deti podrastu. Co sa tyka tej rychlej teplej vody tak v kuchyni by mi vôbec nechýbala lebo aj tak skoro všetko dávame do umývačky, zato v kúpeľniach by to bolo fajn no neviem ako dlho by som čakal keby to TC necham v technickej ako je v projekte. Ulica nie je vobec rušňa ale spálňu sme dali do zadu lebo z prednej strany je to taký Juho-Vychod a nemáme radi ked nas rano budi slnko 🙂 Otvaranie tych dverí do predsiene je dobry nápad. Medzi kuchyňou a sedačkou bude 1500cm fixné presklenie az po zem, myslis ze to nebude stačiť?
Odpovedať
Profilova fotka
Ake ranne slnko? Ved budes mat vonkajsie zaluzie. 😁 Zapadne ti nebude prehrievat spalnu? Vanu ano, ale ked budu vacsi, nastahuju sa ti do sprchy. Nemyl sa, ze ked mas mycku, nepotrebujes teplu vodu v kuchyni. Noze, varesky, teflon, keramicke hrnce do mycky nepatria. Umytie ruk teplou vodou v kuchyni tiez potrebne. Na teplu vodu su, nespomeniem si ako sa to vola, obehy, tepla voda zacne prudit v trubkach, v urcitom case, alebo ked zapnes svetlo v kupelni. Osobne by som aj dvere na wc dala s otvaranim dnu. Mam rada presvetlene priestory, takze okna co najvacsie... Mozes mu pridat aspon 50cm. Kuchynu uz zariad teraz, ak je to velke oproti stolu chladnicka, dala by som varnu dosku na stenu s drezom. Keby si wc vymenil s 1,1 a nejak donho zakomponoval aj bojler, TM by sa ti zvacsila, bola by to miestnost s oknom, aj so skrinou na veci.
Odpovedať
@peto077 pises ze ti vana nechyba tak to znamena ze sa sprchujes a aj sa budes sprchovat. Tak ja by som sa nechcela sprchovat dennodenne v pracovni ale chcela by som byt v kupelni. Takze tu priecku by som prehodila z kupelne do pracovne a mala by som vsetko v jednej kupelni. Velmi dobre si rozmysli umiestnenie vonkajsej jednotky. My sme kvoli nej mali nepekne stretnutie so susedmi na stavebnom urade tak sme urobili ustupok a jednotku sme prehodili dopredu najprv k domu ale nakoniec davame k prednemu plotu. Snad nebude vadit ani jednemu susedovi. Myslim ze dolezitejsie je co ma sused na tej strane ako to ze je 6 metrov s domom od nej.
Odpovedať
@wivik co sa tyka tej vonkajsej jednotky, tak v projekte pre SP ju mam umiestnenú na tej strane k susedovi (ako som uz pisal medzi domami je to 7m vzdialenost) sused tam ma 2 okna (1200×1200) z kuchyne a jedalno-obyvacky. Objednanú mam jednu z najtichsich jednotiek na trhu (normovany akusticky vykon je len 53db). Otazka ked mi to stavebny úrad raz takto schvalil v projekte pre SP môže potom namietať? Lebo ten presun vonkajsej jednotky nie je zase lacna záležitost.
Odpovedať
@peto077 so stavebnym uradom sa stretnes prinajlepsom dvakrat. Ked ti vydavaju stavebne povolenie a ked kolaudujes. Susedov tam mas kazdy den. My ked sme zacali robit pripravu pre vonkajsiu na miesto medzi domami (u nas je to taky zadok domu len 3 male okienka komora, vecko, pracovna a susedia na tej strane tiez asi zo schodiska) tak suseda nabehla ku nam ze sa jej to nepaci, ze hore maju stresne okna zo spalni. Je pravda ze sme tu jednotku mali mat podla PD z druhej strany domu medzi domami s druhymi susedmi. Preto sme sa rozhodli dat dopredu aby sme zbytocne neprovokovali. Ako to urobis je na tebe len som pisala z vlastnej skusenosti. A tak ti poviem ze s tymi susedmi neviem ci niekedy budeme mat dobry vztah ale preto lebo my uz o to nemame zaujem. So vsetkym co sa jej nezdalo, nepacilo neprisla normalne za nami ale rovno podnety na stavebny urad. Snad mas normalnejsich a chapavejsich susedov.
Odpovedať
Profilova fotka
Faza hruba stavba znamena co? S cim sa da hybat?
Odpovedať
@lenkito10 Zatiaľ mame len obvodové mury a strechu.
Odpovedať
1
Na pridanie príspevku sa musíte prihlásiť.
Presunutím fotiek môžete zmeniť ich poradie

Nenašli ste čo ste hľadali?