Nastavenie Daikin Altherma 3

Zobraz úvodný príspevok
Ahojte. Nevie náhodou niekto ako nastavím, aby mi kurilo v čase 12.30-14.30 a potom zasa 18.30-20.30? Stačí mi to takto, keďže zatiaľ v dome nebývam. Ideálne, keby to kúri v tomto čase podľa ekvitermiky. Nejako to neviem v tom pláne nastaviť...
Odpovedať
Profilova fotka
@rados611 mám althernu lt tak neviem či ti to pomôže. Mám nastavené na meranie izbový termostat plus ekvitermika. Moduláciu mám vypnutú.
Odpovedať
@bookeeper Ahoj, preco mas modulaciu vypnutu? Vacsinou ju tu ma kazdy zapnutu. 😉
Odpovedať
Profilova fotka
@vietordoplachiet už presne neviem, ale robilo mi niečo problém a odporučili mi ju vypnúť. Nechal som to tak.
Odpovedať
Dobry den, tepelne cerpadlo vam funguje aj pocas vysokej tarify alebo gtedy sa vam vypne? Priblizne za aky cas by mal dosiahnut nastavenu teplotu? Mame nastavene na 23 stupnov a skoro cely den ide. A ked aj dosiahne vypne sa a hned klesne toplota o 0.2-0.3stupne. Dakujem
Odpovedať
@kutyas Ak príliš rýchlo klesá teplota v dome, zrejme má dom vyššiu tepelnú stratu, možno v kombinácii s nízkou tepelnou akumulaciou. Kúrite do radiátorov? Aká je tepelná strata domu a aký výkon TČ? Bude to stíhať v mraze pod -10°C?
Odpovedať
Zhrniem moje polrocne skusenosti s nastavenim Daikin Altherma 3 RF 4kW 🙂 Vyhody: - nizka spotreba elektriny na komfortne teplo v dome (v podstate neriesite spotrebu ale iba spravne nastavenie) - a to je vsetko pokial nepocitate ze TC pomaha chladit planetu respektive neprehrieva ju zbytocne viac 🙂 Nevyhody: - nemoznost regulovat od 0% vystupneho vykonu ale az od nejakych 15% co je cca 1 kW (v malom drevodome ako mam ja je to od 0 stupnov vyssie dost problem nakolko nemam este rekuperaciu na generovanie tepelnych strat) - ak chcete plynule regulovat maly vykon tak sa nevyhnete castemu vypinaniu kompresora co je velmi nevyhodne po stranke zivotnosti a aj efektivity - pri velmi malom vykone je nizky COP aj pri nizkej teplote vystupnej vody - nastavene parametre cerpadlo vela krat ignoruje nakolko stale "hlada" svoj pracovny bod - je to naozaj velmi komplikovane zariadenie ktore si zije svojim zivotom ako Windows 🙂 Takze zhrnutie: Tepelne cerpadlo urcite ano ale s co najmensim vykonom aby ste ho vyuzivali pravidelne od 50 % vyssie jeho vykonu. Takze ak ma dom napr. tepelnu stratu 8 kW pri -20 C vonku/+20 C vnutri tak si kupte len 4 kW. Drvivu vacsinu casu vam bude stacit 4 kW cerpadlo a pojde v optimalnom vykone a tym aj efektivite (COP). Ked na par dni respektive v dnesnej dobe uz mozno len par hodin budete potrebovat viac ako 4 kW tak sa pripnu integrovane spiraly. Zaroven dnesne anhydritove podlahy maju extremnu tepelnu kapacitu takze k zapnutiu spiral nemusi ani dojst nakolko podlaha bude dostatocne nahriata.
Odpovedať
@bksl a aká je spotreba na deň?
Odpovedať
max 12 kWh denne pri 26C v dome a vonku minus teploty. Dom ma cca 80 m2.
Odpovedať
@bksl tak ale 26°C v baráku v zime to už nie je sranda. A to mám fakt rád "trenírkovú teplotu" 😄
Odpovedať
Tu na foto je aktualny a minuly tyzden.
Odpovedať
@lrdk pohoda to je v trenkach ked byvas sam len plesniveju z toho steny a voda je na vsetkom co je trochu chladnejsie. 3-sklo stale ma vodu naspodu 🙂
Odpovedať
vypnutie elektrickych spiral aj pre podlahovku aj pre teplu vodu:
Odpovedať
@bksl vieš čo, tiež mám Daikin AT3 (ekvitermika + zónová podlahovka) a centrálnu rekuperáciu. Rozdiel v kondenze na oknách (samozrejme 3-sklá) je v izbe kde je napr. termostat na 21°C (nevyužívaná izba) a v izbách kde je 23°C (spálňa alebo obývačka) úplne zanedbateľný. To sa samozrejme bavíme o nociach kedy je povedzme ako dnes, keď je aktuálne-9°C a ráno nájdem pár mililitrov vody na spodnej časti skla - prevažne na HS portáloch, ale tam chápem, že konštrukčne sú na tom horšie ako klasické okná z pohľadu "tesnosti".
Odpovedať
odmrazovanie vonkajsej jednotky sa deje spatnym ziskanim tepla z podlahovky prostrednictvom niekolkominutoveho otocenia chodu "chladiva" v okruhu.
Odpovedať
ja nemam ziadne zadverie (mala miestnost za vchodovymi dverami) a na spodnom pante vchodovych dveri to funguje ako kohutik vody co netesni, stale to kvapka 🙂 dufam ze rekuperacka mi tu vlhkost pomoze zrazit
Odpovedať
@bksl prosim vas a moze to odmrazo anie sposobovat take zblnkotanie vo vnutornej jednotke?
Odpovedať
Článok sa načítava...
@bausut75 je to dost velky rachot ked je ticho v dome. Ked to prvy krat urobilo tak som myslel ze mi strelilo to medene tlakove potrubie 🙂 Doslova sa meni smer prudenia media opacne. Da sa to pozriet aj v menu "information-operation modes" pod "defrost/oil return" ci to aktualne bezi.
Odpovedať
@bksl Ano presne lebo ked som to prvý krát počul a to sme nemali este interiérové dvere v noci tak som vyskočil na nohy ze co robí 😁
Odpovedať
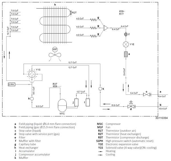
Y1S je ten 4-cestny ventil co meni smer prudenia "chladiva" pri odmrazovani vonkajsej jednotky. U mna sa to niekedy deje aj kazdych 30-45 minut.
Odpovedať
To chladivo je kvapalné/plynné takže môže to zblkotat
Odpovedať
@fugas20 to neni len take ze zblnkotanie, to je o dost hlasnejsie 🙂 Mne ide to potrubie cez obyvacku pri stene kde bude kuchynska linka a urcite to bude velmi rusive ked budem pozerat telku. Keby som toto vedel predtym tak mozno by som radsej zvolil monoblock namiesto splitu ako mam teraz.
Odpovedať
@bksl no a nevieš ešte zmeniť vedenie ? Monoblok je divná vec🤣
Odpovedať
Mam sice maly dom ale technicka miestnost je v strede takze bud cez obyvacku alebo cez kupelnu kde by potrubie zavadzalo. V obyvacke bude schovane za kuchynskou linkou.
Odpovedať
@bksl v kúpeľni cez strop?
Odpovedať
To by slo ale kto to bude prerabat a platit znovu napustenie okruhu chladiva 🙂
Odpovedať
@bksl chladivo sa stiahne do vonkajsej jednotky a Potom znovu na pusti do okruhu. To je najmenší problem
Odpovedať
Ja som rad ze to spravne funguje. Som udrzbar a z praxe viem ze pokial kompresor funguje tak sa netreba dotykat ziadnych srobeni a byt naozaj rad ze nikde neunika chladivo 🙂 Uz ma to stalo 9 tis a nechem este kazdy rok pridat k tomu zbytocne 200-300 € ako doplnanie chladiva.
Odpovedať
Vonku -10 C, aktualne COP=2,94 pri teplote vystupnej vody 32C
Odpovedať
Aktualne cisla:
Odpovedať
@bksl Ohladom toho nízkeho COP pri malom výkone: meria vám to spotrebu elektriny a vyrobené teplo s presnosťou na 1 desatinné miesto alebo na celé KWh? Alebo ste si spotrebu odčítali z elektromeru? Mne to meria len na celé KWh, čo znamená že ak moja Altherma ide na najnižšom výkone 600 w príkonu, tak v štatistike jednotky to zaokrúhli na 1 kWh. Ja nízku potrebu výkonu skúšam túto sezónu riešiť tak, že keď je vonku priemerná teplota cca 0 st. tak mám kúrenie od 21:00 hod do 10:00 hod nasledovného dňa vypnuté. Tým skúšam dosiahnuť vyššie COP, nakoľko kúri vkuse a to v čase najvyššej vonkajšej teploty. Mám ale murovaný dom s veľkou masou a veľkou tepelnou zotrvačnosťou. December 2021 a január 2022 som ešte v dome nebýval a ten sa len temperoval s výstupnou teplotou 25st. (17st. teplota vzduchu) Spolu za tie 2 mesiace sa vtedy minulo cca 900 KWh elektriny. Tento december a január som mal spotrebu na kúrenie spolu 600 KWh elektriny t.j. o tretinu menej (pri 32st. výstupnej teplote a 22 st. teplote vzduchu). Bola síce miernejšia zima s menšou potrebou tepla , ale COP ak mám veriť štatistike jednotky vychádza o cca 30% lepšie.
Odpovedať
Na pridanie príspevku sa musíte prihlásiť.
Presunutím fotiek môžete zmeniť ich poradie

Nenašli ste čo ste hľadali?