Pôdorys 5izb. bungalovu

Zobraz úvodný príspevok
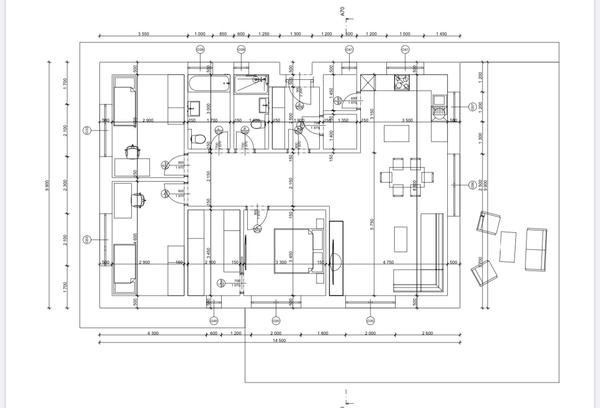
Ahojte, prosím o názor na takýto pôdorys 5izb. bungalovu. Rozmery domu sú 15m X 9,16m. Zastavaná plocha je teda 137,4m2 a úžitková 106,47m2. Rozmerovo už viac ako 15m šírku nemôžeme mať a dĺžku môžeme zväčšiť, ak by na to bol nejaký dôvod. Izba (9,21m2), ktorá je vpravo dole bude slúžiť ako hosťovská, čiže nebude permanentne obývaná. Ostatné izby sú orientované na JZ. Snažili sme sa mať jednoduchý tvar domu a v rámci možností aj kompaktný, keďže nemáme neobmedzený rozpočet. Za všetky rady a názory vopred srdečná vďaka 🙂
Odpovedať
Profilova fotka
@veronikkam ja mam v podstate rovnaky podorys, ale hore mam od obyvacky kotolnu, kupelnu a spalnu. Na spodnej mam predsien a 2 izby.... ta izba hned za stenou na ktorej bude telka nieje velmi dobre riesenie... izby skus dat do zadu aby sa vytvorila nejaka denna a nocna cast... uz aj tak v takom malom bungalove je to problem. Ale hned detsku izbu k obyvacke by som nedaval
Odpovedať
Mne sa to paci, nie je to nic zlozite, je to pekne ma to zmysel. Aj hlavu aj patu. Na jednej strane denna cast, vedla nocna, takze za mna kludne 😉
Odpovedať
Narazili sme na problém s umiestnením terasy. Terasu nechceme umiestňovať rovno pod okná detských izieb. Určite si budeme chcieť aj večer posedieť vonku, keď budú deti spať a zrejme by to bolo dosť rušivé 😢 Keď máte niekto nejaký nápad, ako to vyriešiť, budeme veeeľmi radi. Už sme skúšali to tam poprehadzovať, aby spálňa bola v strede, no nijak nám to nevychádza. Terasa vedľa domu tiež nevie byť, pretože dom má 15m a na pozemku nám ostávajú po obidvoch stranách len 2m. O tom či chceme terasu pri dome alebo altánok ďalej od domu, sme sa už bavili a vieme, že jednoznačne chceme terasu pri dome.
Odpovedať
@veronikkam preco neotocite dom? Nemusite ho na sirku davat, ale na dlzku.. Vstup pokojne zboku..
Odpovedať
@hroma stratili by sme ten výhľad do záhrady. Za nami už nie je žiadny iný dom, čiže celkom by sa nám páčilo mať výhľad tam. Napravo je sused od nás 3m, čiže tam ani nemôžeme mať okná obyt. miestností a z druhej strany sme 2m od plota, pod ktorým bude skoro meter vysoký oporný múrik, čiže ten výhľad by bol taký o ničom.
Odpovedať
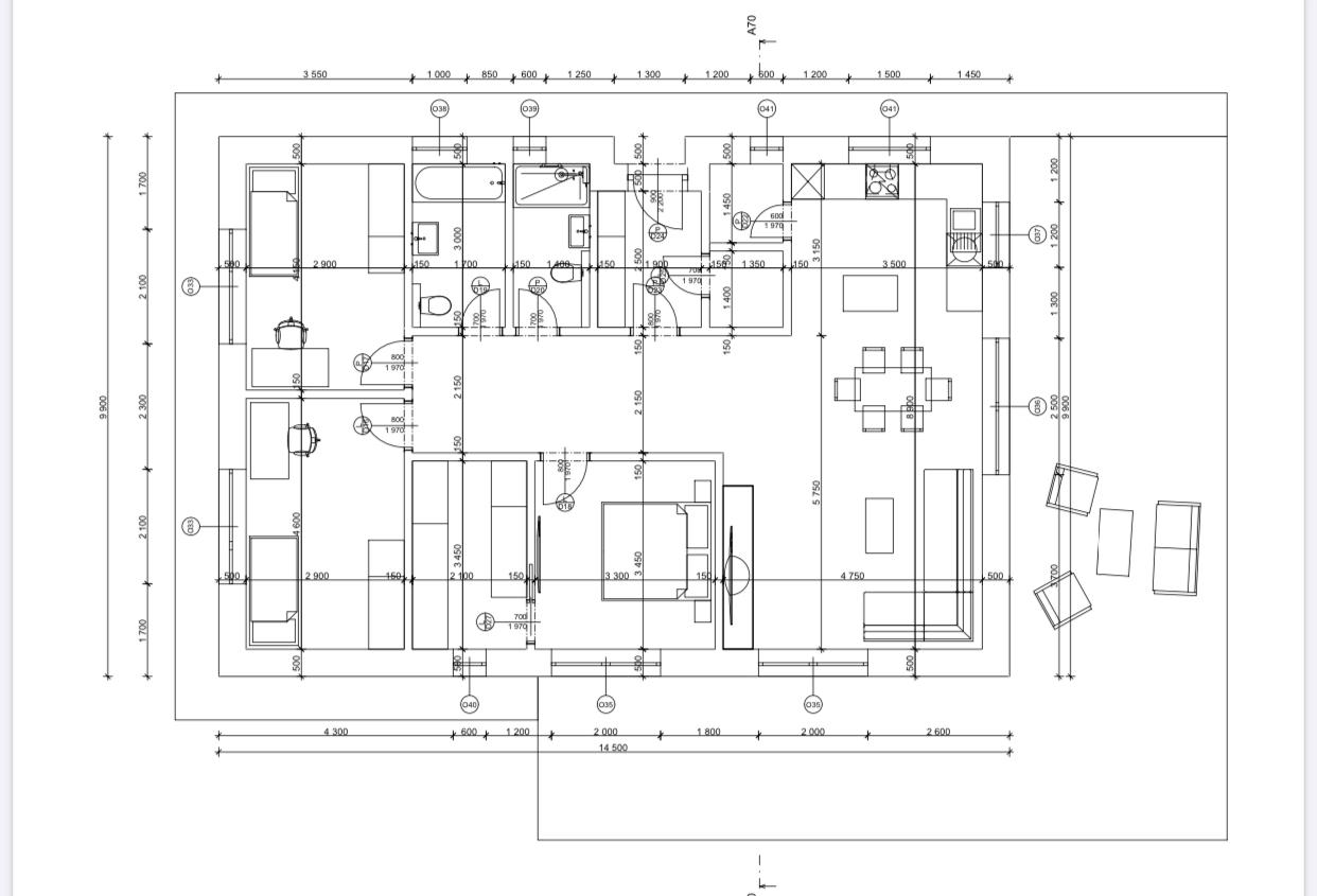
Ahoj. Mame podobný pôdorys domu, my sme si dom navrhli takto. Plus terasu do L-ka
Odpovedať
@perten takto by sa nám to páčilo, len nám tam chýba ešte 1 izba 😞
Odpovedať
@perten Na ľavo od vstupu technická miestnosť. Zo spálne vstup do šatníka. Dve kúpeľne s wc. V kuchyni vstup do špajze. Pôvodne sme mali mať aj krb, ale zrušili sme ho.
Odpovedať
@veronikkam to že "za vami" nie je žiadny dom teraz neznamená, že to tak bude aj o pár rokov 😞 pokiaľ teda nevlastníte celý ten pozemok "za vami". Ak som správne pochopila, máš pozemok široký 19 metrov (2+15+2) ak by si dom otočila, môžeš pri zákonom stanovených odstupových vzdialenostiach v pohode okná aj do strán. Mne osobne necelý meter vysoký oporný múrik nepríde ako niečo, na čo sa nedá pozerať, pokiaľ bude spravený vizuálne pekne. Zasadíš popri ňom okrasné kríky a za chvíľu ho ani nebude vidno.
Odpovedať
@zltalienka tak za nami je ranč, tak veríme tomu, že to tak snáď aj dlho ešte bude 🙂 Jedna z alternatív je naozaj to otočiť a mať pri dome záhradu aj z boku. To je asi riešenie, ktoré zvolíme, keď sa vzdáme toho sna, že by sme mali aspoň obývačku, kuchyňu a spálňu orientovanú na tú peknú stranu do záhrady.
Odpovedať
Mali sme aj takýto návrh. Ten by nám vyhovoval vo všetkom, okrem toho, že detské izby aj hosťovská by boli orientované na severnú stranu. Snažili sme sa celé hodiny to nejak poprehadzovať, aby boli tie izby na ľavej strane pod obývačkou akoby, ale to sa nám nepodarilo 😞
Odpovedať
@veronikkam tak chodte do podorysu "kocky". Nemusite nasilu tlacit obdlznik. A dalsia alternativa je Lko. Napriklad tento,z garazi urobit izbu, spalnu dat na pravo do rohu a aj mini kupelna ti tam urcite vojde.
Odpovedať
@veronikkam kuchyňa ani teraz nebola orientovaná do záhrady. Ale myslím, že pri 19 metrov širokom pozemku sa to dá vyskladať tak, aby boli všetky tieto 3 okná do záhrady. Predpokladám že sused vpravo nemá k vám okná z obytných miestností, inak by ste nemohli stavať 2 metre od plota. Potom 2 metre od suseda vpravo, 5 metrov od suseda vľavo a máš 12 metrov na plánovanie domu.
Odpovedať
@zuzana838 Na štvorcovom pôdoryse pracujeme od včera už asi, no stále nám ostáva veľa priestoru v strede, čiže minimálne jedna kúpeľňa by bola bez okna. Čo sa týka L-ka, tak to si už z finančných dôvodov nechceme dopriať, aj keď by sa nám to na tom pozemku absolútne najviac páčilo. Rozdiel by bol pri rovnakej úžitkovej ploche skoro 15000€ a zároveň vyššia energetická náročnosť vraj.
Odpovedať
@zltalienka On tam má okná z obytných, no môžeme ísť na 2 metre od neho s podmienkou, že my tam nebudeme mať okná z obytných. On s tým súhlasí, nemá s tým problém. Takže naozaj môžeme využiť priestor až 15metrov. A aj tak sa nám nedarí dať aspoň tie 3 miestnosti na 1 stenu 😞
Odpovedať
@veronikkam neboj dobry projektant vam poradi. My sme tiez rozmyslali,ja som kreslila,merala a pod. tiez sme sa snazili vymysliet aby to bolo super. A ked pojdete za nim uz s urcitou predstavou,tak vam poradi ,pouklada miestnosti ,tak aby to bolo dobre 😊
Odpovedať
Článok sa načítava...
Ja by som otocila.. Vyhlady ostanu.. Aj zo spalne bude..
Odpovedať
@hroma to je väčší dom, než chcú
Odpovedať
Čo toto, poradcovia moji? 🙂 Aspoň 1 izba by ešte bola správne orientovaná.
Odpovedať
@zltalienka jasne, len otocenie som mala na mysli.. Nech si velkost upravia ako im vyhovuje
Odpovedať
@veronikkam nieco taketo? inak ako keby som seba videla,ked sme chceli 5 iza.bungalov 😁😁
Odpovedať
@veronikkam https://www.eurolineslovakia.sk/sk/pr... Je to tento potom,vidis aj zvonku ako vyzera 🙂
Odpovedať
@zuzana838 veď to je v podstate skoro to isté, ako sme si nakreslili 😄 😄 to by bola sranda, že nakoniec by sme skončili pri katalógovom domčeku 🙂 🙂 Ďakujem, ideme to študovať ďalej 🙂
Odpovedať
@veronikkam Chodba 115 je prilis uzka na takejto dlzke, budete sa citit ako v tunely, taktiez izba 9m, pokial je to pracovna ok ak obytna izba, aspon pre mna velmi malo. Kuchyna s obyvackou 31,5 je tiez pre 4 osoby velmi malo. Ja by som zrusil jednu izbu tu najmensiu a pridal izbam a aspon 5m obyvacke. Je to asi o osobnych preferenciach, ale ja by som takyto dom ani nezacinal stavat, len moj nazor, pokial Vam tieto rozmery vyhovuju tak ok.
Odpovedať
@veronikkam Len doplnim, dispozicne je to dobre navrhnute, velkostne by domceku prospeli nejake metre uzitkovej plochy naviac, pri 5i bungalove je ideal tych 125- 130m. Tym, ze by som takyto dom ani nezacal stavat som myslel, ze clovek stavia dom raz, dva krat za zivot a bude v nom byvat cely zivot, nebolo by dobre aby ste neskor lutovali, ze mohli sme radsej dat sirsiu chodbu, vacsiu izba atd. Treba si to dobre premysliet pred tym ako zacnete s realizaciu, zvazit vsetky okolnosti a rozmyslat aj do buducna, my sme navrhovali studiu asi 6 mesiacov. Drzim palce a zelam vsetko dobre.
Odpovedať
@adamos81 vďaka 🙂 nám to trvá zatiaľ 3 mesiace a zajtra sme dostali taký deadline, že ak dáme projektantovi finálny pôdorys, tak to vraj do konca mája stihne mať hotové 😄
Odpovedať
@veronikkam vy jemu mate dat finalny podorys? 😁😁 vsak to ma on vymysliet,nie len prekreslit 😁
Odpovedať
@zuzana838 tiež sme si to tak kedysi predstavovali 😄 😄
Odpovedať
No, snažili sme sa ďalej. Do nového pôdorysu som doplnila aj strelku. Snažíme sa tie miestnosti orientovať na J, JV a JZ. Kompromis je samozrejme akurát hosťovská izba. Veľmi pekný pôdorys nám našla @zuzana838, má len tú slabinu, že 2 izby by boli orientované na sever 😞 Tento náš návrh sa nám páči, len sa obávame toho, ako výrazne by ten "výrez" predražil stavbu. Netušíme či to je o 3-4 tisíc alebo aj o 10 a viac :-/
Odpovedať
@veronikkam ak už taký "výrez" tak by som ho orientovala na juh a bude tam terasa.
Odpovedať
Na pridanie príspevku sa musíte prihlásiť.
Presunutím fotiek môžete zmeniť ich poradie

Nenašli ste čo ste hľadali?