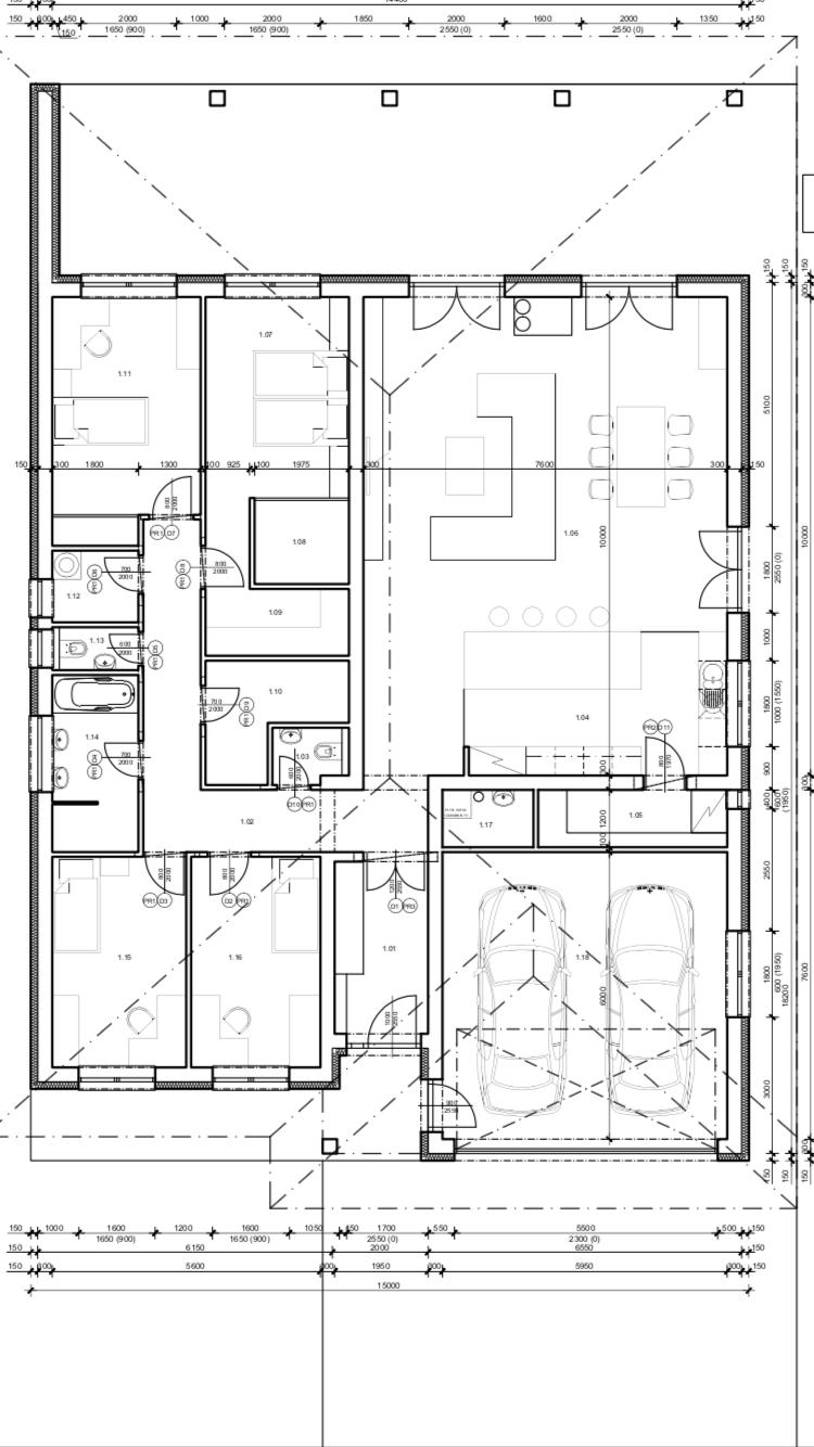
Caute, co si myslite o tomto projekte domu? Zmenili by ste nieco? Orientacia je: kuchyna juh, vchod do domu zapad. V spalni bude vstavany satnik a kancelarsky kutik ktory sa bude otvarat skladacimi dverami. Ak by Vas nieco napadlo co by ste zmenili, tak dajte prosim vediet. Je to este len nacrt. Vdaka za Vase nazory :-)
@majulienk mne osobne sa z tohto domu páči len prestrešená terasa na východe. Nepáči sa mi garáž v dome a ešte k tomu na južnej strane. Malé detské izby na severozápade. Mali by byť väčšie a na juhu. Kuchyňa a už vôbec špajza nemajú byť na juhu. Obývačka a jedáleň majú mať väčšie presklenie na južnej stene. WC je ďaleko od vchodu. Chýba rodičovská kúpelňa. Umiestnenie spálne medzi detskou izbou a obývačkou je zlé. A bonbónik na záver: podľa Feng shui nesmie byť manželská posteľ otočená hlavou na juh ;-)
@majulienk skoda nevyuzitej juznej strany, ked tam mate susedov a chceli by ste urobit kompromis tak celkom zaujimavy by tam bol atriovy dom, v atriu aj zimna zahrada kludne , maly by ste juh a aj sukromie