Posledná verzia pôdorysu

Zobraz úvodný príspevok
Profilova fotka
Po konzultácii s projektantom sme sa dopracovali k nasledovnému riešeniu nášho domu. Sme manželia, žijeme sami. Čo hovoríte na dispozičné riešenie?
Odpovedať
@topvideo cez komoru ti budu navstevy chodit a wc? co tak ubrat zo satnika a urobit zo zadveria vchod na samostatne wc pre navstevy? a aj tak ta cast : komora- kupena-garaz..... :-S
Odpovedať
Profilova fotka
@finis uvažovali sme, že urobíme malé WC so sprchou a umývadlom z časti hosťovskej izby.
Odpovedať
@topvideo neuvazovali ste o vchode do technickej miestnosti aspon cez satnik? je to sice trochu pritiahnute za vlasy, ale dalo by sa to.
Odpovedať
Profilova fotka
@finis Celé to bude asi takto:
Odpovedať
@topvideo ten vstup do kupelne mas zo spalne? ak ano, tak by som uz nemala vaznejsie pripomienky ;-)
Odpovedať
Profilova fotka
@finis áno, nakoniec asi bude zo spálne :-)
Odpovedať
@topvideo To jsem z toho jelen. Z garáže venkem ? Z technické také venkem ? Nebo to je průchod do kuchyňské linky ? Nevím, nevím, ale toto se mě nelíbí. Co tak zkusit otočit barák o 90 °a vchod udělat z pravé strany ?
Odpovedať
Profilova fotka
@ladajaskva Áno, z garáže venkom a do technickej, áno, z technickej cez komoru do kuchyne a von. Špinavá zóna je oddelená.
Odpovedať
Pocuj ze ty predavas dvere,alebo niekto z rodiny :-) tak maly dom a dveri jak na poschodaku o 250 m2.
Odpovedať
Profilova fotka
@atlaska bodaj by som predával, ;-) toto je iba pracovná verzia, bude sa to upravovať. A keď sa nase...m, zavesím všade plachty miesto dverí. Napočítal som 9 vnútorných, vstupné, garážové, z technickej na záhradu a z obývačky na terasu. Teraz neviem, je to veľa???
Odpovedať
Profilova fotka
@topvideo upresňujem vnútorných 7
Odpovedať
Profilova fotka
@atlaska My mame 167m2 a vnutornych dveri mame dokopy 12.
Odpovedať
Profilova fotka
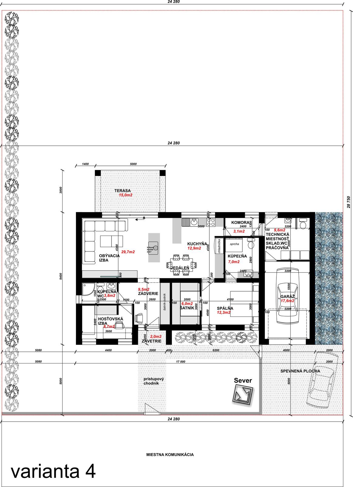
Pokročili sme ďalej vo vytváraní pôdorysu. Posúďte...
Odpovedať
@topvideo Libi se mi ta posledni asi nejvice. Jeste bych zauvazovala, zda by nebyl lepsi pristup do technicke a pracovne pres koupelu. Ta komora je opravdu mala a kdyz potrebujes prenest velky kos pradla nebo neco, tak se ti bude spatne prochazet a take ztratis v komore misto. Nenosis spinu do kuchyne a take kdyz budete mit spinave pradlo na prani, staci jej prenest z loznice nebo koupelny do pracovny. Ja bych komoru neudelala pruchozi, ale vchod do pracovne/skladu udelala pres vasi koupelnu. No a jeste jedna - urcite si zvetste terasu. 15m2 vam stacit nebude (vim o cem mluvim:)) Tech 20 i na stul a zidle mi pripada tak akorad. Ten navrh je moc hezky... Jeste mne napadlo prohodit obyvak a kuchyni, ze bys z obyvaku sel do loznice, nez "rozkem" v kuchyni. Tesim se na realizaci:)
Odpovedať
@topvideo Dobrý den. Zatím nejpovedenější alternativa z Vaší dílny ( teda předpokládám, že z Vaší :-D ). Přez koupelnu nechodit. To je naprostá blbost!!!!!!!!!!!!!!! Tuším, že tam budete pouze Vy a žena ( asi Vaše :-D ), takže mě se to celkově zamlouvá, pro dva super luxus....... S pozdravem Laďa
Odpovedať
@topvideo podareneee, ma to logiku...
Odpovedať
Článok sa načítava...
Profilova fotka
@linee vstup do technickej-práčovne z rodičovskej kúpelne stojí za zamyslenie, komora by bola neprechodná. Uvidíme. ;-), terasa - tiež pouvažujem nad jej veľkosťou. @ladajaskva Dík, vidíš, že sa dopátrame konečnej verzie, na jar začnem stavať. 8-) @drevostavba Ďakujem. Ešte zväčším spálňu a šatník smerom do ulice o 1 meter, aby sme sa v spálni netlačili. :-)
Odpovedať
Profilova fotka
Ďalšie vylepšenie.
Odpovedať
Dobrý den. Ještě větší terasu ( 6 x 4 je tak akorát ) a bude to OK. A vlastně ještě jedna připomínka - rozšířit barák o cca 20 - 30 a to pouze z důvodu rozšíření garáže. Jak si pořídíte velké auto, tak budete pořád mlátit dveřmi do stěny. S pozdravem Laďa
Odpovedať
@ladajaskva Mne to teda pripada logicke. My prvni, co prijdeme domu, umyjeme si ruce a prezleceme se do pohodlnejsiho, popripade osprsime. Takze by to mel po ceste. Dostat se do loznice pres technickou, komoru, kuchyni je podle mne blbost (predpokladam, ze budou jezdit autem). S hodne vecma s tebou souhlasim, ale s timto nebudu :-p @topvideo
Odpovedať
Profilova fotka
@ladajaskva To je už to najmenej...
Odpovedať
Profilova fotka
@linee ten variant s prechodnou kúpeľňou mi veľmi nevonia, budeme chodiť buď to cez komoru alebo vonkajškom z garáže popred dom. To závisí, či bude sucho alebo bude pršať.
Odpovedať
@topvideo Vzdyt je to na vas, vam to musi nejvice vyhovovat:)
Odpovedať
Profilova fotka
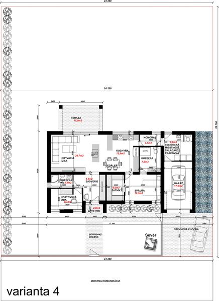
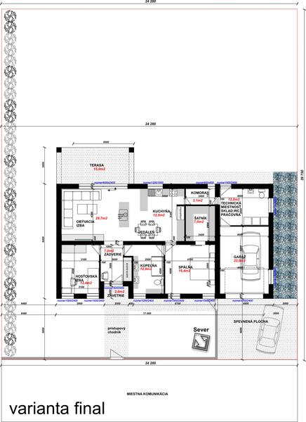
Ubehlo pár dní a len pre informovanosť zverejním "asi" poslednú a konečnú verziu pôdorysu :-) , pripomienky vezmem do úvahy iba vo výnimočnom prípade. /Viem, že niektoré kóty a výmery nesedia, je to iba pracovná štúdia/
Odpovedať
@topvideo final vyzera fajn. ;-) ja by som sice spalnu na sever nechcela, ale vyssie si si to "obhajil", takze OK. ;-) jedine, co by som zmenila, su dvere v zadveri. ja by som tam kde konci botnik dala nejake zasuchovacie dvere, aj za cenu zmensenia zadveria. u mna proste musi byt "spinava" zona oddelena. :-D
Odpovedať
@topvideo my sme kupili hotovy dom s dlhou chodbou a ja som tam dala taketo dvere. ale poviem uprimne polroka sme sa s muzom dohadovali. on nechcel za ziadnu cenu zmensovat chodbu a ja som to chcela zavriet. :-) novovzniknuta chodbicka ma rozmer len 3x1,8, ale prax potvrdila, ze to bolo super riesenie.
Odpovedať
Profilova fotka
@adulik23 Je mi sympatickejší otvorený priestor pri vstupe, uvidíme praxou, dá sa tam osadiť nejaký roldor systém.
Odpovedať
@topvideo ako keby som toho mojho pocula. :-D stenu s dverami sme osadzali skoro po roku byvania a odvtedy pocuvam len: predtym to tu bolo krajsie, svetlejsie, modernejsie .... :-p prvy mesiac dokonca na protest dvere ani nezatvaral, ale uz sa s nimi zmieril. :-)
Odpovedať
Profilova fotka
@adulik23 aj teraz v byte nemám dvere na kuchyni ani na obývačke, viem, že pri vstupe do domu tam vpustím studený vzduch, ale to mi nevadí. Tiež som čítal o dobudovávaví zádverných dverí, ale chceme to takto.
Odpovedať
topvideo, kto ti to kreslí, kto ti to naprojektuje ako projekt ok, ale kto ti robí zmeny ako tomáš poriešené.. je to individuálny projekt...???
Odpovedať
Na pridanie príspevku sa musíte prihlásiť.
Presunutím fotiek môžete zmeniť ich poradie

Nenašli ste čo ste hľadali?