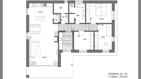
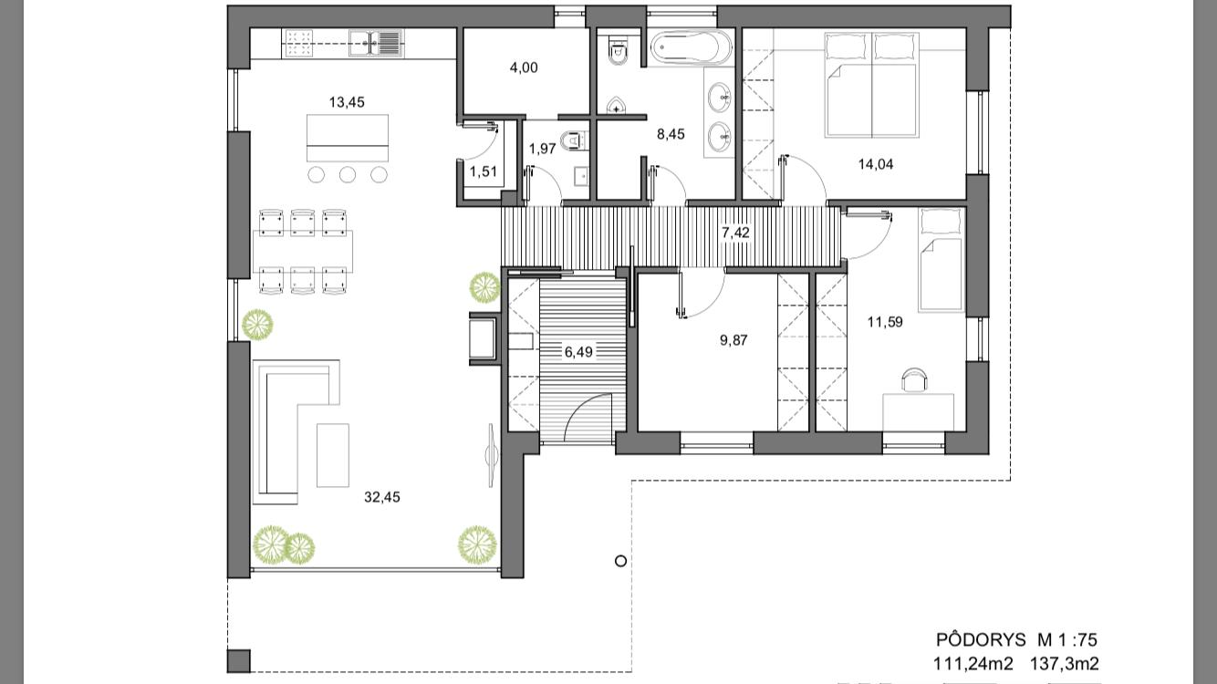
Podorys - upraveny

Zobraz úvodný príspevok
Profilova fotka
Tak sme ho trosku upravili. Dakujem za vase nazory a podnety ktore som si vzala ku srdcu. Snad sa vam aspon troska bude pacit. Ale aj nemusi. :) Nie nadarmo sa hovori: Kolko ludi tolko chuti. Vdaka 💗
Odpovedať
1
2
Profilova fotka
@marek_norway dakujeme vykonam! :-)
Odpovedať
Profilova fotka
@jakino to mi ani nehovor! Moje nervy! Stavba domu je horsia ako vychovavat dieta sa mi zda! :-D no to by som nedala. Chcela som si v IKEA programe navrhnut len kuchynu a myslela som ze zosaliem. Ako som to otvorila tak rychlo som to zavrela s tym, ze ved kuchynske studio to navrhne! :-D
Odpovedať
Profilova fotka
@pallacinka ale kam s krbom potom nakolko ny sme chceli mat krb v obyvacke nie v jedalni..
Odpovedať
Profilova fotka
Uz to bolo spominane ale neda mi. Ja som bol dlho zastanca ze jedno wc staci. Pred par rokmi som bol u znameho a ma v technicku miestnost priecne rozdelenu len nizkym murikom. Hned od dvery je wc a oproti umyvadlo. Potom je ten murik a za nim pracka, kotol, susiak rury.... Uz to mam aj ja tak v projekte.
Odpovedať
@karkulka02 kuchyna na juhu??? Jedlo na sporaku sa vam pokazi skor ako ho stihnete navarit :-) Tento projekt nie je dobry. Pivnicu a podkrovie budete mat?
Odpovedať
Ako architekt moze dat TV oproti velkemu oknu.
Odpovedať
@atlaska @karkulka02 Mne sa zda, ze tento projekt nerobi architekt. Na tu sklenenu terasu sa ako chodi? O co by to bolo jednoduchsie keby sa ten skleneny roh zrusil. Presne tam by som dala obyvacku :-) Alebo ked aj nie, tak jedalensky stol do vzniknuteho rohu a krasne velke terasove dvere. Uz ked chcem mat velke sklo. Moc som sa zatazila na ten roh :-N Neberte to v zlom. My sme tiez postavili dom. Mam prehlad. Pochodili sme po navstevach, obzerali. Pravi kamosi vam povedia pravdu. Aj o nevyhodach "vykladov", aj spinavych oknach pri zemi po dazdi, Dajte si velke okna, presvetlie miestnosti, ale bacha na horuce slniecko. Aj ked neviem kde na Slovensku chcete stavat. Je pekne, ze sa pytate na nazory. Len tak dalej.
Odpovedať
@evica01 pise ze architekt ;-) ten by mal aj kuchynu navrhnut aj nabytok rozclenit. nie kuchynu potom prisposobovat podorysu.
Odpovedať
Profilova fotka
@karkulka02 na tu predsien si daj pozor. Ak nechcete domov a z domu chodit na etapy, tak by tam (navyse popri skrini, ak planujes) v pohode okolo seba prejst dvaja mocnejsi dospeli ludia. Inak to bude obmedzovat aj vas a este ked ti na navstevu pride taka 4clenna rodina, tak to zacpete uplne. Ak sa neda rozsirit, tak tam aspon nenacpi rolldor, ale len vesiakovu stenu a k tomu nejaku komodu na topanky, na ktoru mozes pri obuvani posadit seba alebo dieta. Budete tam mat pocitovo ovela viac miesta - zaveseny kabat ti uhne, skrina nie. A ta kupelna, no dve mensie aspon nemusis umyvat naraz :D Ale ozaj pokial to priestor dovoluje, tak je podla mna lepsie to rozdelit na dve "sukromne" miestnosti. V kazdom pripade to je na vas. Mnozstvo rodin byva s panelakovymi kupelkami s jednou vanou alebo sprchou a jednym samostatnym WC a ziju :)
Odpovedať
Pubertak sa ti v kupelni zamkne (a najma chlapec) a bude sa tam sprchovat aj polhodinu ;) takze sa mozes rozlucit s tym, ze sa tam pojdes umyt. Alebo si predstav situacie, ked sa budete ponahlat na nejaku akciu, ci rano do prace a skoly. Tvoj syn ti do kupelne ani nestrci nos, ked sa budes sprchovat alebo, v istom veku, ani vtedy, ked sa tam budes licit... ono je to ine, ked mas trojrocneho a ine, ked mas 12- a viacrocneho. (Sama mam syna a uz ako 5-rocny je hanblivejsi, ako ked mal tri roky. A to pritom doma vnimame nahotu ako uplne normalnu a neskryvame sa. A vyrastala som so starsim bratom a velmi dobre si pamatam, ako mu vsetko vadilo.) V tvojom podoryse toho vela upravovat netreba. Ved ten sprchovy kut mozes len priclenit k wc, tzn. bude murovany z druhej strany. Velke kupelne su krasne, ale fakt neprakticke. Nie kvoli umyvaniu, lebo je fakt jedno, ci je rovnake zariadenie v jednej alebo dvoch kupelniach. Ale z pohladu sukromia clenov rodiny, ci pripadnej navstevy, je neporovntelne lepsie mat dve miestnosti s hygienickym zariadenim. Ak teda na to mas v podoryse miesto a planujes pouzit sprchac aj vanu a mat dve wc. V tvojom pripade ide len o posunutie priecky, ktora ti usetri cas aj nervy do buducnosti.
Odpovedať
@maslenka47 to nevysvetlis, ludia stale podcenuju vstup. Vstup pre rodinu a navstevy 90cm a satnik pre jednu osobu 180cm. Toto treba otocit.
Odpovedať
Profilova fotka
@evica01 @atlaska no ano, tento projekt robi architekt. a nic neberiem v zlom. :) ludia su rozni a treba brat nazory s rezervou. Musim povedat, ze uz mam projekt znova zmeneny. S obdlznika vzniklo nakoniec L a sranda ale vacsinu co mi tu bolo vycitane sme zmenili. :) Pozeram, ze vyvoj podorysu je dlha cesta a mat uz 5 finalnu verziu je uz na smiech. A to je len zaciatok. :) Dakujem za nazory.
Odpovedať
Profilova fotka
@maslenka47 dakujem za nazor. podorys sme uz upravili a predsien je vacsia. :)
Odpovedať
Profilova fotka
@kkl82 dakujem za nazor. :) ach tak velmi sa nechcem vzdat tej velkej krasnej kupelne, No ale vela ludi to tu hovori, teda hlavne zeny tak asi budem musiet nad tym porozmyslat, No skusim to prejst s architektom. Este raz vdaka. :)
Odpovedať
@karkulka02 Skus prilozit novy podorys
Odpovedať
Profilova fotka
Tak a tu je novy... Viem, stale je tam velka kupelna, Nad tym teda este porozmyslam, ale zda sa mi to ako dobre argumenty, co sa tu spominali. :) Prechod cez wc do TM, no tak s tym som trosku bojovala ale takto to vyslo. Verim, ze sa blizime k finale... :-D
Odpovedať
Článok sa načítava...
Architekt ked mu zadas, co chces v dome-sauna, dve detske, kuchyna spojena s obyvackou, pracovna.......ti na prve stretko donese aj 5 roznych verzii, s ktorymi potom pracujete a mozno ta 21. bude konecna a mozno nie. Tento vas pracuje aj na Novy rok , wau!
Odpovedať
Profilova fotka
@atlaska no nakolko je to rodinny znamy, tak ano, pracuje stale, :)
Odpovedať
@karkulka02 Výborne :-) Ešte pár drobných úprav a dostaneš sa na môj pôdorys, len vo väčšom :-) To okno daj na stred jedálenského stola, bude vám viac chutiť. A porozmýšľaj nad rozdelením kúpeľní, kde by v jednej bola vaňa, WC a umývadlo a v druhej sprcha, WC a umývadlo.
Odpovedať
Profilova fotka
@jakino :) zeby sme mali podobny vkus? :) No len tam som chcela dat francuzke okno. Ale porozmyslam nad "kratkymi" nakolko by sa mi pacilo pozerat do zahrady ked umyvam riad, teda urobit kuchynu do tvaru L. No asi nebudem mat pokoj, kym tu kupelnu nerozdelim. :-D Dakujem. :)
Odpovedať
kup si mycku a nebudes musiet umyvat riad. cez uzke okno aj tak vela neuvidis do zahrady, chcelo by to vacsiu sklenenu stenu a inak vystavanu kuchynu. Paralela je fajn,ale takto cumis pri kazdej praci do steny, este aj z barovych stoliciek nevidno von. Nieje to podobny vkus, 90% malych bungalovov je velmi podobne riesenych. vstup, na jednu stranu obyvackokuchyna, na druhu stranu splane a oproti vstupu kupelne a tm.
Odpovedať
Profilova fotka
@atlaska mycku samozrejme budeme mat. Nebude tam uzke okno. Nechapem len naco musi byt vidiet von z barovych stoliciek?! No vidim ze si odbornik na vsetko. ;) dik za postrehy a maj pekny den. :)
Odpovedať
@karkulka02 vobec to nie je ma smiech! Kludne si mente co chcete. Su to vase peniaze, vas zivot. Pekne vam to ide ;-)
Odpovedať
ty chces pozerat do zahrady ked umyvas riad :-) no skade inak by mal by vyhlad von ak nie zo sedenia? z chodby?
Odpovedať
@atlaska my mame okno do zahrady nad drezom. co je na tom zle? v zahrade bude detske ihrisko, uplne idealne, ako varit a kontrolovat...
Odpovedať
@bozsky_kaja len v tomto projekte je varenie aj drez oproti stene. ved pisem ze treba urobit stenu zo skla aby videla do zahrady.
Odpovedať
1
2
Na pridanie príspevku sa musíte prihlásiť.
Presunutím fotiek môžete zmeniť ich poradie

Nenašli ste čo ste hľadali?