Rozvod vody

Zobraz úvodný príspevok
Zdravím ma tu niekto spravený rozvod vody na rozdeľovač TUV ku každej nástenke jeden okruh? Chcem to riešiť takto kvôli spojom v podlahe, chcem mať istotu do budúcna,, poprípade aký máte rozdeľovač atď,
Odpovedať
@knedlik82 ty by si mal najprv citat s porozumenim. Tento tu chce dazdovu vodu len do splachovacov a do pracky. Preplach potrubia sa realizuje pri zamene studna/vodovod a na pitne ucely Hlavne, ze vsetci su blbi, len ty si lietadlo...
Odpovedať
@knedlik82 Kusok si nepochopil, ale drzim Ti palce :-)
Odpovedať
@bigmanik vies co bude najlepsie. Nic neprepajat. Ked dojde dazdovka, napustas zbernu nadrz z vodovodu a budes splachovat. Usetris si par drobnych za prepojovacie prvky a aj voda vo vodovode bude v bezpeci
Odpovedať
mna to tiez caka takto prepojit
Odpovedať
@knedlik82 ktorému slovu z tohto odstavca nerozumieš? (3) Odberateľ nesmie priamo spájať vnútorný vodovod pripojený na verejnú vodovodnú sieť s potrubím zásobovaným z iného zdroja (napr. z vlastného hydroforu, zásobovacej nádrže a pod.) a prívod vody cez spotrebič spájať s potrubím, ktorým sa odvádza odpadová voda. Na prepojenie vnútorného rozvodného potrubia privádzajúceho vodu z rôznych prípojok je potrebný súhlas dodávateľa. Odberateľ je povinný aj v ostatných prípadoch dodržiavať technické normy. :-D čiže v mene republiky: ak odberateľ odpojí nehnuteľnosť od verejnej vodovodnej siete, môže si tam napojiť aj rozvod rumu a naopak. (a práve na to slúži tá hadicová prepojka - na odpojenie jedného zdroja a pripojenie iného)
Odpovedať
@foox niektory tomu nechapu ze za to mozu dostat paragraf za vseobecne ohrozenie ...
Odpovedať
@knedlik82 vramci BVS kedze si z BA kraja mas zakazane spajat napr. studnovu vodu z okruhom verejneho vodovodu, ani cez klapku.... ak sa nic nezmenilo
Odpovedať
@zita19 Urobím to presné tak. Nemal som v ton jasno preto som sa chcel poradiť. Ďakujem každopádne všetkým.
Odpovedať
@foox V mene socialistickej republiky si chcel asi napisat :-) Odkial si toto vytiahol, z akych analov? :-) Ja som tento tvoj odsek nasiel vo Vyhlaske 154/1978 Zb. Ministerstva lesného a vodného hospodárstva Slovenskej socialistickej republiky o verejných vodovodoch a verejných kanalizáciách. Tato vyhlaska bola asi pred 20 rokmi zrusena. A podstata by aj tak ostala – že vynaliezavy obcan obide jedno ustanovenie, to nic neznamena.
Odpovedať
@knedlik82 ale že ti trvalo to nájsť :-D
Odpovedať
Diskusia pokračuje po 2 rokoch
Ahojte potreboval by som radu- napriek pôvodnému plánu nerobiť (viete ako to je chlap mieni manželka mení a čo by sme pre radosť svojich polovičiek neurobili 🙂 ) plánujem robiť na poschodí kúpeľňu. nič extra tam neplánujem, klasika 2x vývody studená teplá + vývod studená (sprcha/vaňa, umývadlo, wc). Rozvody v dome mám alpex- zdroj vody domáca vodáreň napojená na vlastnú studňu. Premýšľam nad tým, či stúpajúci rozvod ťahať DN16 alebo DN20 a až hore po rozvetvení to ťahať na jednotlivé miesta DN16? Ide mi o to aby som mal dobrý tlak na poschodí a nič som nepodcenil. Našiel som si na to aj nejaké odbornejšie články, prepočty ale svojimi výsledkami som si nebol úplne istý tak uvítam rady skúsenejších. technická realizácia ako taká mi problém nerobí to zvládam. A možno je ešte dôležitá informácia že rozvod vody nemám riešený do hviezdice. Prevýšenie medzi domácou vodárňou a nástenkami na poschodí bude cca 5 metrov (vodáreň mám v pivnici).
Odpovedať
@sousedekovci89 určite stupačka D 20
Odpovedať
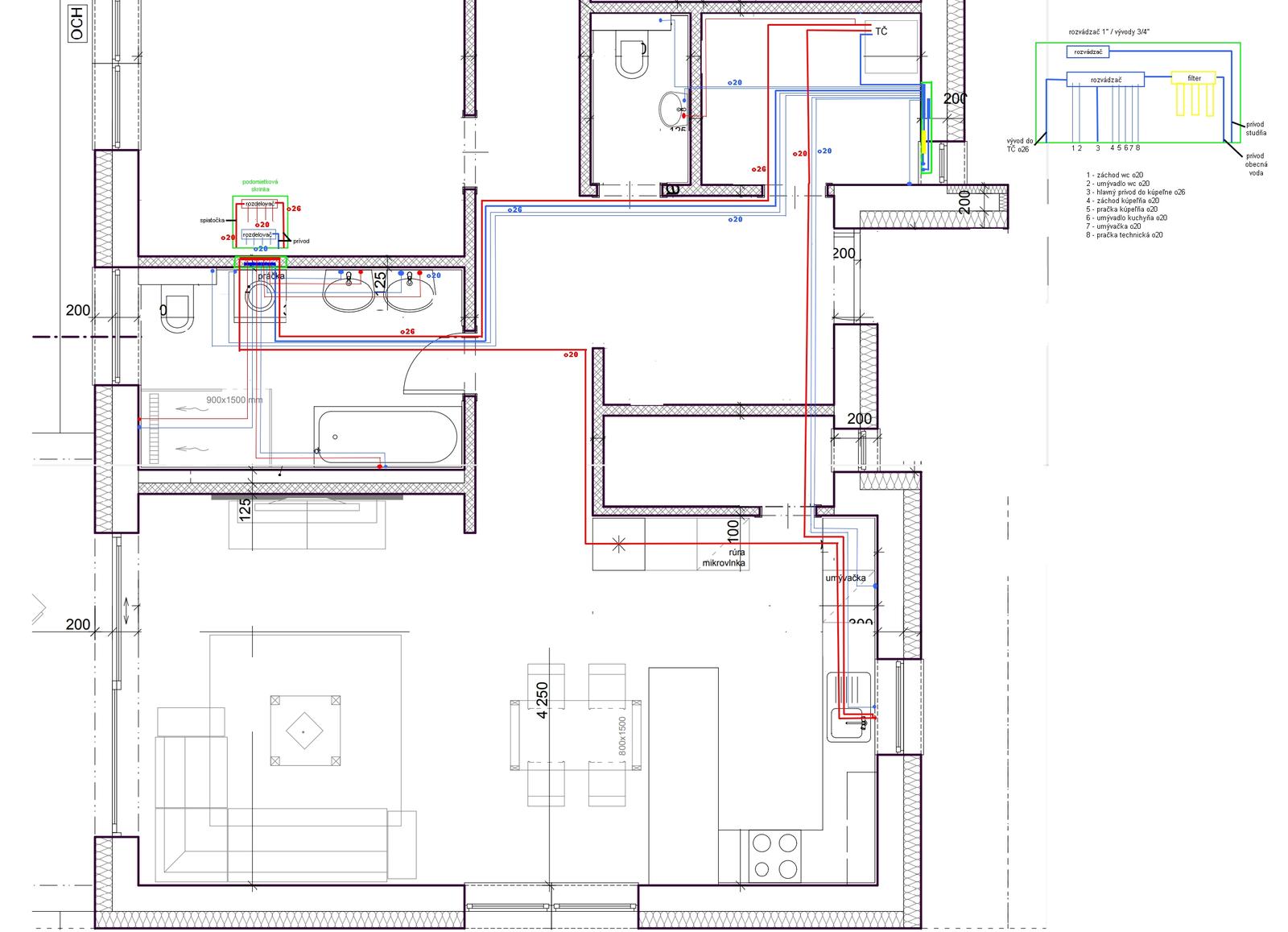
Ahoj, plánujem plastohliníkové rozvody vody a rád by som sa vyhol spojom v podlahe. Z tohto dôvodu uvažujem, že by som dal jeden rozvádzač do technickej miestnosti z ktorého by sa napájali blízke zariadenia a druhý by som dal priamo do kúpeľni odkiaľ by sa napájala každá nástenka v kúpeľni samostatne. Prikladám nákres ako by som si to predstavoval. Myslíte, že by to bolo takto ok? Mám pochybnosti hlavne o tej spiatočke teplej vody, neviem či je toto vhodné riešenie - z TČ rúrou ø26 do rozdeľovača v kúpeľni a z rozdeľovača rúrou ø20 do kuchyne a cez priechodnú nástenku späť do TČ. Keďže plánujem neskôr využívať studničnú vodu minimálne na wc, prípadne na pračku a umývačku, v technickej by boli 2 rozdeľovače a podľa potreby by som si prepojil prívod k týmto zariadeniam, preto sú rozvody na tieto zariadenia ťahané samostatne z technickej miestnosti. Čo si myslíte o priemeroch? Pri takto ťahaných rozvodoch by stačili ø16 alebo nechať všetko ø20? Ďakujem
Odpovedať
@marselino7 Zakladna vec chyba, tlak vody. 26? Uplny nezmysel. Ked cirkulacka, tak do slucky VSETKY odberne miesta a neriesime ziadny rozdelovac tym padom... usetrene, 100% komfortne a funkcne... nie ak ten mackopes na obrazku. Ak mas tlak +3bar, zosluckuj nastenky teplej 16kou a vybavene...
Odpovedať
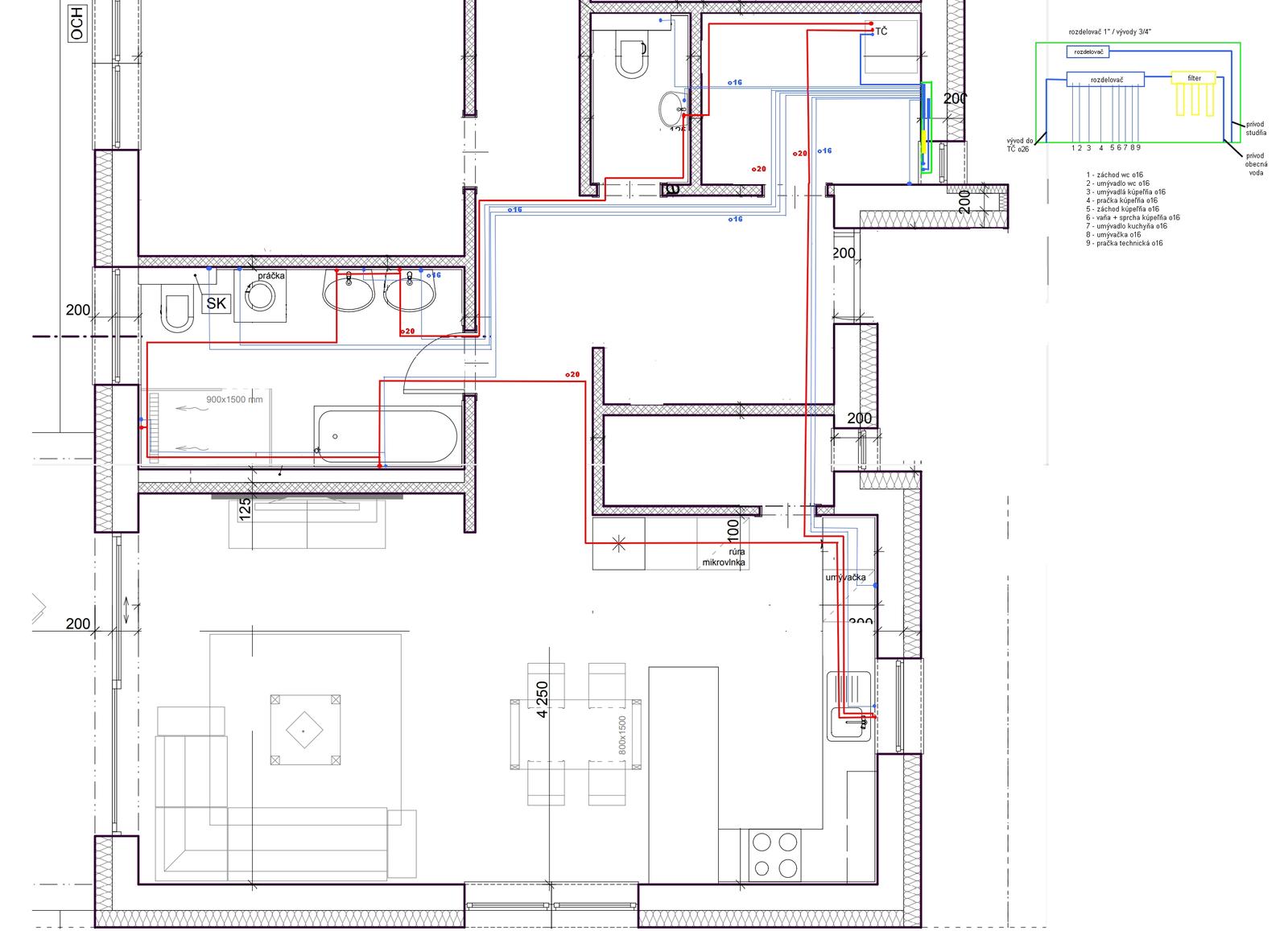
@kejsix ďakujem za odpoveď, myslíš takto nejak? Rozdeľovač v kúpeľni som teda vyhodil a rozvody studenej vody urobil z rozdeľovača v technickej, priemer rúry ø16. Teplú vodu by som zokruhoval cez prechodné nástenky. Myslíš že by stačila aj tam rúra ø16 alebo na tú teplú vodu dať ø20? Ďakujem
Odpovedať
@marselino7 spravit 2 rozdelovace, privod 26tka, k bateriam 20tka a cirkulacka zo 16tky
Odpovedať
Článok sa načítava...
@michal_brezansky takze ty by si to riesil ako na prvom obrazku?
Odpovedať
@marselino7 ano ale nie rozdelovac do kupelne ale do spajze
Odpovedať
@michal_brezansky takze ale cirkulacku zapojit do serie cez nastenky?
Odpovedať
napriklad, ja zas potiahnem cirkulacku naspat k rozdelovacu a tam to spojim a odtial uz napriamo do TC
Odpovedať
@knedlik82 nechapem preco stym chces otravovat min zivot pros ked toto je hlavne starost tvojho dodavatela vody aby si mu to tam nekontaminoval ...
Odpovedať
Diskusia pokračuje po 5 mesiacoch
vodar doporucil
Odpovedať
Diskusia pokračuje po 4 mesiacoch
@rkorba aký máš priemer rozvodov ? 16x2 ? U mňa je najdlhšia vetva 16m a neviem sa rozhodnúť či bude stačiť 16x2 alebo radšej 20x2,5.
Odpovedať
@purplesticks uz si ani poriadne nepamatam ale tusim som tahal 20x2 do sprchy a vane a 16x2 na umyvadla.
Odpovedať
@kejsix @rkorba je nejaká jednoduchá pomôcka na základe ktorej môžem navrhnúť priemery potrubia na základe vzdialenosti ? Priemer 16x2mm môžem použiť na max. akú vzdialenosť ? (jeden výstup)
Odpovedať
@purplesticks skor ide o to ake mnozstvo vody tam chces dopravit pri akom tlaku.
Odpovedať
Serus chcem sa spýtať. Z pivnice do 2NP to je cca 5m aký priemer prívodu plastohlinika dať do rozdeľovača pre pitnú vodu?
Odpovedať
Profilova fotka
rozdelovac je vacsinou 1 coll, takze plastohlinik 32.
Odpovedať
Na pridanie príspevku sa musíte prihlásiť.
Presunutím fotiek môžete zmeniť ich poradie

Nenašli ste čo ste hľadali?