Vykurovanie klimatizáciou v zime - máte skúsenosť?

Zobraz úvodný príspevok
Profilova fotka
Má niekto skúsenosti s vykurovaním klimatizáciou v zime. Zaujímajú ma pocity, nie technické podmienky. Predsa ten vzduch fúka, vnútorná jednotka je hore, pre chladenie je to dobre, pre kúrenie treba nastaviť fúkanie nadol. Prípadne má niekto skúsenosti s parapetnou vnútornou jednotkou?
Odpovedať

Odpoveď na príspevok od matko291:

@rkorba 6 klím, priatelu to kde ich všetky využív…
@matko291 vsade :-)
Odpovedať
Profilova fotka

Odpoveď na príspevok od matko291:

@iamriso životnosť Sinclair o dosť nižšia čo je o…
@matko291 otázku by si musel smerovať na predajcu/montážnu firmu, nie na mňa.. ja som práve v štádiu výberu klimatizácie, skúsenosti s klimatizáciami nemám... mne len predajca povedal, že nemám pozerať na dizajn, funkcie atď. ale hlavne spolahlivosť a teda odporúča mi Daikin... no a už mám nacenenú aj Sinclair Marvin 5 kw a čo ma strašne prekvapilo, tak o 300€ drahšia jednotka, pričom na internete čo pozerám, tak cenovo sa dá zohnať rovnako ako Daikin Sensira (na niektorých stránkach dokonca ešte lacnejšia)... no tak to si bohužiaľ musím nájsť iného predajcu/montážnu firmu
Odpovedať
Profilova fotka

Odpoveď na príspevok od iamriso:

@matko291 otázku by si musel smerovať na predajcu…
@iamriso zaskočilo ma to že mam Sinclair Spectra plus v prevadzke 5r a bez problemu
Odpovedať
Profilova fotka

Odpoveď na príspevok od david83:

Treba kúpiť najlacnejšiu klímu a nie predražené k…
@david83 @iarmiso "A ten rozdiel v obstarávacej cene nikdy neprekúriš. To sa jednoducho nevráti. " Ja mám 6 rok daikin comfora je to nižšia rada od Daikin ... stala 1355 € s montažou 3,5kw klima ide 5 zim nonstop, už som za prvý rok ušetril na kureni okolo 500€ takže už mam klimu dávno splatenú na úsporach za energie... už som písal, že nižšie rady daikinu sú za mňa lepšie jak tie modernejšie... mám aj perfery len zato, že ako jediné sa dajú zohnať vnútorné jednotky s výkonom len 1,5kw ... u čínskych konkurenciach sú jednotky min. 2,5kw to by bolo zbytočne za mňa mrhanie výkonom... ale na chladenie je úplne jedno akú klímu kúpiš... kľudne aj lacnejšiu čínu ... ale za mňa tie finkcie marketingové sú zvytočné... nikdy som to nevyužil... iba kúrenie abo chladenie ... ostatok sú zbytočnosti
Odpovedať
Ale zas aby sme nehovorili len pozitiva , ja mam aj negativum. Moja mitsubishi ma motorcek na naklapanie lopatiek hore/dole ktoreho zvuk mi vadi. Je to taky zvlastny elektricky zvuk a podprahovo ho nemozem pocuvat, tak funkciu naklapanie lamiel hore dole som vypol a pouzivam len dolava/doprava, ktore je tiche. Oproti tomu, daikin zas ma tiche naklapanie hore/dole, ale pukaju mi pamely pri naklapani dolava/doprava. :D Budem to casom riesit zarukou asi. Ale trochu sklamanie z tohto.
Odpovedať
Profilova fotka

Odpoveď na príspevok od wheel:

Ale zas aby sme nehovorili len pozitiva , ja mam …
@wheel no za mňa daikin perfera už som písal tu praská neskutočne... asi lacné plasty ... pri defrostoch a zahrievaní vydáva zvuky ako keby sa rúcal dom... ako je to tiež dosť nepríjemné... a lacnejšia comfora je super... akurát možno má hlučnejší ventilátor .. tá perfera je naozaj extrémne tichá čo je výhoda nakoľko ju má dcéra v izbe a spí pri tom ako zabitá... ale ako tie lacné plasty ma pri takejto jednotke kus prekvapili... alebo je to možno konštrukciou ... comfora je viac oblejšia a perfera hranatá
Odpovedať
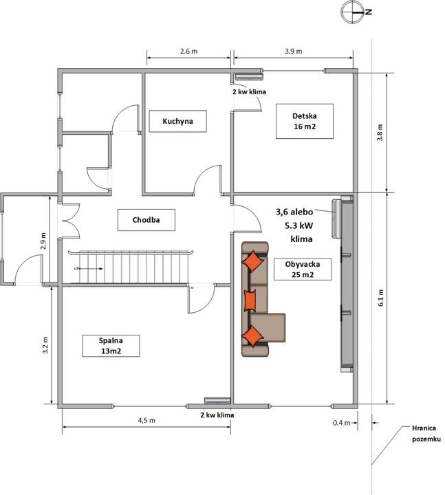
ahojte. Potreboval by som Vas nazor na vykon klimatizacie. Potrebujem pokryt prizemie rodinneho domu. Prizemie rodinneho domu ma tak 90 m2 plochy. Klimatizacie by mali byt aj primarny zdroj vykurovania. Tepelne straty su tak 8-9 kWh pri -15 stupnoch, takze moja predstava je, aby tie klimatizacie stihali vykurit pri tej teplote. V detskej a spalni predpokladam nejake 2,5 kW jednotky, ktore budu sucastou multisplitov. Do obyvacky by som chcel dat Sinclair Spectrum plus. Firma navrhla 3.6 kW klimu, ktora papierovo kurit 4 kW pri -15. Len mne sa to zda nejako malo. Neviem, ci ist radsej do 5.3 kW, ktora dokaze kurit 5.6 kW. Dalsia vec, neviem ako ovplyvnuje dlzka privodu vykon klimy. Privod ku klime bude mat okolo 10 metrov, kedze vonkajsiu jednotka bude az za rohom domu.
Odpovedať
Zateplenie obvodových stien máš? Okná sú staré či plastové? To fakt máš tak otváranie dverí do spálne, obývačky a detskej izby?
Odpovedať

Odpoveď na príspevok od toky1:

Zateplenie obvodových stien máš? Okná sú staré či…
@toky1 > Zateplenie - na strope je nejakych 40 cm vaty, okna su 3-skla. Obvodove mury nie su zateplene, ale tam pojde tak 15 cm izolacie. No len neviem kedy. V detskej a obyvacke sa dver otvaraju ku stene, takze opacne ako je to nakreslene. V spalni a kuchyni sa otvaraju do priestoru. V kuchyni je to vyriesene, dvere su zhodene a v spalni sme si zvykli. No vyse 50 rocny dom.
Odpovedať
10m prípoje medzi vnútornými jednotkami a vonkajšou sú OK. Do tej obývačky by som určite nedával 5kW klimu, rozhodne postačí 3,5. Ja mám nezateplený dom a 5kW Vivax R klima mi vykúri obývačkojedálňokuchyňu cca 70m2 aj pri vonkajšej teplote -13°.
Odpovedať
Profilova fotka

Odpoveď na príspevok od asdfb:

ahojte. Potreboval by som Vas nazor na vykon kli…
@asdfb jak ti píše toky1 , podľa mňa tiež až 5kw jednotka do obývačky zbytočne veľký výkon... rátaj s tým, že čím väčší výkon aj väčší minimálny príkon... takže aj viac zožerie... určite postačí 3,5kw navyše tých -15 koľko krát do roka bude? neviem lokalitu ale ak to neni niekde Oravska Lesna tak pohoda
Odpovedať

Odpoveď na príspevok od dexter89:

@asdfb jak ti píše toky1 , podľa mňa tiež až 5kw …
@dexter89 > Na minimalny vykon som sa pozeral a 3.6 vs 5.3 to bol rozdiel nejakych 1 vs 1.1 kW. Takze tam nebol nejaky velky rozdiel. Teraz som pozeral, ze pri -15 to ma len nejakych 90% vykonu. -15 bolo naposledy pred dvoma rokmi v januari par dni. Poriadna zima naposledy bola v januari 2017, kde priemerna denna teplota za cely januar bola -7.5 stupna. Aspon udajov dodavatela tepla. Povodne som chcel ist do Gree U-crownu ale tie uz nie su. Opytam sa takto. V com by boli nevyhody tej silnejsej klimy ? O jednej viem. Silnejsia klima je hlucnejsia. Este takto. Mam predstavu, ze to dokaze vykurit aj chodbu, kedze v nej nebude ziaden zdroj tepla. Takze ja beriem ze bude kurit do obyvacky a aj chodby. Preto aj to umiestnenie oproti dveram.
Odpovedať
Silnejšia klimatizácia bude robustnejšia vnútorná aj vonkajšia jednotka a bude mať vyššiu spodnú hranicu elektrického príkonu. Dám príklad. Mám 5kW Vivax R a 2,5kW Midea Oasis Plus. Tá Vivax má spodnú hranicu elektrického príkonu cca 700W - keď regulácia potrebuje nižší elektrický príkon tak už nevie viac utlmiť svoj tepelný výkon takže vypne vonkajšiu jednotku - kompresor a prípadne ventilátor. Po povedzme piatich minútach ich naštartuje znova. A zas po chvíli vypne. Toto robí dokolečka a vraví sa tomu cyklovanie. To časté vypínanie a zapínanie znižuje životnosť kompresora. Spodná hranica el. príkonu tej 2,5kW Midei je cca 280W. Ak budeš často používať klimu v prechodnom období kedy bude tá prisilná neustále cyklovať tak sa skôr opotrebuje. Účinnosti tých silnejších klím sú tiež nižšie čiže bude mať aj vyššiu spotrebu elektriny. Ešte môže byť rozdiel vo veľkosti ističa.
Odpovedať

Odpoveď na príspevok od dexter89:

@david83 @iarmiso "A ten rozdiel v obstarávacej…
@dexter89 Myslel som rozdiel v obstaravajúcej cene za klimatizáciu. Nie rozdiel v cene kúrenia oproti elektrickému kúreniu. Ja mám klímu za 800 eur a tých vyše 500 eur za nejaký Daikin neprekúrim a neprechladím nikdy. O tom som písal. A za mňa radšej lacnejšiu 2,5 kW ako predraženú 1,5 kW. Tie nové klímy sú všetky s invertorom, nie že idú alebo nejdú. Takže toto by bola chyba z mojej strany. Lebo za ten rozdiel viem chladiť alebo kúriť niekoľko sezón. Ale každý nech si dá čo chce. Aj kolega má Mercedes už 5 rokov a 5 rokov ľutuje, že sa nechal ojebabrať predajcom.
Odpovedať
Profilova fotka

Odpoveď na príspevok od toky1:

Silnejšia klimatizácia bude robustnejšia vnútorná…
@toky1 takže radíš ísť do slabšej verzie klimatizácie? Lebo teraz riešim práve rovnakú situáciu... včera bola u mňa už tretia firma na nacenenie klimatizácie a ako prvý mi poradili ísť do slabšej 3,5 Kw verzie (predchádzajúce firmy mi hovorili že určite 5KW).. klimatizáciu idem dávať len do obývačky/kuchyne s veľkosťou cca 45m² ,čo je cca 120 m³ (dvere do vstupnej chodby a ,,prechodnej" chodby mám nonstop otvorené, tak dúfam, že aj tam dačo prejde)... klimatizáciu skrz prebytok energie z FVE chcem používať nonstop (kúrenie, chladenie, filtrácia vzduchu)... v popise klimatizácie je uvedené, že: Nástenná klimatizácia Sinclair Marvin 5,3 KW má chladiaci výkon 5,3 kW, vykurovací výkon 5,4 kW a je určená pre miestnosti s rozlohou do 45 m2. Elektrický príkon chladenia (min. - nom. - max.) 1,53 kW Elektrický príkon vykurovania (min. - nom. - max.) 1,39 kW Nástenná klimatizácia Sinclair Marvin 3,5KW má chladiaci výkon 3,5 kW, vykurovací výkon 3,8 kW a je určená pre miestnosti s rozlohou do 35 m2. Elektrický príkon chladenia (min. - nom. - max.) 0,99 kW Elektrický príkon vykurovania (min. - nom. - max.) 0,98 kW rozdiel medzi nimi je do 400€, ako jedinú nevýhodu mi uviedol, že 5KW je strašne veľká (o cca 17 cm) a že môže byť hlučnejšia = 19 - 41 dB vs. 23 - 45 dB, čo považujem za nepodstatné)... Doteraz som bol na 100% priklonený k 5,3KW (ešte k tomu keď mi táto posledná firma nacenila tú istú klimatizáciu o vyše 500€ menej, tak som sa potešil, že pekne ušetrím), len tvoj príspevok o cyklovaní ma dosť zneistil...
Odpovedať
Profilova fotka
Tak toto aj mňa zaujíma, tiež riešim klimatizáciu do obyvačko-kuchyni o veľkosti približne 90m2 mám teraz vivax 3,5kw ale pri väčších mrazoch doslova nevládze, možno je to tým že je to slabšia jednotka ale tiež si myslím že na tu plochu je potrebné 5kw možno sa mýlim a keby som kúpil lepšiu klímu napr Daikin tak by aj 3,5kw vykurila
Odpovedať
Článok sa načítava...
Mne ked cykluje v cca 70m2 obyvackojedalnokuchyni 5kW Vivax tak otvorim dvere na poschodie aby teplo stupalo hore. Ked mi cykluje 2.5kW midea v 24m2 spalni tak otvorim dvere do foyeur nech sa to teplo z klimy tam roztaha.
Odpovedať
Profilova fotka

Odpoveď na príspevok od iamriso:

@toky1 takže radíš ísť do slabšej verzie klimatiz…
@iamriso mám Sinclair spektre plus 5,4kw. Počas zimu šla za priaznivých vonkajších podmienok aj na 800w ale aj 3000w😀 tých ich údajov sa veľmi nedrž
Odpovedať
90m2 ti vykuri aj jedna 4kw jednotka ak mas standardne zatepleny dom. U teba je ale problem, ze mas tam schody cez ktore bude teplo utekat hore a to celkom vyrazne. Takze lepsie asi dve jednotky, dal by som 2x 3.5kw a po prvej zime uvidis ale malo by to byt ok s prehladom.
Odpovedať
Profilova fotka

Odpoveď na príspevok od wheel:

90m2 ti vykuri aj jedna 4kw jednotka ak mas stand…
@wheel nebude lepšie preto dať jednu 5kw ako dva 3,5kw jednotky ja mám tiež schody z obývačky na poschodie
Odpovedať

Odpoveď na príspevok od wheel:

90m2 ti vykuri aj jedna 4kw jednotka ak mas stand…
@wheel napisem ti vlastne zistenie. Dal som si do zahradneho 3,5kW a ma 50m2. V lete z 28 na 24C za 1h v poho stiahne, ale nabit to teplom musi ist z 16 na 22C aspon 3-4h.
Odpovedať

Odpoveď na príspevok od rkorba:

@wheel napisem ti vlastne zistenie. Dal som si do…
@rkorba Ved v poriadku, ale Ty klimami "nenabijas". Kuris od oktobra do aprila. Aj plynom by si nabijal vychladnuty dom 24 hodin. Ja by som dal radsej 2x3.5kw ako jednu 5kw. Financne to asi nevychadza lepsie, ale v prechodnom obdobi vies vykurit jednou jednotkou, na december-marec zapnes aj druhu. Alebo ked sa jedna pokazi, jednou stale fungujes. Alebo ked jedna defrostuje, druha ide.Lepsia distribucia tepla atd.
Odpovedať
Profilova fotka

Odpoveď na príspevok od rkorba:

@wheel napisem ti vlastne zistenie. Dal som si do…
@rkorba ty máš zahradný 50m2 ja idem deťom stavať prístavbu 50m2 😆
Odpovedať

Odpoveď na príspevok od iamriso:

@toky1 takže radíš ísť do slabšej verzie klimatiz…
@iamriso ten príkon 0.9 co tam píšeš cháp tak, že aj pri mojej sinclair terrel 3.5 kw je písané 0.9kw No v praxi je to u mňa v zime tak, že keď je vonku -5 až -7C° mam nastavené na vnútornej jednotke 24-25C ,tak minimálny prikon okolo 560-580w. To je najnižší príkon. Tuším tá 2.5 kw išla aj pod 500w. Vnútorna teplota cca 22.5st Tak isto aj jednotka u dcéry v izbe .
Odpovedať
Profilova fotka

Odpoveď na príspevok od matelko78:

Tak toto aj mňa zaujíma, tiež riešim klimatizáciu…
@matelko78 no mne jeden technik hovoril, že je rozdiel medzi 3,5kw daikin a 3,5kw inou jednotkou... že to vidia pekne na serverovňach ... rovnaká búda a iné jednotky a jedna si pokojne pradie a druhá ide "na doraz" Neviem čo je na tom pravdy či je to marketing... čo sa týka minimálneho príkonu ktoré sinclairi majú 900W ako tu píšu... tak ja som mal daikin napojený na merak a dával som sem aj fotky... pri kúrení to kľudne tá 1,5kw jednotka na príkon 200W, pri chladení dokonca 190 w to bolo... to dokáže si myslím v dlhodobom používaní aj ušetriť elektrinu ... či sa to niekedy vráti ten cenový rozdiel neviem... človek si tiež nekupuje najlacnejšie auto , ale priplatí si za kvalitu niekedy aj tisíce až desaťtisíce naviac... aj keď rovnako sa odvezie vo fabii ako v bmw... prečo potom všetci nekupujú fabie? 😀 ja kebyže kupujem klímu znova, zrejme idem opäť do daikinu alebo mitsubishi ale asi by som vyskúšal mitsu tú si tiež pochvaľujú ... a určite nejaký základný model... bez blbostí a extra funkciami, tie nikdy nevyužijem sú na nič... a cenový rozdiel medzi nejakou čínou s extra funkciami (ktoré nepotrebuje skoro nikto) a zákl. modelom, nebude až taký markantný
Odpovedať
Profilova fotka

Odpoveď na príspevok od dexter89:

@matelko78 no mne jeden technik hovoril, že je …
@dexter89 sused si dal Samsung wind free celkom zaujímavá vec, nic sa neotvorí, nič nefuka a predsa to plní svoju funkciu
Odpovedať
Profilova fotka

Odpoveď na príspevok od matko291:

@dexter89 sused si dal Samsung wind free celkom z…
@matko291 len ako? ten teplý vzduch treba nafúkať do priestoru... vtedy to je efektívne... tie wind free to mi tiež príde do veľkej miery ako "zbytočný marketing" možno pri chladení je to komfortnejšie
Odpovedať
Profilova fotka

Odpoveď na príspevok od dexter89:

@matko291 len ako? ten teplý vzduch treba nafúkať…
@dexter89 máš pravdu zažil som len chladenie, kúrenie zatiaľ nie
Odpovedať

Odpoveď na príspevok od matko291:

@dexter89 máš pravdu zažil som len chladenie, kúr…
@matko291 Pri kureni je to klasicka klima, tam sa windfree neda pouzivat. A Samsungy su asi najviac poruchove klimy, niektori to odmietaju montovat.
Odpovedať
Zdravim Vás Viem že to sem nepatrí,ale miestnost je pre niektorých ľudí uzamknuta Mám menič goodwe gw10k-et a dnes som si všimol že v nastaveniach solar go nemám možnosť funkcie -detekcie AFCI. Ešte pred nejakým časom to tam bolo v pokročilých nastaveniach.(Foto) Viete poradiť prečo?
Odpovedať
Na pridanie príspevku sa musíte prihlásiť.
Presunutím fotiek môžete zmeniť ich poradie

Nenašli ste čo ste hľadali?