Ahojte, poradte ako navrhnut kupelnu, kupelna ma 2x3m, jedina podmietka je ze je v kupelni kotol po pravej strane hore a pod kotlom by bola pracka. Je tam moznost mat vanu aspon 160cm, sprchovy kut 90x90, wc a umyvadlo? Podla prilozeneho navrhu? Na lavej strane je este male okno v strede.
@lenkito10 ahoj, dvere su napevno. Povodne je tam priprava na wc pod oknom sprcha alebo vana a umyvadlo s kotlom tam kde je, ale za kazdu cenu by som chcel sprchu a vanu,wc nie je pidmienka, to je samostatne vedla.
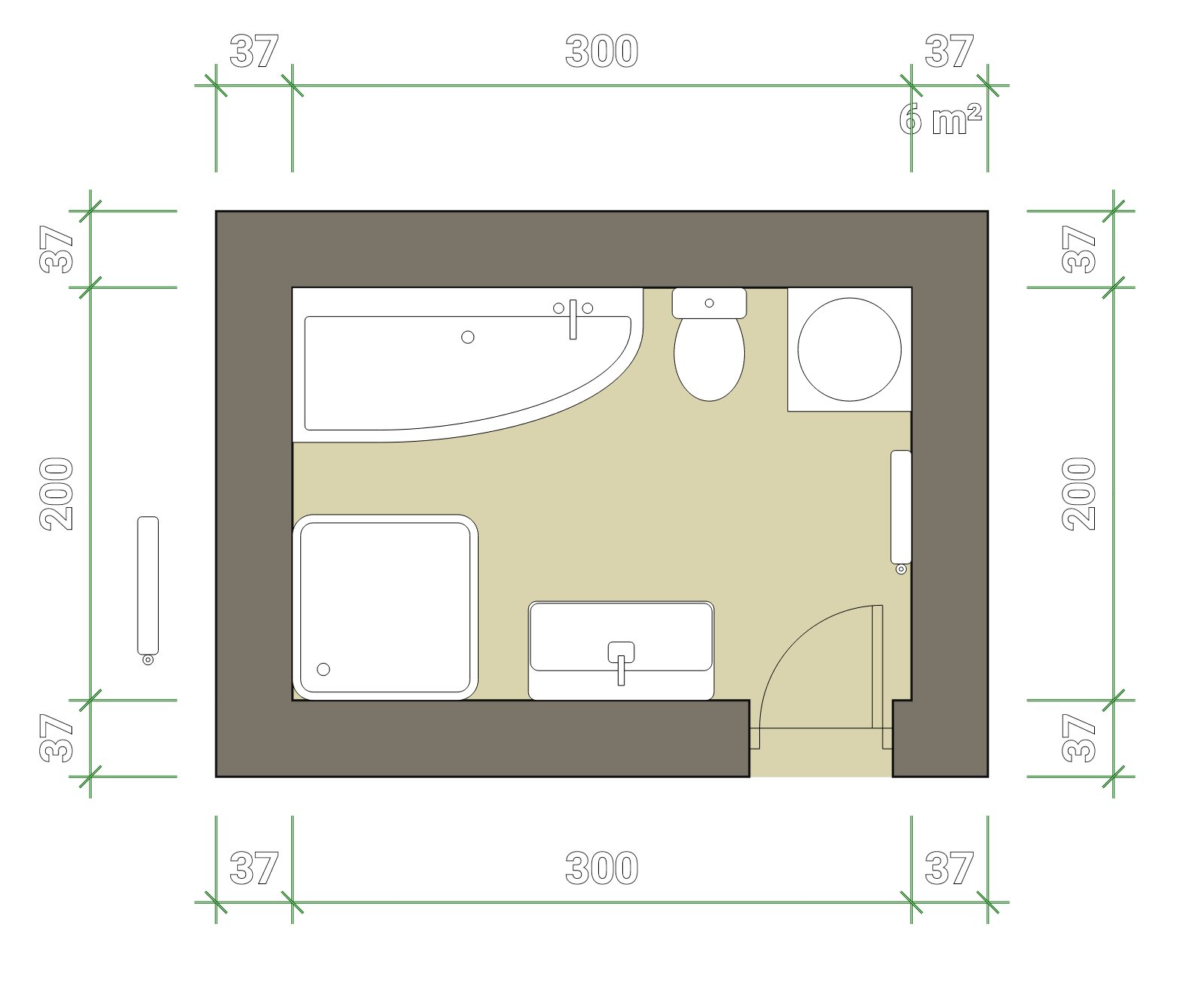
V tom prvom návrhu by som vymenila umývadlo a wc. Wc zaberie cca 70cm do "hĺbky" rovnako ako vaňa, ktorá by bola hneď vedľa. Umývadlo zvykne byť "užšie" ako 70 cm a teda bude popri ňom ľahší prístup do sprchy.
Tiez sa mi pozdava najlepsi asi ten od @lenkito10. Najprv sa mi nepacilo to wc opeoti dveram ale asi to bude dobre. Este mozno by nebolo zle porozmyslat ako bez wc.
@martin_demo no ved to je ten isty aky ti opisala zltalienka hore, dokonca aj s argumentami.
Akurat vanu odmerat, aka by sa tam hodila naj. Aky tvar.
Bez wc tak isto, no bez wc a s dlhsou vanou, alebo miestom na uloznu skrinku/kos na pradlo... Keby sa dvere mohli posunut, mohla byt sprcha za nimi.
WC oproti dveram nic moc, no lepsie ako hned vlavo od dveri. Zalezi ci ho tam potrebujes alebo nie.
Je to natesno, ale pouzitelne. Miesto tam zostane tak akurat.
@lenkito10 co si pridala ten posledny obrazok ten sa mi zda najschodnejsi, nebude vidiet wc hned ako sa dvere otvoria, pracka so susickou bude za dverami, to by mohlo byt uplne v pohode 🙂