Rozmiestnenie nábytku v spalni

Anonymný autor
Autor diskusie
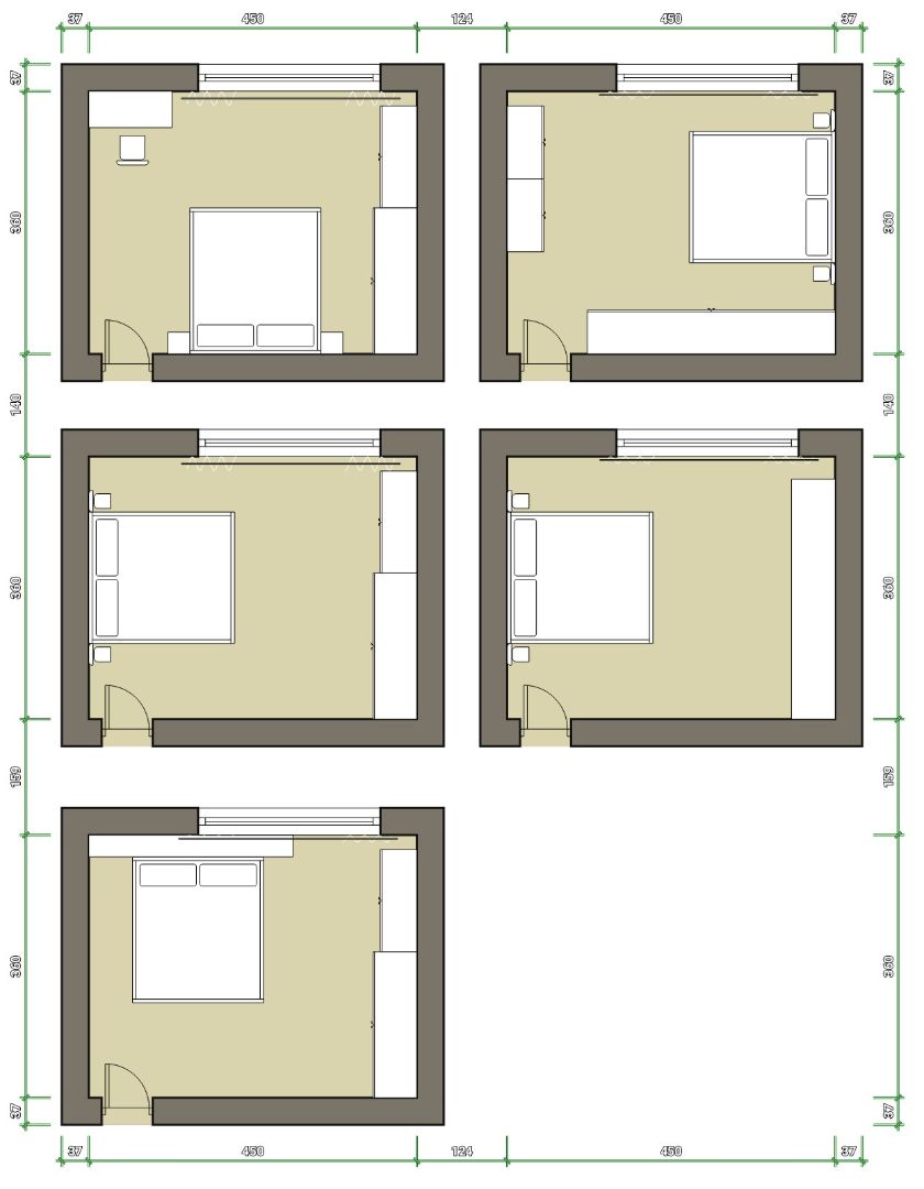
Zdravím poraďte mi prosím, kúpili sme dom a je celkom problém zariadiť spálňu. Potrebujem tam usporiadať skrinu, posteľ a nočné stolíky. Rozmery sú šírka 3,6 dĺžka 4,5 m. Mame dva navrhy vid foto. Prvý vidím nevýhodu v tom že okolo posteľ vznikne priestor len 50cm čo je naozaj malo na plnohodnotne fungovanie a otváranie skrine..a druhý návrh je vysunutie postele do priestoru..keďže tá izba nie je nejaká veľká bojím sa aby to nepôsobilo smiešne. Napadla mi ešte jedna alternatíva ale teda tá je tiež asi nič moc. Ak by niekoho napadlo niečo vhodnejšie budem moc rada..
Odpovedať

Odpoveď na príspevok:

Zdravím poraďte mi prosím, kúpili sme dom a je ce…
Dvere posunut nevies?
Odpovedať
Anonymný autor
Autor diskusie

Odpoveď na príspevok od wivik:

Dvere posunut nevies?
@wivik nie..všetko bude presne takto
Odpovedať
Za mna postel normalne k stene a pozdlz posteli skrina.Oproti postele spojene komody,teda nieco nizke aby to nebolo vsetko zahltene nabytkom.Neviem sice aku mas sirku postele ale pocitam max 180cm.Ked pocitam od okna 50cm stolik+180cm postel+60cm hlbka skrine,ostava tam este 70cm ako priestor pred skrinou co by bolo az az.
Odpovedať
Anonymný autor
Autor diskusie

Odpoveď na príspevok od kuracinarez:

Za mna postel normalne k stene a pozdlz posteli s…
@kuracinarez no práveže 70cm to isto nebude lebo posteľ je 180 cm ale tak aj rám to vždy presiahne čiže nejakých 186-188cm..
Odpovedať
Aj 60cm by bolo ok.Pokial aj tak by nevyhovovalo,tak skrinu oproti posteli a popri posteli potom nejake komody s hlbkou 50cm.
Odpovedať
Anonymný autor
Autor diskusie

Odpoveď na príspevok od kuracinarez:

Aj 60cm by bolo ok.Pokial aj tak by nevyhovovalo,…
@kuracinarez áno akože najviac sa nám páči tá alternatíva že komoda oproti..vysoká skrina oproti dveram mi príde neestetické riesenie
Odpovedať

Odpoveď na príspevok:

@kuracinarez áno akože najviac sa nám páči tá alt…
No musis premerat,skus sa niekde pred skrinu postavit a zhodnot kolko cm by ti trebalo.Varianta vysunut postel do stredu izby a za ne skrine je nic moc.Ale izba je celkom velka to zariadis v pohode.
Odpovedať
Tak najidealnejsie by bolo posunut dvere. Alebo dat postel pod okno, ale to nie kazdemu vyhovuje. Viem co je mat malo miesta okolo postele a uz by som to nikdy nechcela. Skrine by som dala oproti postele ale nerobila by som do L
Odpovedať
riesila by som podobnu postel, aj ulouny priestor v zahlavi, aj vysuvne nocne stoliky a srkrine oproti posteli https://www.drevona.sk/postele/manzel...
Odpovedať
Anonymný autor
Autor diskusie

Odpoveď na príspevok od wivik:

Tak najidealnejsie by bolo posunut dvere. Alebo d…
@wivik a posteľ pod okno mi príde asi najhoršie riešenie kedze okno začína tak 60cm od podlahy neviem ani ako by som ho otvárala..no ďakujem sa postrehy všetkým, ale takmer všetko v tejto izbe je buď nepraktické alebo neestetické 😩
Odpovedať
Profilova fotka
.
Odpovedať
Pokial by to nejak vyslo,tak za mna jednoznacne varianta hore v pravo.Posobi to usporiadane a prakticke.
Odpovedať
Anonymný autor
Autor diskusie

Odpoveď na príspevok od lenkito10:

.
@lenkito10 ďakujem krásne za vás čas a ochotu to takto nakresliť..
Odpovedať
1
Na pridanie príspevku sa musíte prihlásiť.
Presunutím fotiek môžete zmeniť ich poradie

Nenašli ste čo ste hľadali?