Projekt RD

Zobraz úvodný príspevok
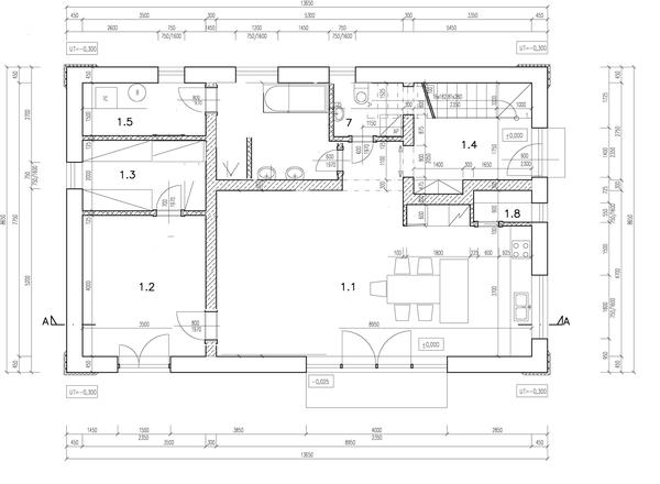
Ahojte, chcel by som Vás požiadať o konštruktívnu kritiku projektu. S priateľkou sme s projektom spokojní, ale vždy sa nájdu dobré rady a odporúčania najmä z praktického hľadiska. Projekt bude trošku zmenené, t.j. do technickej miestnosti sa pôjde cez kúpeľnu a bude tam aj práčka. WC sa zmenší, t.j. nebude výsek v kúpelni. Ďakujeme.
Odpovedať
zrejme finálna verzia, privátna kúplna nie je pre nás tak dôležitá ako veľký šatník... Vieme že to nie je ideálne, ale pre nás to ideálne asi bude :).. jednoducho sto ludí a sto chutí, preto sú domy rozdielne...
Odpovedať
Pre mna rodicovska kupelna ma mat vstup zo spalne.
Odpovedať
@atlaska sak som povedal, mozu ostat 3 dvere tu ale treba zvacsit spalnu a z obyvacky vstup do spalne nizsie, smerom k oknu. @xr22 ne, som paranoidny a nemam rad narusanie sukromia tymto sposobom, uz som to pisal raz inde.
Odpovedať
@xr22 satnik je blbost. Pretoze najviac veci aj objemovo co ma clovek su vrchne oblecenia, kabaty, kozuchy, bundy, blejzre, topanky, ciapky rukavice atd. a to nehovorim o zeninych topankach...a preto ja napriklad mam satnik uplacirovany hned vedla vstupnej haly... sak sa uvedom clovece, teraz si mlady, ja uz mam svoj vek, nevies este ze budes aj v noci na starobu kazdu chvilu behat do kupelne? Kde tam po dome v noci bludit do kupelne ked ju mozes mat poruke?
Odpovedať
ano uz chapem. aby neboli tie dvere narvate na jednom rohu. Za mna tiez nechapem tie mini vstupy, a je mi zahadou,kde maju ludia kabaty, bundy, topanky, ciapky........Skrina o 2bm je tak pre jedneho clena domacnosti, a vacsina to ma ako jedinu skrinu vo vstupe. @snowy66
Odpovedať
@atlaska ved to :-D tej chyby sa treba vyvarovat, ale ludia si nedaju povedat. A to nehovorime este o sportovych vystrojach... :-D
Odpovedať
@snowy66 šatník máme aj na chodbe, je pod schodiskom, takže úložného priestoru nie je málo ani na chodbe, tá má vyše troch metrov, takže na chodbe vznikne priestor pre cca 2 metrovú skriňu na topánky a bundy, to podľa mňa stačí, lebo je tam ešte komoda na ľavej strane tam budú topánky. Privátna kúpeľna by musela mať aj toaletu, a to podľa mňa vyrušuje toho druhého čo spí, ak ide niekto na toaletu a spláchne a navyše už by boli v dome v podstate 3 kúpelne.. To je už podľa mňa luxus, ktorý sa do konceptu nášho domu nedá realizovať, jednak veľkosť domu by sa musela priamo úmerne zväčšiť aby mohla byť v dome privátna kúpelňa, preto je to riešené takto...V spálni nebude okrem postele nič, takže tiež je jej veľkosť optimálna - aspoň podľa nás teda... Nechceli sme veľký dom, aj tento je už dosť veľký :)
Odpovedať
pod schodisko das vysavac, kufre a ine potreby na cistenie a udrzbu domu, vianocne ozdoby, svetla na vian. exter.vyzdobu a kopu ineho. Deti maju oteplovacky, sanky, korcule....... nocne splachovanie rusi rovnako ako behanie po dome. neviem ake 3 kupelne, ved exsitujucu dolnu len prepojis so spalnou,nemusis vytvarat dalsiu, navstevy ju nepotrebuju,kedze tam mas samostatne WC pre ne. Do spalne das min.komodu,lebo ten satnik nieje extra velky. problem ludi,co si navrhuju domy je to,ze v 90% situacii porovnavaju s bytom-v byte nam to staci, bude aj v dome. byt je byt, je viacmenej dany, dom je pridana hodnota v priestore a v buducom pohodli.
Odpovedať
@atlaska no na vysavac, kufre a podobne bude slúžiť technická miestnosť, je dosť veľká - teda podľa mňa. Dom bude ešte o 50 cm širší, takže technická bude 2m x 3,5m, čo je až - až... Privátnu kúpleľnu považujem ja osobne za luxus, ktorý nie je potrebný... to či prejdeš 3 m navyše aby si sa v noci vy... tak to nemusíš riešiť súkromnou kúpelnou... V našej kúpelni nechceme mať WC, takže aj tak by sa to nevyriešilo, to už by boli 3x wc v dome, čo je podľa mňa zbytočné, ale samozrejme si vážim tvoj názor, a ďakujem za pripomienky, niektoré som si zobral k srdcu a preto dom možno ešte zväčšíme... čo do šírky teda, tým sa zväčší chodba, wc, kúpelňa, technická a aj šatník a hore samozrejme tiež.. bude to možno až o 1 m kvôli úložnému priestoru, ktorého nikdy nie je v dome dosť :)
Odpovedať
Mas tam kotol a nejaky zasobnik ako vidim, nato treba tak 70-80cm podla velkosti toho kotla + za nim idu vacsinou trubky, regal aspon 60cm hlbka, ostane ti 70cm manipulacny priestor,ktory ti kazdy technik pri revizii kazdorocne ofrfle,potrebuje okolo miesto na otvorenie kotla, cistenie...... das tam kufre, vysavac, vysavac na popol, nejake to drevo do krbu, v zime matrace z terasy, krabicu hnojiv a postrekov,hadice, postrekovace a mas "narvano" Este by sa tam sikla internetova skrinka, mozno zmakcovac vody neskor........ ak to tam je kotol a pracka tak potom uz priestor na kufre a vsetko ostatne nevidim vobec.
Odpovedať
@atlaska bude tam rekuperácia, tepelné čerpadlo a zmäkčovač vody to je pravda, že sa tam toho moc nezmestí, ale ešte máme priestor, ktorý môžeme využiť. :) Krb nebude, a hnojivo a ostatné veci budú v garáži, resp. v dielni, ktorá bude pri dome. :)
Odpovedať
Ten projekt si si vymyslel sám alebo Ti ho niekto urobil?
Odpovedať
Profilova fotka
@xr22 aj šaty a topánky si šijete sám?
Odpovedať
@hizanka projekt nám robil projektant, samozrejme podľa našej predstavy...
Odpovedať
@jan45 Nie...
Odpovedať
@jan45 My sme si za sociku šili sami, napríklad podľa Burdy. Dodnes máme šijací stroj. Pri klesajúcej kvalite topánok zvažujem aj ich výrobu. Spýtam sa naopak. Bezmezne veríš projektantovi alebo robotníkovi, ktorí nakreslí alebo povie čo chce, lebo mu ide len o prachy a v tom dome bývať nebude?
Odpovedať
Článok sa načítava...
@polystyren no ja neverím ani jednému, chceli sme niektoré veci, ktoré projektant nechcel, ale presadili sme si ich...
Odpovedať
@xr22 Je to tvoj dom, ty máš peniaze, ty si šéf. Projektant je poradný orgán, prichádza s nápadmi a vysvetľuje ich. Ty používaš zdravý rozum a rozhoduješ. Toto fórum je o poradenstve zadarmo. ... Rozmýšľaš dobre, tvoj projekt sa mi páči a držím ti palce.
Odpovedať
@polystyren Ďakujem veľmi pekne :) aspoň jedna pozitívna vec.. Nehovorím, že môj projekt je ideálny pre všetkých, ale pre mňa a priateľku je ideálny a považujem ho za šitý na mieru - podľa našich predstáv, chcel som na fóre len nejaké rady, zlepšováky, a podobne, a nie predstavy a želania iných - ako by to chceli oni... ale tak čo už ... :)
Odpovedať
@atlaska mas vo vsetkom pravdu. Ma to krkolomne. Ale ok bude tam byvat on. Okrem toho, nenapisal, ci uz ma decka, alebo planuje...lebo...pisem cim som si presiel sam a hlavne zena...od narodenia dietata do takych cca 5-6 rokov treba mat ho nablizku, vo vedlajsej izbe, aby clovek mal aj v noci dozor, prehlad...treba aj behat do detskej vzdy pre cosi...ked je dieta vacsie....zase uz je lepsie ked maju rodicia sukromie...tento projekt neumoznuje to prve.
Odpovedať
@xr22 Je dobre keď sa rozhodujete sami, pretože vy najlepšie viete čo chcete a máte najväčší záujem na tom aby to bolo dobre. Nechať si poradiť znamená že vám povedia nie len ČO treba spraviť ale aj PREČO. Aby ste poznali princíp. Potom sa môžete rozhodnúť alebo sa niečo doplňujúce spýtať, alebo vysvetliť že to nie je pravda. Volá sa to komunikácia. Povedal vám projektant prečo nechce nejaké veci? Možno sa to technicky nedá realizovať. Nečítal som celú diskusiu, iba som si pozrel projekt. Zopár detailov by som tam zmenil, ale zas je to len môj názor. Napríklad rovnejšie steny, menej záhybov. Viete koľko roboty je s murovaním kľukatých stien a ako to čudne vyzerá? Alebo stena smerujúca do okna. :-) Alebo dvere pod schody rovno zo zádveria miesto z WC.
Odpovedať
Určite sa to dá urobiť lepšie ako Vám to projektant navrhol, ver mi...a pritom dodrží aj Vaše požiadavky...súhlasím so @snowy66, @atlaska...je to krkolomné. Dá sa to urobiť jednoduchšie, elegantnejšie, praktickejšie. Ale ak si Ty spokojný, nie je čo riešiť...
Odpovedať
@polystyren No ten projekt som upravoval v skicári,,, nie je to úplne presné - až teraz som si všimol. WC bude podľa možností bez výklenku do kúpeľne - uvidíme ako to bude so schodmi, aby to vyšlo. Čo sa týka dverí pod schodmi tak tie nebudú vo WC, tam bude stena. - pod schodmi budú skrine - také schované skrine - aby sa využil úložný priestor. V podstate na chodbe budú rolldory po celej strane a budú zakrývať schodisko, resp. budú tvoriť aj akési dvere na schody, samozrejeme môžu byť stále otvorené, alebo zatvorené. Niektoré kľukaté steny - asi myslíš tú chodbu že? - to som nevedel už vôbec vymyslieť aby to bolo dobré, asi by sme sa museli rozlúčil s výklenkom v chodbe a ten sa nám tam páči - bola by síce väčšia komora, ale ďakujem, máme veľmi podobné zmýšľanie tuším ...
Odpovedať
@xr22 Kľukaté som myslel WC. Ak na chodbe má kľukatá stena význam, tak ok, až také ťažké postaviť to zas nie je, len aby sa nerobili zbytočne zložité steny.
Odpovedať
@polystyren wc bude podľa možností čo najjednoduchšie - bude to záležať od toho ako ďaleko budeme môcť posunúť stenu z kúpelne ku schodom. No a čo sa týka zložitých stien - snažili sme sa o max. jednoduchosť stavby (až na balkón teda) klasický štvorec bez výklenkov, izby bez výklenkov, jednoduché línie rovné... Preto je aj v kuchyni ten výklenok - budú tam vstavané skrine - resp. chladnička, rúra, tak aby nevytŕčali :)...
Odpovedať
@hizanka a ako sa to dá urobiť lepšie, kľudne napíš budem rád :)... každá dobrá rada je na nezaplatenie :)
Odpovedať
@xr22 Ok, ja by som v tom dome býval :-) Ak chceš viac kresliť, môžeš použiť stavebný CAD. Zadarmo je http://www.sweethome3d.com/ alebo si stiahni crack Arcon-u (ak ho máš legálne kúpený ale poškrabalo sa ti CD-čko :-). Ideálny by bol AutoCAD alebo niečo podobné.
Odpovedať
@snowy66 snowy na to sme mysleli samozrejme, keď budú deti väčšia presťahujeme spálňu na poschodie do tej menšej izby a detská bude tá väčšia... a potom keď odrastú budú mať súkromie aj oni aj my.
Odpovedať
@polystyren po pravde sa mi kresliť už nechce... riešime to s priateľkou už asi 4 mesiace, meníme, upravujeme, koncept však zostal rovnaký, len robíme drobné zmeny :), projekt je v podstate už hotový, tieto zmeny si robíme už len my. Projektant už meniť nebude nič, lebo projekt je podaný na stavebku :) ale tieto drobné zmeny si samozrejme môžeme dovoliť...
Odpovedať
V tomto štádiu to už nemá význam, netušila som , že už riešite stavebné....
Odpovedať
Na pridanie príspevku sa musíte prihlásiť.
Presunutím fotiek môžete zmeniť ich poradie

Nenašli ste čo ste hľadali?