Projekt a rozlozenie izby nábytok.

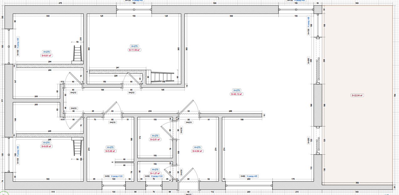
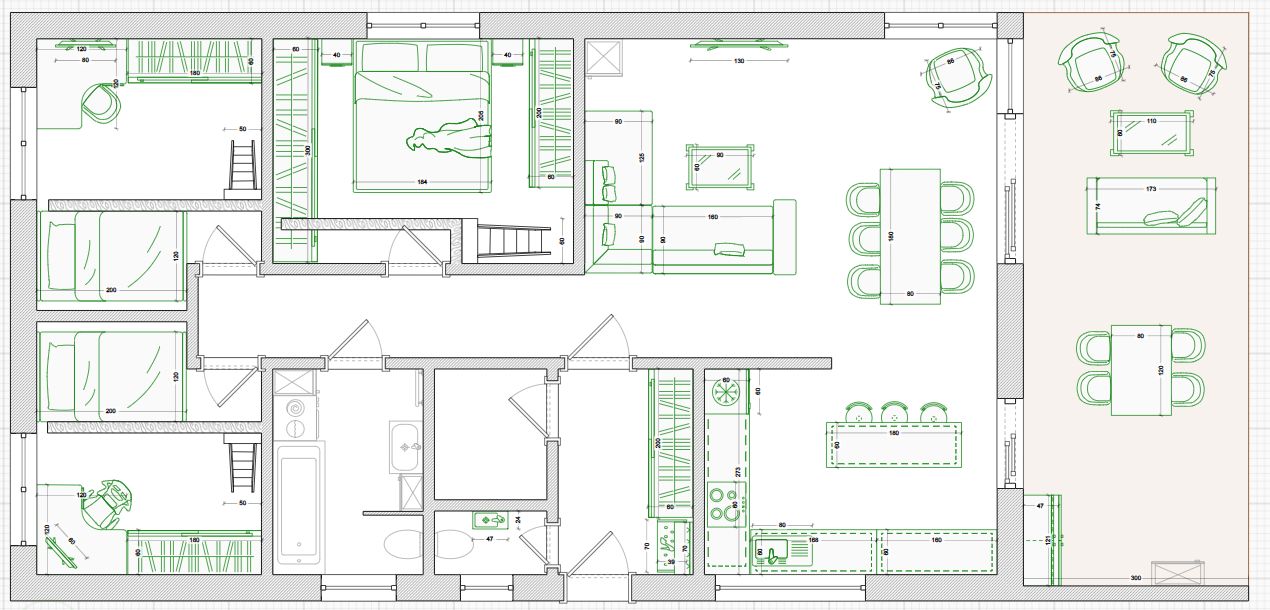
Ahoj, čo hovoríte na takýto projekt ktorý sme si navrhli sami a trochu bojujeme s tvrdohlavým architektom, preto sa chcem aj ďalší pohľad na vec. Pravdepodobne sa bude jednať o drevodom. Pridávam ilustračne FOTO pre predstavu okna v linke, kúpeľni a tiež zvýšenia v izbách plus terasa je dosť podobná. Pôdorys som robil jednoducho zadarmo online v remplanner.com Úžitková plocha má 86m2. Návrh dispozície domu dôležité vysvetlenie na správne pochopenie!!! Predsieň strop 2,6m -Pri vchode do domu sa nachádza botník s miestom na sedenie. Nad ním sú voľné vešiaky a hneď vedľa uzatvorená skriňa na vetrovky. Spodná časť tejto skrine slúži na uloženie topánok. -Prvé dvere vedú do samostatného WC s malým umývadlom, ktoré bude využívané aj pri pobyte na dvore, aby nebolo potrebné prechádzať cez celý dom do hlavnej kúpeľne. -Vedľa WC sa nachádza technická miestnosť, kde budú umiestnené jednotka tepelného čerpadla, rozvádzač na podlahové kúrenie, bojler, rekuperačná jednotka a elektrická rozvodná skriňa, ideálne hneď vpravo po vstupe. Obývačka jedáleň otvorený strop -Pri vstupe do hlavného obytného priestoru je viditeľná obývačka s jedálňou kde je otvorený strop do sedlovej strechy. Jedáleň obsahuje veľký kuchynský stôl pre 6 osôb. Priestor je presvetlený francúzskym oknom so šírkou 2 m s výstupom na terasu. Vedľa neho sa nachádza pevné okno až od podlahy a za rohom otváracie dvojkrídlové štandardné okno s rozmermi 150 × 135 cm. -V obývačke je TV na stene a v rohu krbové kachle. Kuchyňa strop 2,6m -je čiastočne oddelená priečkou. V strede kuchyne je ostrovček, ktorý je vzdialený 80 centimetrov od hlavnej linky. Táto vzdialenosť zabezpečí priemerný komfortný pohyb pred linkou. Ostrovček nemá zásuvky ani skrinky a slúži ako pracovná doska a pult, z druhej strany sú tri barové stoličky, ktoré sa dajú zasunúť pod pult. -V rohu je zabudovaná chladnička, vedľa nej je pracovná doska s príborníkom so sporákom a umývačkou riadu hore skrinka na riad až po strop do výšky 2,6m. -Na ďalšej stene je pevné okno 60 x 200 cm na presvetlenie linky parapeta lícuje s pracovnou doskou, vrchná skrinka na riad až po strop 2,6 m, ďalej drez a pracovná doska pod ňou ďalší úložný priestor. Po strop vysoká potravinová skriňa dĺžka 160 cm. -Na ďalšej stene je francúzske okno so šírkou 120cm, ktoré vedie na terasu. Chodba strop 2,6m -Chodba v strede domu má výšku stropu 2,6 m a šírku 110 cm. Kúpeľňa strop 2,6m -Dvere sa otvárajú do chodby kvôli bezpečnosti a umiestneniu práčky. Pri vstupe je radiátor na sušenie uterákov a vešiaky. Vedľa neho je zavesená skrinka s drezovým umývadlom zrkadlová skrinka zo svetlom a vedľa ďalšia zavesená skrinka na uteráky. -Deliaca priečka s dĺžkou 80 cm a výškou 110cm zabezpečuje súkromie na WC. Priestor so šírkou 80cm na zavesené WC je dostatočný! -Okno je umiestnené vo výške 170 centimetrov od podlahy, jeho rozmery sú 50 × 100 cm. Vaňa má dĺžku 170 cm. Vedľa vane je práčka a sušička umiestnené na sebe. Úzka skrinka na pracie prostriedky siaha od podlahy až po strop. Detské izby otvorený strop -Detské izby majú otvorený strop do sedlovej strechy, čo vytvára vzdušný priestor. Nad dverami je drevené podlažie, pod ktorým je svetlá výška 215 centimetrov. Na podlaží bude matrac s rozmermi 120 × 200 cm. -Pod vyvýšením vznikne osobná relaxačná zóna s gaučom alebo kreslom. Okná sú dvojkrídlové s rozmermi 150 × 135 cm. V izbe je rohový stolík na učenie a prácu s počítačom a vstavaná skriňa. Spálňa otvorený strop -Nad dverami je drevené podlažie, pod ktorým je svetlá výška 2,6 metra. Schody vedú na podlažie nad chodbou a čiastočne nad kúpeľňou a technickou miestnosťou v šírke celej spalne. Táto časť bude využitá na oddychovú zónu so stolíkom, pohodlným kreslom a knižnicou. Ďalej na vstup do časti nad kuchyňou otvorený úložný priestor. -V miestnosti sa nachádza manželská posteľ s matracmi 90 × 200 cm takže štandardná manželská posteľ 184x205cm. Dve vstavané skrine vysoké 240cm rozdelené na dlhšiu skriňu pod podlažím a kratšiu skriňu kvôli rebríku. -Zábradlie na podlaží aj na rebríku. dakujem za každú odpoveď.
Odpovedať
mezonetove riesenie v detskej vyzera fajn, ale keby mam lozit za dietatom v horuckach po rebriku... No ja neviem. Jedine, ze to dieta je uz pubertiak.
Odpovedať

Odpoveď na príspevok od jakub967:

Ahoj, čo hovoríte na takýto projekt ktorý sme si …
@jakub967 tie detske su pekne, ale ked sa na to pozeram z pohladu matky tak nie velmi prakticke. Chore deti si neviem predstavit v tej izbe. S horuckou, zvracanim, prehananim. Budem sa uz asi po tisici raz opakovat ale v obyvacke nie je ziadne sukromie a pokoj. Deti budu chodit hore dole s kamaratmi, teens si vecer privedie frajerku a ty tam budes rozvaleny na gauci. Chcela by som aby obyvacka bola oddelena chodbou. Ked uz mozno by som vymenila vecko so vstupnou chodbou. Este k tomu vevku ze tam budete chodit z vonku. Ked sme na zahrade tak tam chodime cez terasu a vstupne su zamknute. Velmi zle vidno rozmery ale 12m2 na spalnu je dost malo. A prechod 40cm okolo postele som uz mala spolu s obytymi kolenami. Takze neodporucam drebenu postel. Prezit sa v tom dome urce da ale otazka ci aj pohodlne. Este otazka, ta stena v kuchyni bude mat aky ucel? Budete tam chciet nejaku presklennu zatahovaciu stenu?
Odpovedať

Odpoveď na príspevok od wivik:

@jakub967 tie detske su pekne, ale ked sa na to p…
@wivik Tak pekne postupne v detskej izbe je zvýšenie kvôli priestoru presne aj ked prídu detom kamaráti tak preto je pod posteľou rozkladací gauč (na ktorom momentálne spíme dvaja dospelý) takže v prípade slintačky krívačky alebo po opici to zalomí na ňom kludne aj s hosťom... Ta výmena WC a tech. za Predsien teda zádverie je dobrý nápad a tým sa vstup do domu posunie o kúsok ďalej od gauču kde budem rozvaleny :D To druhe WC norma káže že musí byť samostatné ked je dom 4-izbový takže keď má byť tak nech je tak ako je aspoň v ňom môže byt okno teda svetlo a vetranie keď nás bude preháňať.. OK takže postel musí mať hladké a mäkké okraje to je dobrý postreh preto sme tu Ďakujem.. Stena medzi kuchyňou a obývačkou ktorá vám neni jasná je pevna priečka slúži na také oddelenie priestoru keď bude v kuchyni ako po výbuchu tak nebude to vidieť z gauča a keď príde návšteva tak hneď neuvidí čo mi pláva v hrnci...
Odpovedať
Profilova fotka
Neriešte architekta. Choďte za projektantom, že chcete takýto dom. On bude rád, že nemusí nič vymýšľať a vy budete spokojní s domom :) Win-Win
Odpovedať
Ten môj je všetko v jednej osobe a bude mi robiť aj inžiniering.
Odpovedať
Takže krb nemusí byť ak sa dá Tepelné čerpadlo takže ho dávam preč a taktiež som zameni technicku a zadverie aby sa nevchadzalo uplne priamo do obývačky. zmenila sa aj posteľ aby sa dalo lepšie dostať do skríň. Chcem sa spýtať má niekto skúsenosť ze keď spojim technicku miestnost a to malé teda 2 WC do jedného či budem mať problem na stavebnom zo schválením? Bolo by to priestrannejšie a tepelko neni az taká škaredé ako keby tam mám kotol na peletky takže by to mohlo vyzerat ako pekné veľké WC s umyvadlom plus technicke veci tepelko, bojler, vzduchotechnika.
Odpovedať
1
Na pridanie príspevku sa musíte prihlásiť.
Presunutím fotiek môžete zmeniť ich poradie

Nenašli ste čo ste hľadali?