Poraďte dispozíciu domu - 2 varianty

Zobraz úvodný príspevok
Profilova fotka
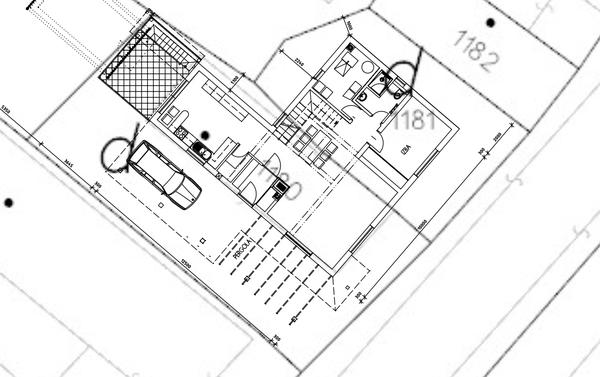
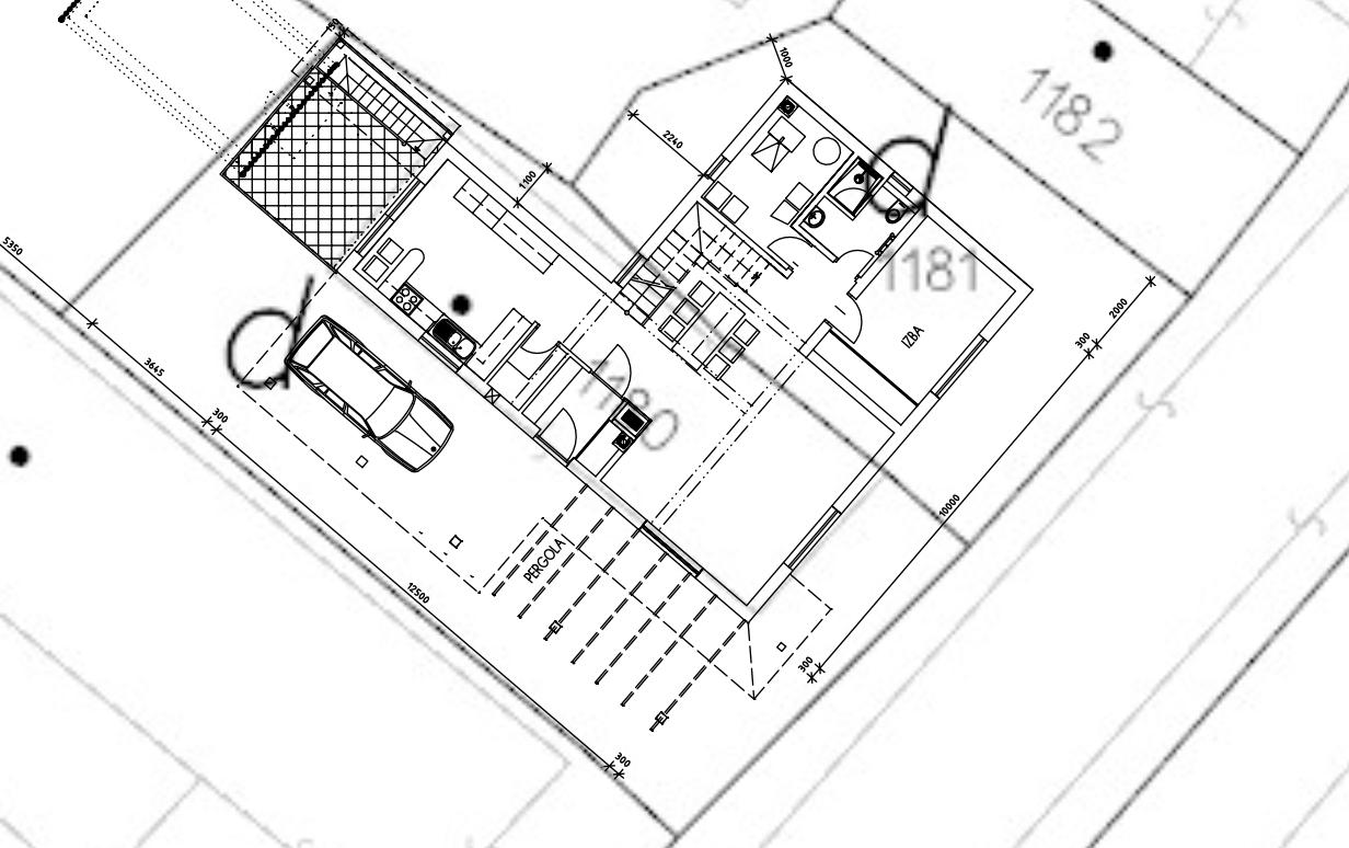
Náš neštandardný pozemok nám nedovolí stavať katalógový dom a musíme ísť do projektu na mieru. Avšak bojujem s sám so sebou a pozemkom, ako dobre spraviť vnútornú dispozíciu, vzhľadom na pozemok, orientáciu na svetové strany a blízkosť verejnej cesty. Tvar pozemku nám neumožňuje žiadnu kreativitu čo sa týka obvodových múrov. Musíme ale aspoň doriešiť vnútornú dispozíciu tak, aby bola bola rozumná. Zasielam 2 pracovné návrhy, ktoré majú nasledovné výhody a nevýhody. V podstate ide o umiestnenie kuchyne a obývačky. Neviem sa úplne rozhodnúť, ktorý kompromis bude lepší :( Obrázok 1: Výhody: - Obývačka prepojená s terasou - Obývačka je orientovaná do záhrady, takže je pri oddychu výhľad príjemný, nerušený - Obývačka nemá žiadne okno orientované do ulice Nevýhody: - Obývačka orientovaná na Severozápad (menej prirodzeného svetla) - Kuchyňa orientovaná na Juhovýchod (asi tam bude v lete teplo) - Kuchyňa nie je spojená s terasou. Jedlo a servis treba nosiť cez obývačku von a použitý riad dnu. Obrázok 2: Výhody: - Kuchyňa prepojená s terasou, veľmi pohodlný presun jedla a riadu na terasu - Kuchyňa orientovaná na Severozápad (menej tepla v lete) - Obývačka orientovaná na Juhovýchod (viac prirodzeného svetla) Nevýhody: - Obývačka má okná do ulice, čo znižuje súkromie - Obývačka nemá priamy prístup na terasu, znižuje to príjemný pocit pri oddychu - Výhľad z obývačky do ulice nie je nijak extra zaujímavý Môj osobný favorit je Obrázok 1. Napriek tomu, že budem musieť "pracne" nosiť veci na terasu, budem mať lepšie súkromie pri oddychovaní.... Aký je váš názor, prípadne ak máte akýkoľvek nápad, budem vďačný.
Odpovedať
1
2
@lordxor my mame ovela uzsi pozemok a tiez sme riesili nieco podobne nakoniec sme dali aj obyvacku aj kuchynu smerom na terasu aj ked to bolo tiez na severozápad tesne pri dome nebudeme mat asi nikdy priame slnko ale jednoducho smerom na ulicu sme nechceli mat ani kuchynu ani obyvacku a nepotrebujeme na terase tieniť ak budem chcet byt na slnku posunieme sa kusok od domu. tak som v rychlosti nakrelil ako to mozes urobit - je to iba rýchly nákres takze okna dvere a velkosti az tak neries to si uz mozes upravit sam - ale mas vyriesený problem ze nebudes chodit s riadom cez obyvacku a tak isto návsteva sediaca v obyvacke ma vyhlad do záhrady a nie na ulicu.
Odpovedať
Profilova fotka
Som rad, ze sa tu konecne nasli aj ludia, ktori chapu, ze proste existuju pozemky ktore nemaju idealny tvar 20x30 m, dokonala rovina, naokolo ziadny susedia, orientovany na juh, atd. .... :) ... A ja osobne radsej budem v centre s pozemkom, ktory sice nie je dokonaly a treba improvizovat, ako niekde na periferii bez obcianskej vybavenosti s idealnymi tvarmi pozemku. V prilohe zasielam jednoduchu vizualizaciu a umiestnenie na pozemku, ako to mame aktualne... mozno niekomu v podobonej situacii pomoze. @martosko Velmi zaujimavy navrh, toto ma veru nenapadlo. Kazdopadne rozhodli sme sa ist "tradicnejsiou formou", vid priloha @peto2 No velmi podobne to mame aj my, akurat mame trochu miestnosti poprehadzovane....
Odpovedať
@drahhu ved ja to chapem, nerobime z toho nejaku tragediu, ze ach teraz tu mame vela susedov a ked sme prisli tak sme tu byvali skoro sami :-) ved s niektorymi sme aj velmi dobry kamarati takze to nakoniec je aj dobre , ze sa tam postavilo viacero domov.. sem tam to je nevyhoda kvoli sukromiu na zahrade a podobne ale inak sme radi, ze mame okolo seba ludi a najdolezitejsie je ze fajn ludi
Odpovedať
Profilova fotka
@timea59 jasne rozumiem, ved ono by cloveku ani len nepomohlo robit z toho nejaku tragediu :-) Pokial su susedsky vztahy dobre, tak je super mat susedov. Horsie je to ak si susedia nesadnu a potom nedajboze si robia aj na prieky. :-)
Odpovedať
1
2
Na pridanie príspevku sa musíte prihlásiť.
Presunutím fotiek môžete zmeniť ich poradie

Nenašli ste čo ste hľadali?