Plánujeme takýto DOM

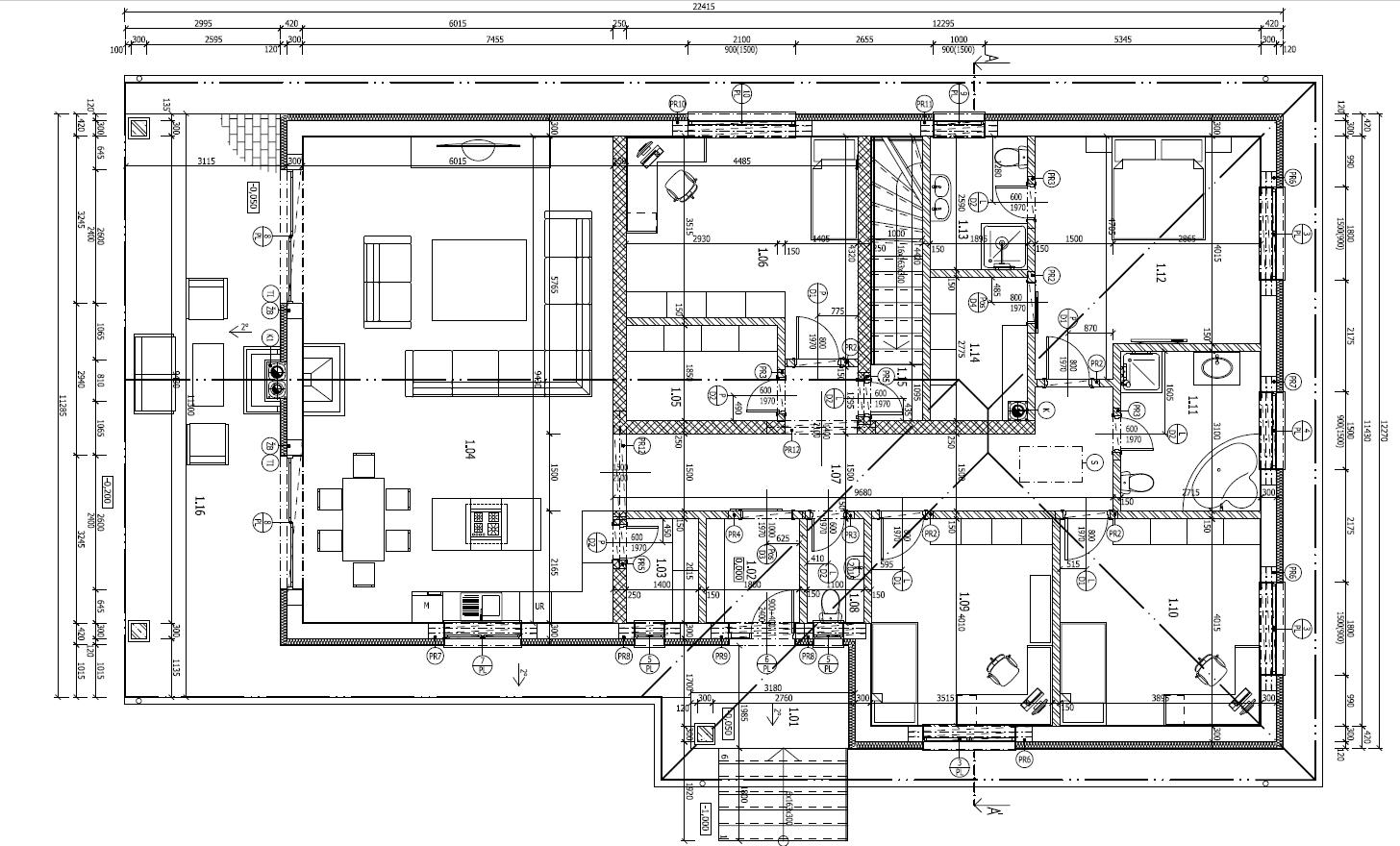
Dobrý deň prajem, sami sme si nakreslili projekt nášho domčeka. Bude to kresliť náš projektant. Pred tým by sme ešte ocenili cenné rady skúsenejších..či sa Vám to pozdáva, či tam vidite nejaké negatíva, veľké chyby alebo či to je v poriadku ten náš vysnívany budúci domček...vopred ďakujeme za názory ako tie pozitívne, tak samozrejme aj negatívne ktoré určite pomôžu :)
Odpovedať
Tu je orientacia pozemku
Odpovedať
@zusi369 Podľa mňa môže byť. Možno by som tie dvere, ktoré sú medzi chodbou a obývačkou posunul tak, aby oddeľovali iba nočnú časť. Keď vyjdeš z predsiene, tak naľavo by som dal nejaké širšie posuvné. A zdá sa mi, že v kuchyni máš malý pracovný priestor. Bude ti stačiť taký priestor? Zväčšil by som nejako veľkosť pracovnej dosky.
Odpovedať
@zusi369 A zrušil by som aj to barové sedenie. 90% ľudí, čo to má, to aj tak nevyužíva.
Odpovedať
@chrobak7 Asi vec názoru. Na byte som ich mal, do domu som ich už nedal a popravde, keby som to navrhoval znova asi tam priestor pre 2 barové stoličky spravím ... A u nás skorej naopak, väčšina, čo tie barové sedenia majú, ich využívajú viac ako klasický stôl :)
Odpovedať
Profilova fotka
Ako bolo už vyššie spomenuté, tak by som dverami oddelila spoločenskú od súkromnej časti. A barové sedenie nechaj, podľa mňa je fajn. U nás sme 5 členov domácnosti a stoličiek máme len 3 a každé ráno je bitka, kto tu bude sedieť. Je to super na raňajky a i všetky návštevy sa najprv u nás uložia na týchto stoličkách. Ja mám však hlbšiu dosku až 90cm, takže je priestor na kavickovanie/ranajkovanie i na pripravu jedál.
Odpovedať
Paci sa mi to celkom, len nedala by som dvere do kupelky zo satnika, ale rovno zo spalne. Pridem mi to tak praktickejsie, ale to je moj uhol pohladu ;-)
Odpovedať
Zdravím ja idem stavať niečo podobné.
Odpovedať
@zusi369 na to,že ste si to robili samy, super veľmi obstojné :) ja by som nemenila nič, možno jedine by som možno poriešila tie dvere, ale kukám, kukám a neviem ako by sa to dalo zredukovať a trošku mi príde,že na tie barové stoličky málo miesta tak to ešte, ale inak veľmi pekné :)
Odpovedať
@zusi369 jedine taká malá pripomienka, že technická miestnosť hneď pri detskej izbe, neviem či najideálnejšie riešenie, keďže z technickej ide hluk ale to je fakt minimum...inak fajn projekt ;-) :-) 8-)
Odpovedať
@zusi369 je to pekné aj celkom obstojné, ale dosť ma ruší technická miestnosť a decká izba, neviem, keď budú deti väčšie vedia si odomknúť, ale ak vymyslíte nejaký špeci zámok na tie dvere tak ok :)
Odpovedať
@zusi369 veľmi pekné, nám hneď všetko robili architekti, projektanti a všetci títo kreatívci :) samy by sme to tak nikdy neurobili, majú pravdu,že technická miestnosť nie je moc dobrá pri detskej izbe, tú menšiu izbu by som zväčšila o trošku a ukrátila tú väčšiu, príde mi o dosť menšia, ak máte len jedno dieťa zatiaľ to je ok, bolo by vo väčšej a prípadne malé bábätko v menšej, ale aj to bábätko vyrastie :)
Odpovedať
@matus157 pekny navrh, kolko m2 ma obyvacko-kuchyna?
Odpovedať
Na prvý pohľad celkom slušne dispozične riešený dom , väčšina samozvaných architektov produkuju nepraktické koncepty..... akurát tá techincká pri obývačke je na p ováženie, ale chápem že asi kvoli krbu, / nepredpokladám že sa bude kúriť nejakým čmudom takže nehrozí ťah splodín do interiéru, - / , no ono sa to po konzultácii s projektatnom nejako porieši....
Odpovedať
@citadelka teraz neviem či to je otázka na mňa či na pána Matúša :D
Odpovedať
@cippka Ako to myslite, aký zámok si budu otvárať myslite si, že nám budu utekať z domu? :)) :-N
Odpovedať
Veľmi pekne ďakujeme za postrehy a pripomienky ktoré sme zatiaľ dostali, všetky názory sme prečítali prehodnotili, čakáme na dalšie :)
Odpovedať
Článok sa načítava...
@citadelka rozmer je 6 * 9 m - cca 54 m2
Odpovedať
Profilova fotka
ani jedna izba nieje cista co sa akustiky tyka, bud je to elektronika alebo tecuca, voda,, toto je vazny detail ktory moze narusovat byvanie, treba premysliet
Odpovedať
@zusi369 podla mna tam neni co vymyslat lebo to vyzera fajn, aj to oddelenie, aj rozmiestnenie miestnosti, aj vsetko ;-)
Odpovedať
Dobrý deň, máme už aj pokus o dom č. 2 ...tento sa asi bude hodiť viac na náš trošku úzky pozemok obkolesený ďalšími rodinnými domami z oboch strán....poprosím zase o pomoc o rady, asi skôr reálnejší je tento pokus č. 2., zas sme si nakreslili sami. Kuchyňa je tam iba zakreslená, nieje "zariadená" :) ..neviem čo si mám osobne myslieť o tej veľkej chodbe kde asi nebude dať veľa nábytku ... a o tej menšej spálni...štvorcovom šatníku...či to nieje celéé zle :D =-) Ďakujeme za rady
Odpovedať
1
Na pridanie príspevku sa musíte prihlásiť.
Presunutím fotiek môžete zmeniť ich poradie

Nenašli ste čo ste hľadali?