Puzdrové dvere ?

Profilova fotka
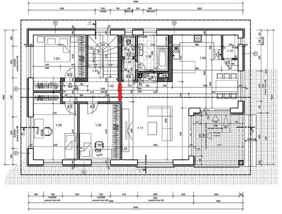
Ahojte, ako by ste riešili uzavretie vyznačenej časti vzhľadom na šírku 1600 ? Hrubú stavbu mám hotovú, vnútorne priečky ešte nie.
Odpovedať
Chces tam dvere alebo celkom uzavrieť?
Odpovedať
Možno by som dal zasuvacky
Odpovedať
Profilova fotka
@fernando dvere. Najlepšie by boli nejaké vysuvhovacie.
Odpovedať
Profilova fotka
Tak bud púzdra do oboch strán, alebo keď stačí prechod 78 cm tak jednu stranu pevnú a druhú zasúvaciu.
Odpovedať
Profilova fotka
Super by boli jednokrídlové zasuvačky do tej strany ako izba 1.05. No neviem či to je technicky možné vzhľadom na tú šírku 1600 vyriešiť to z jedným krídlom. Do opačnej strany sa už do steny (300) puzdro zabudovať nedá, možno nejako vyšuchovať nad schodisko. Tu však ostáva otázka estetického hľadiska.
Odpovedať
Profilova fotka
1600 v jednom kuse? vyrobiť to možné je, len otázka či to bude fungovať ako má. 1100 som už vyrábal, viac ešte nie
Odpovedať
@cowboy daj tam 1200mm puzdro, to je este cenovo prijatelne a otvor siroky 1200mm je dostacujuci hadam aj na piano :) pozri napr. puzdra unitrex, tusim su najlacnejsie, potom cenovo vyssie eclisse pripadne jap...
Odpovedať
@cowboy Posúvacie dvere sa dajú vyrobiť široké aj 1600 mm, ale na také nie je púzdro. Najširišie štandardné púzdro je 1200 mm. NA šírku 1600 by si potreboval dvokrídlové púzdro, ale pišeš, že na druhú stenu to nemôžeš dať. Tak ti zostáva iba to jednokrídlové púzdro 1200 mm. Priechod budeš musieť trochu zmenšiť - tú nosnú stenu predĺžiť a do nej osadiť to púzdro. Takto vyzerá prechod 1200 m: https://www.modrastrecha.sk/forum/okn...
Odpovedať
Profilova fotka
už som trochu v obraze 🙂 V podstate má, 4 možnosti: 1, zmenšiť prechod na 1100-1200 a vyšuchovať v jednom smere do Izby. 2, ponechať pôvodnú šírku, našiel som puzdra aj na širšie prechody vysúvacie do jednej strany rozdelené na 2 časti https://www.unitrex.eu/c/e-shop/stave... 3, vyšuchovať dvere smerom nad schodisko, ktoré by boli priznané. Vlastne by to bolo zavesené na nejakej koľajničke. Tu by to chcelo nejako pekne vymyslieť aby to vyzeralo. 4, nechať to bez vyšuchovačiek 🙂
Odpovedať
Profilova fotka
Čaute, ako by ste riešili priečku medzi obyvačkou a detskou izbou (1.11 a 1.05) vzhľadom k zabudovaniu puzdra. Nechať "odskok" v izbe iba v tom mieste kde bude puzdro a ďalej pokračovať 140 priečkou ? Alebo celú priečku 140 spraviť v rovnakej hrúbke ako bude časť s púzdrom, teda 250?
Odpovedať
1
Na pridanie príspevku sa musíte prihlásiť.
Presunutím fotiek môžete zmeniť ich poradie

Nenašli ste čo ste hľadali?