Zmena typu kúrenia z plynu na tepelné čerpadlo

Zobraz úvodný príspevok
Ahojte, máme naprojektované plynové kúrenie pre RD bungalov 140m2. Plynovú prípojku máme nacenenú na 1500€. V žiadosti o elektrinu som uvádzal, že bude kúrenie plynom. Mám hotový projekt na elektrinu. Istič schválený 3x25A. Bolo by možné zmeniť typ kúrenia na TČ vzduch - voda? Nebude problém s elektrárňami a s tým, že máme istič 3x25A? Projekt RD je v štádiu dokončovania, mám to dať projektantovi zmeniť ešte teraz alebo to nechať už tak a dodatočne to dať ako zmenu pred kolaudáciou? Ďakujem pekne
Odpovedať
Príspevok bol zmazaný adminom, lebo nespĺňal Pravidlá prispievania do fóra.
Este taka drobnost v otazke TC vs plynovy kotol.Plynovy kotol v pripade vypadku plynu alebo elektriky nekuri.TC bez plynu v pohode a elektriku si viem vyrobit.
Odpovedať
@marcel714 Ak vypadne elektrina tak si dokuril aj s TC nie? Navyse s plynovym kotlom mas moznost pripojit lacny menic 12V/230V na auto a v pohode rozbehnut kotol. Sam som to zo zvedavosti odskusal a uplne bez problemov funguje. Ale TC ti to urcite neutiahne. Neplanovany vypadok plynu tu asi nikto z nas este nezazil. Pri elektrine to naopak byva dost casto. A ako si vies vyrobit dostatok elektriny pre TC? Nic ine ako benzinova elektrocentrala ma nenapada, navyse musi byt 3-fazova, co su uz celkom slusne palky.
Odpovedať
@danculd riesil by som to fotovoltaickymi panelmi s 5kw baterkou.nie je to lacne,ale si si sebestacny co sa tyka energii.a co sa tyka plynu tak neviem akonto do buducna bude ked ruskonstavia plynovod do ciny a maju dohodnutu zmluvu na niekolko miliard kubikov plynu.a nie tak davno problem s plynom uz bol.nastastie nas to velmi nepostihlo,ale ktovie ci sa to nezopakuje alebo dokonca uplne nevypne...kto nam da zaruku?
Odpovedať
Príspevok bol zmazaný adminom, lebo nespĺňal Pravidlá prispievania do fóra.
@marcel714 nerep kraviny uz v idim ako si v zime vyrabas elektriku na tc a uz vidim ako vyladava plyn. Ked je niekto chory nech kuri drevom a ma na dvore sklady dreva pre istotu. @peto125 ak chces setrig daj si lacnejsi kotol, ano mozno su nizsiebrady hovno ale stoji o 1000 menej
Odpovedať
@emilia25 drevo je obnoviteľný zdroj. Koľko CO2 počas rastu do seba uloží, toľko pri dokonalom spálení vypustí. Fosílne palivá sú uhlie, ropa a plyn. Uhoľné elektrárne a bane postupne zatvárajú, automobilky nútia prestať predávať autá na benzín a naftu, tak predpokladám, že takýto osud časom postihne aj plyn
Odpovedať
Zaújmalo by ma koľko ešte okrem kotla bude treba investovať do plynu, teda všetko čo je od prípojky ďalej, komín a všetko k tomu potrebné, viete niekto aspoň odhadom povedať, stačí rádovo 500, 1000, 2000? A pri tepelnom čerpadle, tiež všetko čo bude potrebné na kúrenie. Teda asi bude treba nejakú nádrž či boiler na vodu. Tu môžem počítať dokopy na funkčný systém (bez podlahovky, tú už mám nacenenú).
Odpovedať
Kurye si pre mna za mna aj zapalovacom.ved v krcme ich maju za 30 centov :-) a nech si kazdy spravi tak,aby nenadaval.ak sa budeme k prirode spravat dalej ako sa spravame,tak mozno v zime uz ani nebude treba kurit :-)
Odpovedať
Profilova fotka
@jakino aj uhlie a ropa uvolnia len to co sa pocas vzniku do nich ulozilo, takze vlastne su tiez obnovitelne , akurat treba pockat par milionov rokov :-D
Odpovedať
@peto125 to mas rovnaku polohu ako ja, len si z druhej strany :-) 800m od Vahu. Voda je v hlbke 5m a cista jak vino. Voda zmizne ked zmizne Vah :-) Toho by som sa v nasom pripade nebal. S v/v by si mal ucinnost uplne inde ako vzduchac a aj v porovnani s plynom naklady polovicne. Oproti cene co uvadzas ma cele riesenie vyslo o 2000 viac.
Odpovedať
@jakino Zemny plyn tak skoro neskonci. Ako som spominal, nemci nordstream2 potrebuju, lebo odstavuju atomky a idu ich nahradzovat hadaj cim. Solarom, vetrom a PLYNOM na vyvazovanie sustavy. Auta na CNG sa pomaly dostavaju do beznej ponuky a zacinaju byt v cenach nizsich ako diesle a su to najekologickejsie auta v sucasnosti (ano, aj oproti elektroautam).. Iste, plyn skonci. Ale tak za 25 ci 50 rokov.. Vtedy budu stat TC tolko co dnes KK.. Snad :-) Nedavno som cital clanok, ze sa energetici desia ako stupa popularita elektroaut a elektrickeho kurenia (hlavne odporova podlahovka) a ze distribucne sustavy na to nie su stavane a potrebovali by miliony na to..
Odpovedať
@cache " pri oravských zimách sa z TC stáva postupne len drahy elektrokotol. vzduch voda" - prepáč, ale toto je zaužívaný omyl, na Orave sa vykuruje omnoho dlhšie ako v pezinku a tu sa musí rátať nie COP ale SCOP, a tým pádom aj ekonomická návratnosť v porovnaný s inými zdrojmi tepla vychádza omnoho lepšie ako v južných okresoch Slovenska, Skôr v Pezinku sa TČ neoplatí lebo tam sa menej kúri, a ak sa nechladí cez TČ tak väčšinu roka stojí, Osobné skúsenosti (Liptov) a skúsenosti oravcov sú za mnou, stále hovorím o TČ vzduch -voda.
Odpovedať
@fural Teraz nechapem, co si vlastne chcel povedat. Ved SCOP je sezonny priemer z realnej prevadzky. COP je aktualna hodnota pre aktualnu prevadzku. Ze sa na severe kuri dlhsie a viac nez na juhu nemusis vysvetlovat myslim nikomu. Ale preco by sa malo TC na severe oplatit viac nez na juhu fakt nechapem, nakolko cim nizsia vonkajsia teplota, tym nizsia ucinnost. Ake moze mat TC vzduch-voda asi aktualne COP pri vonkajsej teplote -35 v Oravskej Lesnej? Tym chcem povedat, ze take SCOP v Pezinku moze byt aj 5, zatial co SCOP v Oravskej Lesnej bude trebars 2.5.
Odpovedať
@cache v chladnejších oblastiach sa logicky vykuruje viac, viac sa spáli dreva, uhlia, či elektriky. To znamená že úspora použitím efektívnejšieho zariadenia, v našom prípade TČ bude v absolútnych číslach vyššia. Zoberme porovnanie TČ s elektrickým priamovýhrevným pre jednoduchosť. Ak sa zníži spotreba elektriny o 66% (COP 3) s použitím TČ či na Orave alebo v BA, tak v absolútnych číslach, keďže na Orave sa kúri skoro dvakrát dlhšie, bude úspora cca dvakrát väčšia, a tým pádom návratnosť investície v porovnaný s elektrickým vykurovaním kratšia. CSOP 5 pri vzduch voda? jedinne že sa v lete vykuruje bazén. Čínske kópie TČ v pohode dosiahnu SCOP 2,8 aj na Orave, kvalitné TČ má bez problémov cez 3,3 a viac.
Odpovedať
@fural Vies to dolozit realnymi udajmi? Vzduch-voda funguju zmysluplne tak do -15, ze niekde uvadzaju -25 povazujem len za marketing. A na Orave byva dlhodobo pod -15. Skratka plati uplne jednoduchy vzorec. Kedze dnes stoji elektrina 3x tolko co plyn. tak pokial mas SCOP menej nez 3, bude spotreba (vysledna suma eur) TC vyssia, nez plyn. A cim viac kuris, tym vacsia strata oproti plynu bude a nie ze este viac vyhodne. Nejde o to kolko kW energie minies, ale kolko ta tie minute kW stoja. Ergo, uz len tebou uvadzane cinske TC so SCOP 2.8 je menej ekonomicke nez plyn. Ale aj tak si myslim, ze realne bude to SCOP na cinskom TC este nizsie. Samozrejme ak sa bavime TC vs priamovyhrevne elektricke kurenie, tak aj SCOP 2 ma zmysel. Na druhu stranu, ak sa bavime o nejakom takmer pasivnom dome, co ma tepelnu stratu 1kW, tak nema zmysel ani TC ani plyn..
Odpovedať
Článok sa načítava...
@cache s odstavcami 2,3,4,5 súhlasím, ja som porovnával elektrinu, nie všade je plynofikácia a niekto plyn nechce vôbec. TČ fungujú aj pri -25°C, a COP je väčšie ako 1 :-) problém je kvantita dodávaného tepla pri teplotách pod -15°C. preto sú niektoré riešenia kompresorov a TČ upravené konštrukčne a ten pokles výkonu pri nízkych teplotách nie je taký výrazný do -20°C. Pri moderných menších domoch už pod 4kW TS je nenávratná investícia do TČ, (zvlášť na juhu SK) ale nové normy tlačia stavebníkov do používania obnoviteľných zdrojov tepla.
Odpovedať
@fural Dovolim si pripomenut, ze nazov temy a aj cela debata je plyn vs TC, nie priamovyhrevna elektrina vs TC.. :) A o tom COP bliziacom sa ku 1 je prave ta poznamka "drahy elektrokotol" co som spominal na zaciatku..
Odpovedať
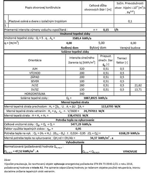
@majkoj @jan45 @jakino @mio23 @blacksr Ahojte projektant nám vypracoval tepelný posudok, avšak tepelné straty dopočíta kurenár. Viete mi prosím povedať ako čítať tento dokument? Budeme stavať bungalov 140m2 obytnej plochy. Zateplenie máme naprojektované zateplenie 15 cm eps podlaha, steny 20cm eps, strecha 40 cm vaty. Z posudku som vyčítal, že tepelný odpor obvodovej steny je R = 7,27. Strecha R=12,05 Podlaha R=5,11 Najlepšie sa dá pri kúrení ušetriť dobrým zateplením, preto keďže teraz sa to dá ešte upraviť by som sa chcel poradiť, či sú tieto hodnoty v poriadku, uvažujem či nedať nepridať ešte 5cm do podlahy. Stranu s výpočtom potreby tepla prikladám, sú tie hodnoty v poriadku? Ďakujem
Odpovedať
@peto125 kurenar straty pocitat nebude lebo to nevie. Ak chces pridat tak pridaj radsej do stropu aleno steny. Z coho mas steny ake hrube? Z tabulmy nevidim nic sle mozno som uz blbi, ziadaj hidnotu tepelnej straty, pripadne potrebu tepla na vykurovanie.
Odpovedať
Profilova fotka
@peto125 toto je nezaujimava cast, toto su v podstate len podklady na vypocet. Chce to vidiet vysledky. Tepelne straty musia byt v posudku, inak nema ako vypocitat potrebu tepla :). Na kurenara by som sa nespoliehal, pretoze za mnou chodia ludia s projektami, kde sa vypocet projektanta od vypoctu kurenara lisi aj o 100 percent.
Odpovedať
Profilova fotka
@majkoj súhlas , ale prečo? dôkladný výpočet zaberie aj pri počítači nielen ručne (aj tak sa to dá) pár dní. To je cena 24x15=360€, tým je výpočet nepredajný. Že ušetrí počas žovotnosti doslova tisíce €, v tomto štádiu nikto nerieši. Stačí, že dostane EC za 70 €.
Odpovedať
@majkoj @jan45 Prikladám zvyšné 3 strany posudku. Projektant mi povedal, že tepelné straty mi dodá s projektom na kúrenie. @sysel steny budú z tehly 30cm.
Odpovedať
Profilova fotka
@peto125 tepelna strata tam predsa je :) , merna je 138,47W/K, cize ak bude dnu 21C a von -15C, je to rozdiel 36Kx138,47W/K dava stratu 4984,92 W, cize cca 5kW. Vysledna merna potreba tepla 34,37kWh/m2/rok je v zasade OK, rocne na vykurovanie dom potrebuje cca 6,2MWh, cize cisto v elektrike 620€ rocne, pri TC vzduch voda tipujem tak 220€, pri zem voda okolo 170€ rocne.
Odpovedať
@majklname mna sa nikto nepytal nic ked som si dal zmenu na D5 , ani nahodu ,len som zavolal nech mi zmenia a zmenili
Odpovedať
Profilova fotka
@vader100 nuz, ja som pri SSE musel pre DD6 dolozit reviznu spravu.
Odpovedať
@majkoj diky, tie ročné náklady som čakal teda oveľa viac. Pri plyne to môže byť cca 250€ + TÚV, že? Teda z toho mi vychádza, keď ma vyjde TČ čo i len o 1000€ viac ako plyn, tak návratnosť by bola cez 30 rokov? (Keď berim do úvahy rozdiel ročne pri plyne a TČ 30€). Počítam niečo zle? :D Plus pri TČ určite potrebujem nejaký bojler na vodu, čo ma vyjde kľudne 1000e. kdežto pri plyne už mám nádržku cca 120l. Ďakujem
Odpovedať
@majkoj ja som nemusel nic,ani sa ma nikto nepytal nanic dokonca mi ani nevolali ze mi pridu vymenit , jednoducho vymenili :) , mozno videli podla spotreby ze to je ok :)
Odpovedať
Profilova fotka
@mcsmekac plynovod sa vybudoval ? :) a aka konšpiracia plyn raz dojde to je fakt , krajiny ako Holandsko , Finsko , Svedsko idu zakazat kurenie plynom a varenie na plyne , A to je trosku viac severne ako Orava :D
Odpovedať
Profilova fotka
@micjak lenže Orava je severnejšie ako Dánsko, pretože je vo vnútrozemí, to je nešťastie našich ľudí, že porovnávajú projekty z rozličných podmienok.
Odpovedať
Na pridanie príspevku sa musíte prihlásiť.
Presunutím fotiek môžete zmeniť ich poradie

Nenašli ste čo ste hľadali?