Zateplenie pochôdznej povaly - môžem dať rošt na vatu?

Ahojte, prosim Vás ako ste robili rošt na povale, medzi ktorý pôjde vata? Na to by som dal dosky, aby sa dalo po tom chodiť. Strop je železobetón. Ako sa vám najlepšie osvedčilo robiť rošť, z akých hrubých hranolov / dosiek? Na akú vzdialensoť ste ich dávali od seba? Robiť polia 1,5x 1,5m , či hustejšie / redšie? Ďakujem
Odpovedať
@peto125 tu sa pozri: http://www.modrastrecha.sk/blog/miros...
Odpovedať
Profilova fotka
@peto125 ... nechcem robit reklamu, ale ako inspiraciu Isover STEPCROSS .. bez vzniku ploch, kde sa drevo dotyka stropu....
Odpovedať
@peto125 Ja som nedával vatu, ale EPS. Fotky nájdeš v tejto téme: http://www.modrastrecha.sk/forum/zate...
Odpovedať
@peto125 > Ja som sa inspiroval StepCross -om. Takze mam 10 cm polistyren postaveny na hranu. Na tom prilepena doska a na to krizom dosky. Priecku z toho polistyrenu mam kazdych 60 cm.
Odpovedať
@pavel202 To nie je reklama. STEPCROSSom som urobil celu pochodznu povalu - cca 120m. Praca paradna, ucel to plni 100%. Isisel by som do toho znova.
Odpovedať
Diskusia pokračuje po 10 mesiacoch
Profilova fotka
@asdfb Nemas prosim ta foto tvojho riesenia, celkom ma zaujalo...
Odpovedať
Takto zadebnit izolaciu OSB doskami? neviem ci to je najlepsie riesenie, kedze OSB sa sprava ako parozabrana
Odpovedať
@milan_vt v tomto prípade to je v poriadku, pretože sa jedná o difúzne uzavretú konštrukciu
Odpovedať
Diskusia pokračuje po 8 mesiacoch
@lubos_ba Dobrý deň, chcem sa opýtať koľko vás vyšla ta fukana izolácia m2, respektíve M3, ďakujem
Odpovedať
@lubos_ba ešte jedna otázka, keď som prerábal dom tak som všetky plafony zateplil a zrovnal polystyrénom hrúbka 5-8 cm, ináč sa nedalo lebo mam nízke stropy, teraz chcem poukladat na betónovú deku pod strechu minerálnu vlnu. Je potrebné dávať ešte pod minerálnu vlnu na betónovú deku parozábranu? Ak je zo spodnej strany nalepeny polystyrén? Aku funkciu bude mať ta parozábrana? Ďakujem
Odpovedať
@lubos_ba v tvojom pripade nerozumiem vyznamu tej fukanej izolacie... do hentakeho priestoru polozit vatu je asi najjednoduchsia praca aku si viem predstavit...
Odpovedať
@igor256 áno to je pravda, ale asi je to lepšie utesnene ako keď iba poukladat vatu, no to je vec názoru, a hlavne je to dosť drahšie... A viete mi poradiť aj na moju otázku či je potrebná ta parozábrana? Lebo koľko ľudí toľko názorov, len neviem ci v mojom prípade by ta parozábrana mala zmysel keď už mám zo spodu ten polystyrén
Odpovedať
@michalmatej myslim si, ze netreba. to je len moj nazor. Cez EPS a beton by tam nemalo prejst vela vlhkosti. Nechas ju otvorenu alebo tam chces urobit pochodznu povalu? Ak sa ma ako vetrat tak by som sa na to vybodol a ak to chces uplne uzavriet, tak by som ju tam mozno dal. Pre istotu.. Vyjde to 150EUR, tak to sa da prezit. Vatou utesnis podobne dobre ako tou celuozou.
Odpovedať
@igor256 vetrať to ma ako strecha nie je zateplena aj su tam stresne okna , len sa bojím ze ak dám parozábranu, mohla by vlhnut betónová deka? Či?
Odpovedať
@michalmatej ja fakt neviem... vsak aj ten s tou celulozou ma parozabranu tak asi sa to tak robi. neviem z coho by mal ten beton vlhnut.
Odpovedať
Diskusia pokračuje po 1 roku
Profilova fotka
@milan_vt čo použiť miesto OSB ak chcem aby to bolo smerom hore difúzne otvorené? Ja napríklad chcem dávať na záklop eps , podlahovku nejaký poter alebo suchý spôsob to ešte neviem a izoláciu mám kamennú vlnu zo spodu stropu s parozabranou a nad ňou paropriepustna. Ďakujem
Odpovedať
Článok sa načítava...
Diskusia pokračuje po 2 rokoch
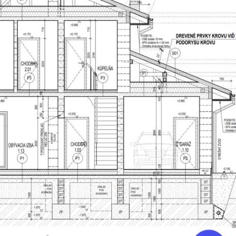
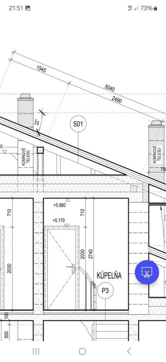
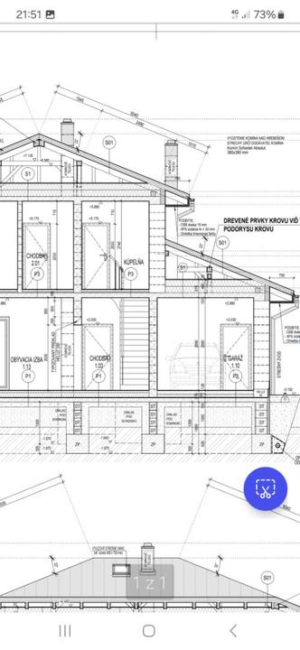
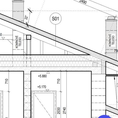
Zdravím potreboval by som poradiť. Potrebujem zatepliť povaly, povala nebude obývaná a podlaha povaly je železobetónový strop. Na podlahu má ísť parozábrana, potom 40 cm vaty a pochádza rošt. Problém je v tom že priestor za pomúrnicami je už zateplený styrodurom rôznej výšky, začal som ho dnes zarezávať do roviny s pomúrnicou. Pomúrnica má výšku 15 cm. Ako v aktuálnej situácii urobiť parozábranu a akú izoláciu dať do priestoru za pomúrnicu ( myslím tie šikovný) a na ňu? Tabuľovú vatu mám už nakúpenú 2 x 20 cm na celú plochu ale mám aj niekoľko balíkov styroduru hrúbky 5 cm. Pre názornú ukážku pridávam fotky aktuálnej povaly a aj projekt a následne výkres od projektanta kde bolo upravené vyhotovenie parozábrany, kde parozábrana už nie je pod pomúrnicami a ide ponad ňu a ja mám obavu, že aby pomúrnice vplyvom zadržanej vlhkosti od parozábrany nezačali hniť aj keď sú podložené lepenkou bez presahu. Vie mi niekto poradiť ako by to bolo najlepšie spraviť? Pri dávam foto aj projekt.
Odpovedať
Čiernobielo je pôvodný projekt ale takto sa to už nedá zrealizovať, nakoľko za pomúrnicami je styrodur ktorý už nechcem dávať preč a parozábrana sa už samozrejme nedá dať pod konštrukciu krovu. Posledný obrázok s červenou čiarou je varianta od projektanta a ani takto nechcem parozábranu dávať nakoľko styrodur za pomúrnicami už nechcem vyberať. Pod týmto styrodurom nie je parozábrana, je nalepený priamo na železobetónovej doske.
Odpovedať
1
Na pridanie príspevku sa musíte prihlásiť.
Presunutím fotiek môžete zmeniť ich poradie

Nenašli ste čo ste hľadali?