Spojenie pol izby a kuchyne

Ahojte, odstraňovali ste niekto nenosnu priečku medzi kuchyňou a typickou panelakovou pol izbou zo 60. rokov? Splnilo to očakávania? Narazili ste pritom na nejake ďalšie problémy s ktorými ste nepočítali?
Odpovedať

Odpoveď na príspevok od milandd:

Ahojte, odstraňovali ste niekto nenosnu priečku …
@milandd typicka panelakova pol izba zo 60 rokov moze byt rozny konstrukcny system. Prazsky, kosicky... Daj podorys, nech sa vyjadrime ku knkretnej veci
Odpovedať
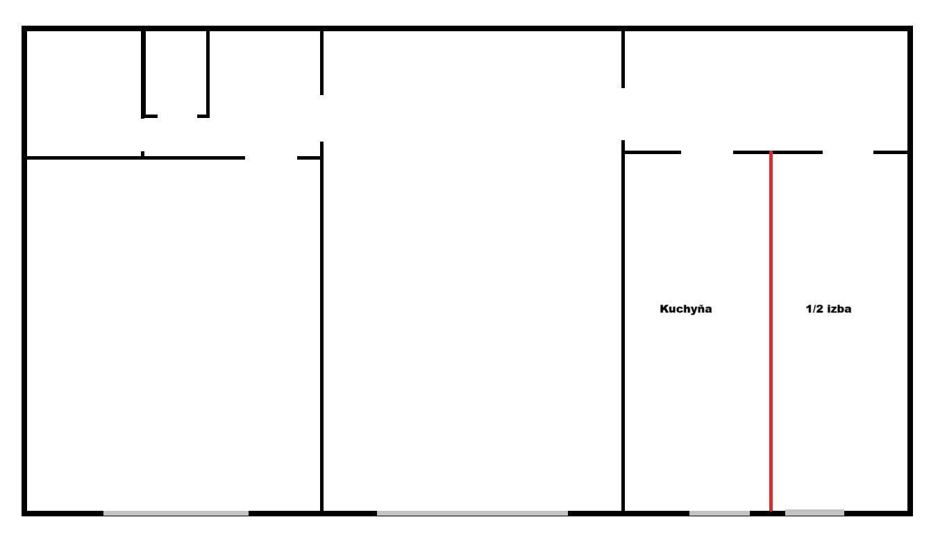
prikladam náčrt podorysu.(ide čisto o náčrt, sivé sú okná) Červenou označená je nenosná stena nad ktorou sa uvažuje že by bola odstránená, čím by vznikla plnohodnotná izba a kuchyna by sa presunula na 1 stenu v najvačšej miestnosti (obyvačke).
Odpovedať
1
Na pridanie príspevku sa musíte prihlásiť.
Presunutím fotiek môžete zmeniť ich poradie

Nenašli ste čo ste hľadali?