Je mozne

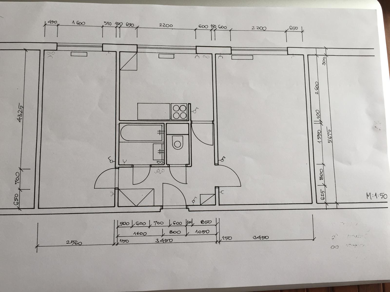
Potrebovali by sme trochu prerobit byt. Momentalne je v takomto stave ako mozete vidiet v podoryse. Prilis sa v takych veciach nevyzname, tak by som chcel pocut vas nazor. Chceli by sme rozsirit kupelnu o chodbu, ktora vedie do kuchyne. Je mozne posunut wc alebo musi zostat tam, kde su stupacky? Ci je mozne, aby boli stupacky v kupelni? Ta chodba sa nam zda uplne zbytocna. Tym padom by sme mali vacsiu kupelnu. Vstup do kuchyne by bol vyrieseny cez obyvacku. Vas nazor?
Odpovedať
Profilova fotka
@creator13 v pohode sa to dá...akurát nezabudnite vynechať otvor dostatočne veľký k vodomerom a ak je plyn tak k plynomeru.
Odpovedať
Dakujem....to som celkom rad....
Odpovedať
@creator13 všetko môžeš poposúvať, len stupačky nie (teda aj to sa dá, ale je to technicky náročné :-) ) a tiež k nim musí byť prístup.
Odpovedať
A hlavne nech tie stúpačky nie sú pred koncom životnosti... :-)
Odpovedať
da sa, odpad z wc pojde zboku do stupaciek. aj ja som nad touto alternativou rozmyslala, ale nakoniec sme spravili inak. teraz by som to uz spravila ale takto. a ak mate stupacky vymenene, kludne zamurovat, nechat len revizny otvor, najlepsie skryty a oblozeny obkladom. vidim, ze ale panel v obyvacke je 150, nosna stena, na ten otvor budete potrebovat SP.
Odpovedať
@manilla ako ste to vy vyriesili? Nemas nacrt? Radi sa nechame inspirovat. Stupacky su vymenene, takze s nimi by nemal byt ziadny problem. Tak to som celkom rad, ze to takto pojde dat vyriesit, ta chodba mi prijde uplne zbytocna a mam radsej vacsie kupelne.
Odpovedať
gratulujem k pochopeniu zmyslu informacie zvanej "nazov temy"!
Odpovedať
@gashtaan myslim, ze sa netreba navazat. Klikol som omylom na odoslanie prispevku, este pred dopisanim celeho nazvu temy. Zial nikde som nenasiel moznost upravit nazov temy. Mozno len zle hladam. Moja chyba.
Odpovedať
@creator13 aha, tak potom pardon :) to je fakt, ze sa to uz neda zmenit...
Odpovedať
@creator13 nacrt nemam, ja mam trosku iny podorys, mam 4i. ale jadro s kuchynou je rovnake, aj rozmermi.
Odpovedať
Profilova fotka
@creator13 my sme davali tiez wc do chodby a zvacsili si tym kupelnu.. Kukni album.. ;-)
Odpovedať
@len.petra pekne urobene...paci sa mi to....kto vam robil rokonstrukciu. Davali ste nejakej firme? Mozes odporucit?
Odpovedať
1
Na pridanie príspevku sa musíte prihlásiť.
Presunutím fotiek môžete zmeniť ich poradie

Nenašli ste čo ste hľadali?