Zmenili by ste niečo na tomto projekte ?

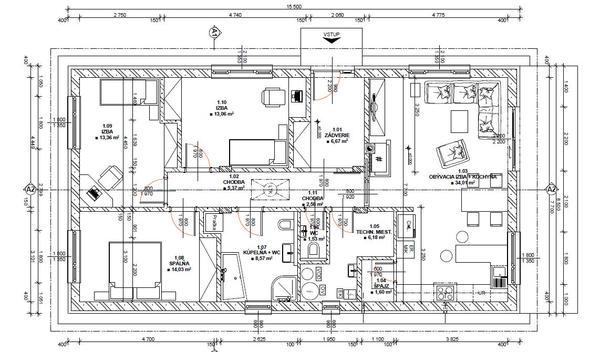
Dobrý večer všetkým, Poradili by ste mi prosím, čo by ste menili na tomto projekte alebo ktorý je lepší ? Pridávam dve verzie - jedna má WC na chodbe a druhá skoro v obyvačke. ďakujem
Odpovedať
@mirkob pracuj s druhou verziou, avsak: 1 izba a pod nou ta spalna nic nenamietam. Co sa tyka kupelne, pracku by som dal do technickej miestnosti a kupelnu urobil bez vyklenkov. Technicku miestnost by som o trochu zvacsil, priestory obyvackokuchyne by som ale: PREHODIL, cize obyvacku na miesto kuchyne a kuchynu na miesto obyvacky. WC a komora by tym padom isla s kuchynou oproti, ku zadveriu, a tym by sa aj pekne vyriesil vchod do wc zo zadveria, s tym ze bud urobim okno komore, alebo urobim okno wc podla toho co blizsie k vonkajsiemu muru. Zadverie by kludne znieslo zo sirky trochu ukrojit, tak aby bola kuchyna aj s komorou a wc tak ako je a ten trapny vyklenok na pisaci stol v izbe by som odstranil a tym smerom zvacsil priestor zadveria. Okna aj napriek tomu ze by sa kuchyna s obyvacim sedenim prehodila, mozu ostat jak su , tamtie dve okna na kratsej strane sa mozu vycentrovat nechapem preco prave tam kde je sedenie musi byt stena ved neni nic krajsie ako sediet a pozerat von. Kto ma plazmnovy tv tiez nie je nijake terno mat obrazovku oproti oknu.
Odpovedať
Profilova fotka
V zadveri by som dal tu skrinu po celej dlzke steny, vyjlenok v detskej zrusit. Spotrebice v kuchyni su lepsie umiestnene na verzii 1. Wc z obyvacky isto nie.
Odpovedať
Profilova fotka
@mirkob ja tu mam naplanovane nieco podobne, len s rovnejsimi liniami vnutri (bez vyklenkov), ak chces, pozri si: staci pridat do velkej kupelky vanu a zmesti sa tam aj susiak na pradlo, ahoj http://www.modrastrecha.sk/blog/ninac...
Odpovedať
@mirkob Spoj technickú, špajzovku a WC do jednej miestnosti. WC daj do zádveria. Vykašli sa na výklenky v stenách, radšej väčší dom.
Odpovedať
Profilova fotka
@radopp Špajzu s WC do 1 miestnosti.....?
Odpovedať
Profilova fotka
@leonardom a ty ne*eries v spajzi ? :-D
Odpovedať
Profilova fotka
spajzu oddelenie, iba TM a WC spolu :-D
Odpovedať
@leonardom WC do zádveria. Treba čítať do konca. :-)
Odpovedať
chválim kompaktnosť domu bez výklenkov, Ja by som bol za variantu č. 1. Jediná výhrada - výklenky v izbách - myslím tie priečky - niektoré sú naozaj zbytočné - napr. v kúpelni by som vyhodil práčku - dal ju do TM a nechal tam rovnú stenu - viacej miesta na úložný priestor v spálni. To isté chodba - radšej väčšia šatníková skriňa na chodbe - bez výklenku. Izby by boli pekné rovné bez výbežkov, zbytočných rohov. Inak pekný projekt, minimum chodby na bungalove - čo naozaj chválim.
Odpovedať
@mirkob ako už všetci povedali, poviem aj ja. Výklenky preč. Práčku do TM. Nápad od @snowy66 s vymenením kuchyne a obývačky je dobrý, ale záleží aj ako to máš otočené voči svetovým stranám. V obývačke by som volila sedačku VŽDY s výhľadom do záhrady, resp. na terasu. vchod na WC z obývačky určite nie.
Odpovedať
Profilova fotka
@vanessa06 sedačku zásadne s výhľadom na TV :-D
Odpovedať
moc pozorne som to nepozerala, jedine, co urcite NIE je pozerat sa z gauca na WC dvere....
Odpovedať
Velmi pekne Vam vsetkym dakujem za Vase pripomienky . Tento projekt bol povodne Bungalov 1375 od Eur.....Potreboval som ten podorys kvoli umiestneniu na pozemok a preto som musel prehodit WC + TM na opacnu stranu , aj obyv. a kuchyna boli povodne prehodene ako tu uz bolo pripomienkovane. Museli sme proste prehodit vsetko ohladne WC.TM a kupelni na jednu stranu a obytnu cast na druhu. Vychod je roh spalne a zapad roh obyv. +susedia z jednej a druhej strany. To WC v tej ob. zrusime a tie vyklenky v kupelni a v zadveri asi tiez. Teoreticky v tych ostatnych miestnostiach by mohli ostat, murar sice trochu zahresi ked bude robit priecky ala na druhej strane ked sa budu robit skrine tak by to mohlo byt vyhodou. Este raz vsetkym dakujem , ked tak citam ostatne prispevky tak vidim ze prispievajuci sa dost opakuju a ich prispevky su vacsinou odborneho charakteru ( alebo svojou skusenostou ) chcu pomoct. Este raz dakujem aj tomuto foru
Odpovedať
1
Na pridanie príspevku sa musíte prihlásiť.
Presunutím fotiek môžete zmeniť ich poradie

Nenašli ste čo ste hľadali?