Váš názor je dôležitý

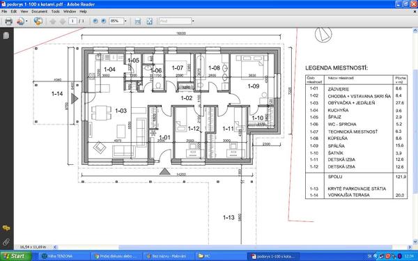
Ahojte, aj ja by som si rád vypočul vaše pripomienky, návrhy, vylepšenia k nášmu projektu. Viacej hláv, viacej rozumu. Je to už pár krát menený projekt konzultovaný s architektom, ktorý nám ho mierne pomenil a dal takto na papier. Pozemok sa nachádza v zadnej časti záhrady kde príjazd ústi v pravom dolnom rohu náčrtku,kde bude aj prístrešok. S priatelkou chceme aj krb, ktorý je medzi kuchyňou, špajzou a menšou kúpelkou. Neviem kam inde by som ho dal. Takže?
Odpovedať
Profilova fotka
pekny domcek. pre moj vkus, co nemusi byt zhodny s vasim, by som prehodil 1-06 a 1-07. a urcite predelit chodbu od kuchynoobyvacky.
Odpovedať
Profilova fotka
@arantir Je to taká overená klasika ale mám pár vecí čo by som zmenil neviem či to bol zámer ale čo keby nebol na každú skriňu zvlášť výklenok ale použili by sa normálne skrine nie vstavané, ďalšia vec ak je tou červenou naznačená hranica pozemku dovolia vám stavať tak blízko. A najhoršie na koniec tie kúpeľne alebo čo to je v dnešnej dobe novostavba bez samostatného WC nejak mi to nepasuje a tá malá kúpeľňa zo sprchou v ktorej je ešte okno moc mi to nepríde ako návrh architekta ak nieje dostatok miesta radšej by som spojil tie kúpeľne a pridal jedno samostatné WC ale takto je to hrozne divné.
Odpovedať
presne nad tým teraz premýšľam ,či neprehodiť to malé wc a technickú :-)
Odpovedať
Profilova fotka
@arantir Pekný, zlatý, vymyslený.. Ale ako píše aj @martin153 nado mnou, dal by som možnosť uzavretia obývačko-kuchyne. Tiež som tam mal pôvodne od architekta dieru a dal som dvere. Neľutujem. 90% času sú otvorené - ale občas kvalitne poslúžia. ;-)
Odpovedať
@arantir taky bych to prohodil :-)
Odpovedať
@martosko je to pozemok mojej babky,takže od nej súhlas bude a snád presvedčím aj stavebný úrad, v najbližšom bode to je 1m. ked nie,posunie sa.možno tam ani plot nebude,uvidíme. ja zase nechápem prečo samostatné wc. v starom rodičovskom dome sme mali 1 kúpelnu a 1 samostatné wc. a ked sme prisli z rodinneho vyletu, museli sme cakat nez sa vsetci po jednom umyju. takze urcite chcem mat dve miesta na umytie
Odpovedať
@leonardom a @martin153 dáva to zmysel, určite nad tým porozmýšľam. ďakujem
Odpovedať
ahoj, ten šatník by som urobila väčší - dom by som zarovnala do obdĺžnika. V prednej časti môžete mať oblečenie a v zadnej sezónne veci. Určite to miesto využijete. a ten krb v kuchyni nič moc - komora má byť najchladnejšia miestnosť + v kuchyni je z varenia tepla dosť. A čo ho dať do výklenku namiesto tej vstavanej skrine na chodbe, a medzi 1,01 a 1,12 urobiť spoločný dvojvýklenok. a pre izbu 1,11 urobiť výklenok do predĺženého šatníka A prehodiť obývačku, ale možno by vám zas tv vedľa krbu vadila? Ale možno keď sa to nakreslí, to bude vyzerať o ničom. :-N
Odpovedať
na mna to wc a kupelna tak zvlastne posobi. Pride mi to zbytocne aj aj a skoro hned vedla seba. Mozno by stacilo urobit z toho jednu vacsiu kupelnu a stacilo by :)
Odpovedať
Nepatrí to síce priamo sem, ale nechcem spamovať novou témou. Dom bude cca 40-45m od ulice a všetkých sietí. Chcel by som sa preto vyhnúť ťahaniu plynu. Samozrejme dom v prvom rade dobre zatepliť,ale potom čím kúriť? Krb je skôr dekoratívna vložka,aj keď v zime asi bude fungovať častejšie. Rozmýšľal som dať vodnú podlahovku (na TUV solar?) a ak by predsa len boli účty za energie vysoké, dať TČ? Tiež neviem či dať rekuperáciu. Známy čo ju má dlhšie hovoril, že by si ju už nedával....Dávate ju všetci do novostavieb?
Odpovedať
@brunodumo možno to je trochu zvláštne,ale mne to príde praktické. vysvetlené vyššie
Odpovedať
@arantir Tak já kdybych měl vyřešené dilema jestli komín a jestli rekuperaci, tak jsem moc šťastnej a v noci bych lépe spal.
Odpovedať
@r4d3k74 ako to myslíš? Nie je dobré dávať krb s komínom a rekuperáciu? Som to trošku nepochopil
Odpovedať
@arantir ne, tak jsem to nemyslel. Jen tak, ze ja k problemu zda rekuperace ano nebo ne resim jeste problem zda komin nebo ne.
Odpovedať
@r4d3k74 aha. Tak to riešiť veľmi nemusím,kedže je v pláne krb
Odpovedať
@arantir jaaaj tak pokial to myslis takto a vies ze ti to tak bude vyhovovat tak preco nie. Toto je to, ze clovek sam najlepsie vie co mu vyhovuje ;)
Odpovedať
Článok sa načítava...
1
Na pridanie príspevku sa musíte prihlásiť.
Presunutím fotiek môžete zmeniť ich poradie

Nenašli ste čo ste hľadali?