Slovensky bungalovik klasik

Profilova fotka
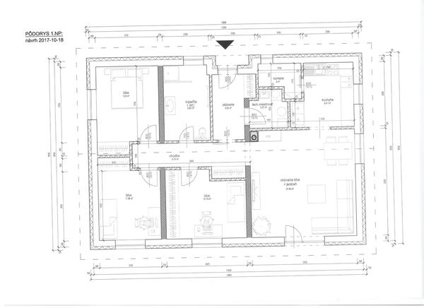
ahoj strechaci. Skusili sme si to prisposobit nasim potrebam, klasicky slovensky bungalovik. Nejake postrehy na com popracovat? dik
Odpovedať
@twinnkl TAm nie je čo vylepšovať. Myslím, že to je celkom dobré. Ak ty nemáš potrebu tam niečo meniť, tak je to dobré. Ak je orientácia tak, že vchod je zo severu, tak by som možno zväčšil tie dvere na terasu v obývačke (možno HS portál) a posunul ho viac k stene, na ktorej je TV. A určite si naprojektuj na tie dvere aj okná na tej stene vonkajšie žalúzie.
Odpovedať
Pôdorys je fajn, jedine čo mne chyba je samostatne wc, ale zas to je na vás :)
Odpovedať
Profilova fotka
@chrobak7 ano vchod zo severu, tiez si myslim ze tie terasove dvere by mohli byt vacsie, neviemci byto stacilo na dostatocne presvetlenie obyvacky
Odpovedať
Profilova fotka
@k_e_y no tiez vsetko bolo v uvahe, az sme vyselektovali ze radsej TCH miestnot a spajzku 0)
Odpovedať
povedal by som, že tam nie je čo riešiť. prehľadné miestnosti, dostatok miesta, svetla. akurát by som možno otvoril kuchyňu, no to je len o zvyku, keďže my to máme spojené.
Odpovedať
Profilova fotka
@twinnkl dobre je to. Odcenujem technicku miestnost a hlavne pristup do komory, pride mi to premyslene a logicky rozlozene. Myslim, ze niet tam co menit, zda sa mi to prakticke a rozumne riesenie, ale tak to musis vediet hlavne ty :-)
Odpovedať
Myslel som si ze klasicky slovensky bungalovik ma 3 kupelne,samostatne wc,pracovnu a práčovňu😂.Ale nie,sranda.pekny projekt a jednoduchy
Odpovedať
Tak to áno, to je dôležitejšie :) ale ako pozerám tak aj my to budeme mať rovnako že oddelenu kuchynskú linku a jedáleň s obyvackou spolu, dokonca aj tu chladničku ideme mať rovnako schovanú :P
Odpovedať
Profilova fotka
Keď je jedno WC, tak určite samostatné.
Odpovedať
Profilova fotka
@katika_ba neviem ako by sa to samostatne wecko tam pomestilo, aby malo tiez okno... Kupelnu vobec neviem ako rozmiesnit. Chceli sme tam iba murovanu sprchu, velke umyvadlo a zachod plus nejaka skrinka
Odpovedať
Profilova fotka
@twinnkl Možno keby si presunula výklenok na skriňu v predsieni na opačnú stranu (odkrojila z kúpeľne), o niečo zmenšila špajzu, natiahla technickú až k vonkajším múrom a pridala jedno okno. WC by si mohla dať do technickej.
Odpovedať
Profilova fotka
@twinnkl pozor na hlbku vstavanej skrine je nepostacujuca... vlastna skusenost tiez to tak mame :) a co sa technickej miestnosti tyka porozmyslajte ci sa neda spojit so spajzou sak ide tam len o plynovy kotol maximalne pracku... a urcite samostatne wc v dome najlepsie aspon 2!
Odpovedať
Profilova fotka
@katika_ba rozumiem, to by sa dalo )
Odpovedať
Profilova fotka
@twinnkl A to wc v kupelni by som tiez ponechala.
Odpovedať
Profilova fotka
Dakujem vam za postrehy vsetkym, mam par chrobakov v hlave tak idem to skusit poriesit s polovickou, muzickom, ktory uz ma toho plne zuby. Nebude preneho jednoduchsie vymenit manzelku?))) dik
Odpovedať
@twinnkl nebude :-)
Odpovedať
Článok sa načítava...
Profilova fotka
@cina1 ;-)
Odpovedať
@twinnkl alebo strčiť wc ešte do technickej ... proste dve wc bude treb v dnešnej dobe sa len žere a kaká :-D ciká
Odpovedať
Male skrine na sirku aj na hlbku, ja niesom nakupna maniacka, ale na 80cm siroku skrinu by som nadavala. A to samostatne wc bude chybat.
Odpovedať
Jedine, co mne tak taha oci je malo ulozneho priestoru, takto sa to mozno nezda, ale ver tomu, ze tych veci sa nazhana velmi vela a nebude ich kde skladovat. Treba este do detailov toto premysliet a inak si myslim, ze pohoda :-D
Odpovedať
Profilova fotka
Mne teda neťahá oči nič. Je to osvedčená klasika.. Žiadne vymýšľance a nezmyselné priestory.. Skrine sa dajú v takom dome pohode porozmiestňovať a stále bude k dispozícii dostatok voľného priestoru.. Smelo do toho..
Odpovedať
Profilova fotka
@daniellito ufff dik za povzbudenie trochu ma vydesili ))
Odpovedať
@daniellito tak daj kam tam este da poriadnu skrinu?
Odpovedať
Profilova fotka
@atlaska no tak v detskych izbach im to snad postaci, a z manzelskej skrine pojdu vetrovky a kabaty do skrine na chodbe... Jasne ze to nie je tip top ale to ani nikdy nebude pri nasom rozpocte))) a dovolenka v stane a na slovensku a ambrosius miesto plzne... Prisposobime sa domu a nie dom nam :-D
Odpovedať
@twinnkl prisposobujes sa bytu, naopak , novy dom sa ma prisposobit tebe. Aj ked das vetrovky prec, coby asi robili v splani ze? Stale neviem kam si da manzelka veci pri skrini 160cm pre dvoch ludi. Premysliste ci nemoze byt inde okno aby tam bolo viac ulozneho priestoru.
Odpovedať
1
Na pridanie príspevku sa musíte prihlásiť.
Presunutím fotiek môžete zmeniť ich poradie

Nenašli ste čo ste hľadali?