Prosim o nazory na nami navrhuty projekt

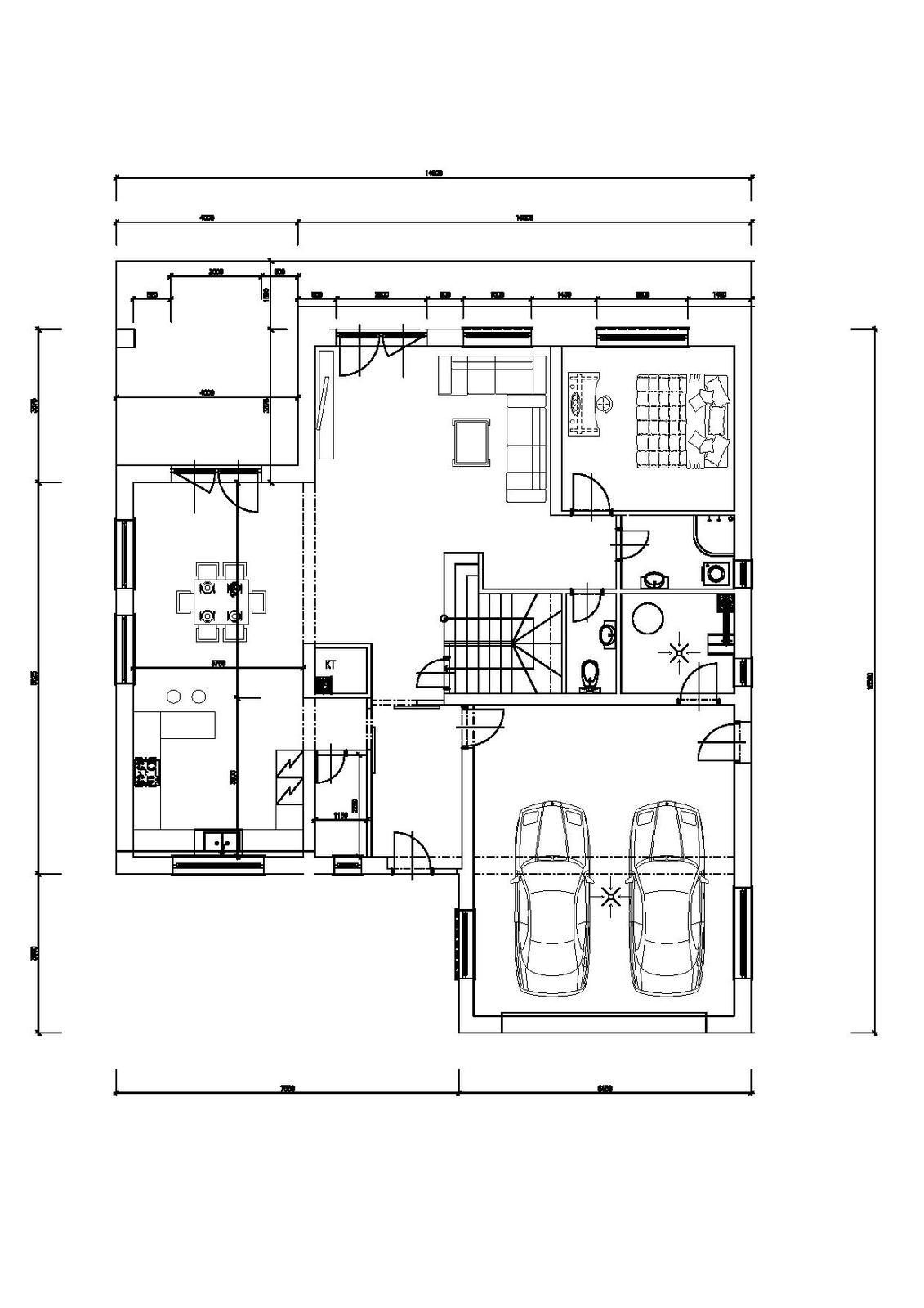
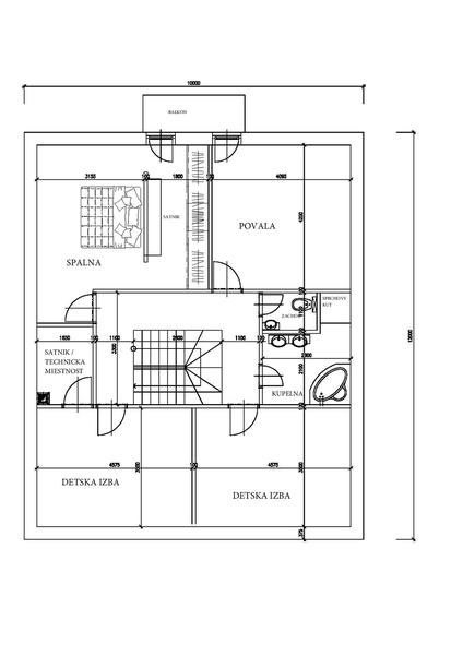
Ahojte, navrhli sme si nasledovny podorys. Podkrovie predstavuje zatial len hruby nacrt. Prosim Vas o Vase nazory a rady :)
Odpovedať
Ahoj Martinka, myslím že to máte veľmi dobre rozvrhnuté. Páči sa mi priamy vstup z garáže do domu. Myslím, že to je veľmi pohodlné hlavne v nepriaznivom počasí. Aj spálňa dole je super, že ste s ňou rátali. Predsa, treba myslieť aj na starobu :D Jediné čo by som ja zvažovala, je dať namiesto wc kotolňu, a pomerne dosť veľkú kotolňu spojiť s kúpelkou a dať tam aj wc. Ale to je môj názor. Nie každému vyhovuje spojené wc. Ale priestorovo by ste to mali lepšie. Ale zas na druhej strane na poschodí máte veľkú kúpelku, takže je to na Vašom zvážení
Odpovedať
Ahoj @dodoka83, dakujem velmi pekne za odozvu. Presne tak, pocitame, ze by sme spalnu dole vyuzivali teraz ako pracuvnu a hostovsku izbu a ak sa nam raz podari dozit staroby :) tak by sme sa tam premiestnili. A ano, povodne sme mali wc spojene s kupelnou, ale kedze to tak mame obaja u rodicov a nie je to velmi komfortne, tak sme skor za to, mat to oddelene a preto sme to prerozdelili :) dakujem este raz.
Odpovedať
@martinkam8 Mne raz jeden majitel stavebnej firmy hovoril, ze garaz v dome je volovina, ze casom to "zasmradne" od auta. Ale tak neviem co on ma za auto, asi dajaku staru šunku čo preteka :-D My planujeme tiez stavat domcek a garaz planujeme ako sucast. Podla mna velmi zaujimavy projekt. Drzim palce 8-)
Odpovedať
podorysne velkorysy dom, takze k velkosti domu mi pri vstupe chyba dostatocne velky satnik aj botnik (kabaty a topanky, klobuky a vsetko prislusenstvo podobne asi nebudete nechavat v izbach a behat s tym cez cely dom ;) ), v byvacke mi tam pride troska vela hlucheho miesta (od jedalne smerom do obyvacky), ale ak tam date napr piano tak to bude pecka :). jedine co by so si uzavrela chodbicku pred kupelkou a wc od obyvacky, pachy z wecka neuzavriete rychlim zavretim dveri dostatocne aby sa vam nedostali dalej :)
Odpovedať
ahoj @ludmila1111, dakujem za nazor, my sme povodne planovali dat tam este jednu medzi chodbicku, ale potom tym ze je vstup do predsiene, tak sme ju zrusili ako nadbytocnu. V podstate si myslim, ze v dnesnej dobe uz nie su tie auta take "smradlave" :) a ak ano, dufam, ze sa odfiltruje v predsieni. dakujeme, nechce sa dari :)
Odpovedať
Ahoj @debora_7, dakujem pekne za nazor :) to s tym pianom si uplne trafila, presne tam je naplanovane, no zatial nezakreslene na projekte - mas skvely odhad :) co sa tyka vstupnej haly - suhlasim, premyslime :) dakujem :)
Odpovedať
Profilova fotka
@martinkam8 nič som nevidel, takže jeď to zmažete, nemusím komentovať. Sú určité princípy, prevádzkové čiary, typológia, konštrukčné zásady, tie alebo rešpektujete a urobíte dobrý projekt, alebo nie a potom to máte na stole. Ale nebuďte z mojej priamosti smutná, projekt sa navrhuje podľa lokálnych podmienok a nemôžete všetko vedieť.
Odpovedať
@jan45, dakujem za komentar, mozete prosim priblizit, co sa vam nepozdava? alebo je toho tolko, ze to nema vyznam vypisovat? :)
Odpovedať
Mne sa to paci cele, akurat balkon by som vobec nedavala. A ano - tiez by som oddelila este WCko a kupelnu od obyvacky a inak je to pekne. Dokonca si myslim, ze aj na pravej strane vo vstupnej chodbe je celkom pekny priestor na vesiak na kabaty a nejaky botnik. Mily pan majitel stavebnej firmy tento nazor, ze garaz prepojit s domom je volovina, kde vzal, ak sa mozem spytat? Lebo teda my mame pod barakom garaz pre 22 aut, hned vedla nej cez chodbicku pracovnu so susiarnou a ziaden smrad ani cokolvek technicky-smradlaveho sa tam nedeje. Mozno si on len tak pre spas nechava v garazi nastartovane auto, ak pretankoval... alebo co...
Odpovedať
@jan45 Ty mas vo vacsine pripadov take fajn pripomienky a napady, rada Ta citam, ale teraz som Ta nepochopila...
Odpovedať
Profilova fotka
@lubinkag. No mne sa len nechcelo toľko písať ako Vám, ale zhodujeme sa
Odpovedať
@lubinkag. dakujem pekne za komentar a dobre napady. zvazime. Momentalne nas trapi najma vrchne podlazie, nakolko mame pocit, ze tam vznika velky priestor, ktory nie je tak vyuzity ako spodny.
Odpovedať
@lubinkag. kde je v tom vstupe priestor na skrinu a botnik? Este tak botnik na mozno 10 parov topanok. Dvaja sa tam nevyzlecu, nieto ked sa rodinka vrati z prechadzky. Preco ma jedna detska satnik,druha nie? Radsej z toho urobte satnik rodicov. Balkon je zbytocnost v dome, zbytocne peniaze za nieco,co nevyuzijes. Navrhnut podorys nestaci, navrhuje sa cely dom v sucinnosti so statikou, osadenim na pozemku......
Odpovedať
1
Na pridanie príspevku sa musíte prihlásiť.
Presunutím fotiek môžete zmeniť ich poradie

Nenašli ste čo ste hľadali?