Projekt RD- rady a tipy

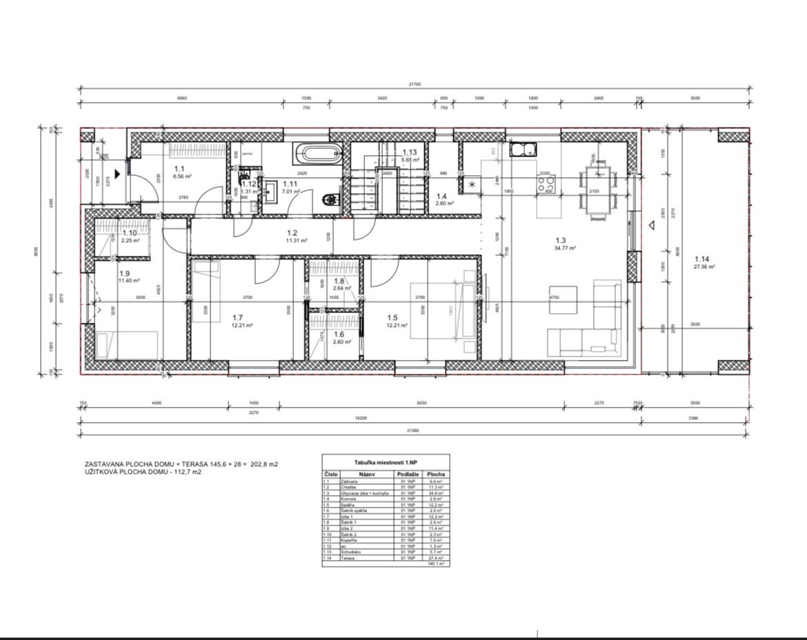
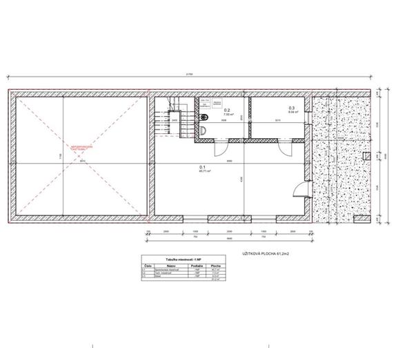
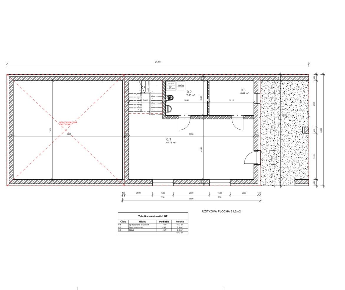
Dobrý deň, rada by som sa poradila, či by ste na tomto návrhu rodinného domu niečo zmenili alebo upravili. Ide o bungalov so suterénom, situovaný na severnej strane svahovitého pozemku. Budem rada za hocijaký návrh alebo vylepšenie. Ďakujem.
Odpovedať

Odpoveď na príspevok od sonabel:

Dobrý deň, rada by som sa poradila, či by ste na …
@sonabel uprimne za mna nic moc. Chyba mi rozdelenie na dennu a nocnu cast. Vsetci co pridu k vamu musia prejst cely dom. Najviac sa asi potesi dieta co bude mat hned tu prvu izbu. V noci sa moze vratit zo zatahu a rodicia aspon nebudu vediet kedy 😁. To len tak na odlahcenie. Neviem kde je ulica, predpokladam vlavo. Spalna do ulice, za mna je to rusive. Vstup do domu rovno pred izbami nie je najidealnejsie riesenie. Mne by vadila kupelna a zachod hned pred izbami. Mat za hlavou telku by som tiez nechcela. Neviem aky je pozemok, ale volila by som dom skor do L
Odpovedať
Profilova fotka
@sonabel ak chces, aby ti niekto robil bezplatnu oponenturu, treba nahrat obrazok tak, ze je citatelny, aspon teda koty. Napr. v GIF formate. Inak suhlas s prispevkom nado mnou, dispozicia ala 1970, rurovito-chodbovite, izby ako vo vlaku. Projektant zjavne zaspal cas a kopiruje projekt slobodarne z roku 1970. Dnes je rok 2025. Hodte do kosa a dajte prerobit, alebo si najdite iny projekt. Ked uz sa niekto hra na architekta, mal by aspon oznacit kde je juh :). Ak ste to spackali vy, dajte to radsej spravit profesionalovi...
Odpovedať
Profilova fotka
Ahoj, za predpokladu ze podorys je prisposobeny pozemku. Prechadzat celym domom, teda povedla izieb, hlavne izieb detí do dennej casti nie je super, ak sa neda inak, da sa na to zvyknut. Ale nahodou, v minulom byvani sme chodili, my domaci, domov zadnym vchodom - nakuknes do jednej izby, do druhej, vies co robia deturence 😆 Ale navsteva, taka ta nie moc blizka, to je naprd. Mini satniky su tu plytvanie priestoru. Asi chcete odhlucnenie. Do tych dvoch izieb vstavane skrine na celu sirku. Mat pracku v suterene a chodit s pradlom hore dole... Samostatne wc situovat medzi schody a kupelnu, aby bolo "o dvere blizsie" z dennej casti. V kupelni zamenit wc so sprchou. Kuchyna, spajza a jedalen prisposobit inak. Spajza min 100cm - 40cm policky, 60 prechod, okno nech nezavadzia vysokym policiam. Jedalny stol : vezmi meter, zmeraj si od odsunutej stolicky, cez stol po dalsiu oproti odsunutu stolicku kolko miesta potrebujes. Tu by som rozsirila spajzu, jedna strana police, druha strana pracovna doska s vylozenymi robotmi, kuchyna linearna, stol dostredu miestnosti a otocit. Vsetky izby treba uz v podoryse zariadit nabytkom.
Odpovedať
Za mňa veľa priestoru zaberajú chodby.
Odpovedať
1
Na pridanie príspevku sa musíte prihlásiť.
Presunutím fotiek môžete zmeniť ich poradie

Nenašli ste čo ste hľadali?