Pôdorys staršieho domu

Dobrý deň, chceli by sme vedieť ako by ste riešili pôdorys tohto domu. Jedná sa o dom z 50tich rokov z pálenej tehly, ihlanovitá strecha s manzardou, trámový strop a prístavba ktorá je podpivničená. Do podkrovia vedie len úzke drevené schodisko. Doposiaľ bol na dom volaný iba statik. Boli by sme radi za každú radu ale postreh. Ďakujem
Odpovedať
Profilova fotka
ťažko niečo poradiť a čo by ste z toho chceli urobiť
Odpovedať
Chceli by sme sa poradiť, čo by sa s tým dalo spraviť pred tým než oslovíme projektanta alebo architekta
Odpovedať
Vselico by sa dalo aj Tesco express by sa dalo z toho urobit. CO pozadujete? RD pre 4 ci 10 ludi? Izby aj v podkrovy,kolko, sauna, kupelka, wc 1 ci 2.......terasa zimna zahrada...... a az budete vediet co vsetko chcete,chodte za projektantom,i architektom oni nic ine nepotrebuju,ziadne vase nakresy.
Odpovedať
Profilova fotka
Určite si treba dobre premyslieť a spísať požiadavky a tiež finančné možnosti pre rekonštrukciu. Architekt Vám potom pomôže nájsť najlepšie riešenie. Ale ako píše atlaska - dá sa z toho všeličo. Ešte k tomu nákresu - modrou je asi vyznačená prístavba, ale čo znázorňuje červená ? - schodisko a podkrovie, alebo ? Ak by ste chceli poradiť niečo konkrétnejšie, napíšte mi správu.
Odpovedať
@architekt_mikulec dakujem za vasu reakciu napisal som vam spravu
Odpovedať
Profilova fotka
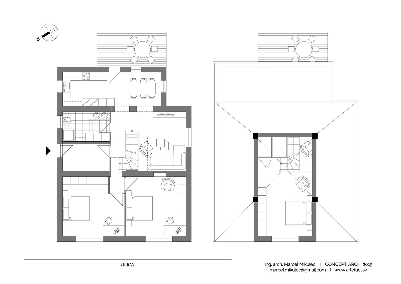
@moshna Tak som sa nakoniec pokusil spraviť zo staršieho projektu niečo príjemné pre bývanie podľa Vašich požiadaviek. V podstate ak chcete maž v dome okrem obývačky, kuchyne a spálne aj dve izby - určite odporúčam zobytniť podrkovie - manzardu. Nie som si istý presným tvarom strechy - boli by fajn nejaké fotky ale myslím, že nový vstup do obytného podrkovia by mal byť bezproblémový. Daným dispozičným riešením sa určite zmestíte do požadovanej sumy za rekonštrukciu. Viac v správe.
Odpovedať
Profilova fotka
Respektíve druhá alternatíva - nakoľko neviem ako máte vedené rozvody vody a kanalizácie.
Odpovedať
1
Na pridanie príspevku sa musíte prihlásiť.
Presunutím fotiek môžete zmeniť ich poradie

Nenašli ste čo ste hľadali?