Pôdorys ???

Profilova fotka
Prosím vás má alebo mal niekto takýto alebo podobný pôdorys domu? Veľmi by som prosila o vaše rozmiestnenie miestnosti, o váš pôdorys..🙏🏼🙏🏼
Odpovedať
Sever je teda ktorým smerom...? ;-)
Odpovedať
@dedo758 dedo ved slabo vidíš, predsa na všetky strany..
Odpovedať
@daralbajda Ale v tom prípade stavia na južnom póle - tam dať hlavne dobrý pozor na kvalitné zateplenie... :-D
Odpovedať
Profilova fotka
Zle sú nakreslené šípky ale sever je v ľavom hornom rohu
Odpovedať
@levannaa bože, ale ktorým smerom?
Odpovedať
@daralbajda vľavo hore S, vpravo dolu J, vľavo dolu Z, vpravo hore V... ;-)
Odpovedať
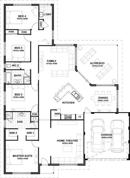
caw. Ja mam podobny.
Odpovedať
@mrmartinez Nebola by lepsia technicka z chodby a spajza pri kuchyni? Ci budes behat z kuchyne cez chodbu do spajze po veci?
Odpovedať
@levannaa nieco podobne pre inspiraciu https://pin.it/m64npz4y2ndo3c
Odpovedať
@fokuska spajza je pri kuchyni :-) pri dverach mam satnik ale som ho oznacil ako spajzu. A hej do technickej by bolo lepsie ist z chodby ale nie je tam priestor na dvere.
Odpovedať
@mrmartinez Ahaaa... pomylil ma napis pantry :)
Odpovedať
Profilova fotka
@mrmartinez toto vyzera dobre, je to oddelene, je tam vsetko co ma, aj ta spajza pri kuchyni je fajn a to, ze sa neda urobit vstup do technickej z tej chodby, s tym nic neurobis, ked tam nie je priestor, ale ja by som z toho ani vedu nerobil, ved preco aj ;-)
Odpovedať
@mrmartinez nie je zbytocne mat dve kupelne, sa da povedat, ze hned vedla seba? Nerozmyslal si tu jednu dat niekto do dennej casti domu, ked k vam pride navsteva a tak? Hm?
Odpovedať
@benko3387 Rozmyslal a aj som to tak mal ( riesil som tu ten podorys pred pol rokom :D ). Nakoniec som sa rozhodol pre tuto variantu. Ci to bolo zbytocne dam vediet asi az ked sa tam nastahujem. Zmeny uz niesu mozne :D
Odpovedať
Profilova fotka
@mrmartinez myslim si, ze hlavne rano to ocenite, ze mate dva zachody :-D :-D :-D
Odpovedať
Profilova fotka
ako ocenujem to oddelenie. to sa mi paci, ked je spacia cast oddelena od tej dennej a ma clovek tak povediac klud a navsteva nemusi prechadzat miestnostami
Odpovedať
Článok sa načítava...
Profilova fotka
@mrmartinez fajn to je, aspon mne sa to zda prakticke, len este uvazujem, ci by nebolo este lepsie, keby sa technicka vymenila s tym satnikom pri vstupe
Odpovedať
Profilova fotka
@mrmartinez ďakujem krásne
Odpovedať
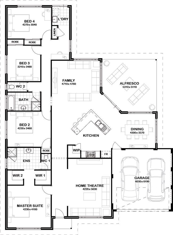
Profilova fotka
@wivik to vyzerá veľmi zaujimavo👍. Vedeli by sme zistit koľko je tam asi stvorakov ?
Odpovedať
@levannaa su tam sice nejake rozmery ale na spalnu mi pride 3x3 m dost malo. Najjednoduchsie mozes urobit ze zoberies stvorcekovy papier a pokusis sa to prekreslit s rozmermi ktore tebe viac vyhovuju. Urcite by som ten vstup prerobila aby bolo zadverie vacsie a aby sa neislo hned do obyvacky ale vytvorila by som chodbu aby sa obyvacka dala uzatvorit. Ked si otvoris stranku ( das navstivit) tak je tam ze su navrhy pre 2000 az 2500 square feet. 2000 je cca 185 m2
Odpovedať
@levannaa teraz som natrafila na taky podorys. Garaz by som presunula na miesto ",home theatre" . Z "master suite" by som urobila vstup so zadverim so satnikom, mozno technicku alebo pracovnu. Hlavna spalna by mohla byt hore so satnikom a vlastnou kupelnou
Odpovedať
@wivik tento pôdorys, čo si pridala nevyzerá zle, mne sedí to, že chodby nie sú veľké, že ten priestor je využitý najmä v prospech izieb ;-) Ale tá spálňa hneď pri vchode to sa ani mne moc nepáči, bolo by dobré, keby to bolo celé spolu nejako ako kvázi nočná časť ;-)
Odpovedať
1
Na pridanie príspevku sa musíte prihlásiť.
Presunutím fotiek môžete zmeniť ich poradie

Nenašli ste čo ste hľadali?