Nejake podnety navrhy k navrhu domu?

Profilova fotka
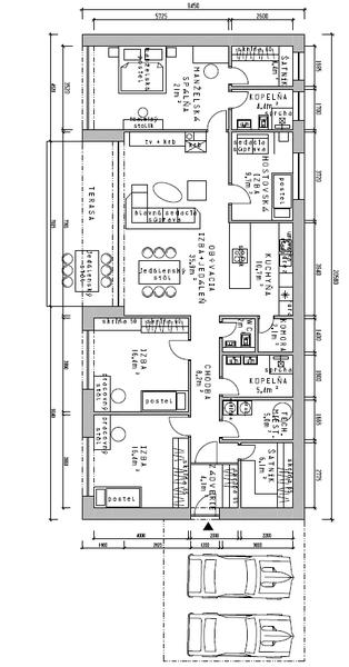
chcem sa opytat ci su nejake nedostatky alebo veci ktore by som mal zvazit pri rieseni tohto navrhu domu, okrem pristresku na auto ktory bude rovny ak by to niekto chcel velmi komentovat :-D vsetko okna su na juh, vstup je po lavej strane zo vychodu, respo spodnej casti obrazkov situacie a podorysu
Odpovedať
@ado1986 hosťovskej chýba sociálne zázemie, do domu sa vchádza cez "nočnú časť", cez dosť dlhú chodbu musíš zásobovať komoru, v kuchyni bude asi tma, toto by som skôr rozhodil na dve podlažia, ale prístrešok na autá je pekný :-)
Odpovedať
Profilova fotka
@slavoslav tu kuchynu asi doriesim uzkym severnym oknom, co sa tyka toho vchodu nemam velmi na vyber kvoli pristupu na pozemok, este teoreticky z juhu ale neviem ako to inac vymysliet, co sa tyka hostovskej to je skor office, trucovna, sklad, taky priestor pre vsetko
Odpovedať
@ado1986 mne by tam vadilo obrovske mnozstvo veci. ja by som to riesil takto. ale zit tam budes ty, tak sa zamysli a urob, ako ti to vyhovuje.
Odpovedať
Ja by som urcite zrusila priecku medzi satnikom a zadverim, 4m2 su zalostne malo na vstup do domu. Vznikla by potom vacsia hala, po obvode kludne vstavane skrine a zostalo by miesto aj na lavicu alebo kreslo. Pridala by som tam aj okno smerom ku pristresku, mozno ocenite, ak budete vidiet pred dom. Este by som prehodila hostovsku s kuchynou, bude blizsie k WC a oddelena od spalne. Tym padom by som vymenila aj jedalen s obyvackou, co by vyriesilo problem s otocenim gauca chrbtom k vstupu, aspon mne lepsie vyhovuje, ked je otoceny naopak, teda tvarou k vstupu.
Odpovedať
Profilova fotka
@ado1986 Nie som zástancom bungalovov - preto aj moja kritika: - nie je oddelená denná a nočná časť domu, - kúpelky sú žalostne malé na tak rozsiahly dom (ako v paneláku), - učili sme sa, že WC treba oddeliť od kuchyne (resp. obývačky) minimálne dvomi dverami (viem o čom hovorím ...), - zváž to veľkolepé presklenie - máš tam výhľad - alebo budú mať susedia na teba výhľad (aby si nemusel mať stále spustené žalúzie - ako podobný dom v Olšovanoch pri ceste), - možno by bol poschodový dom o polovičnej zastavanej ploche dispozične prijateľnejší a možno aj lacnejší ...
Odpovedať
Vymeň architekta/dizajnéra, ak si to robíš sám nájdi ho! Nešetri ozaj drobné za myšlienku. Pozemok ťa nijak zvlášť nelimituje, skôr by som povedal, že je to výzva pre odborníka.Vizualizácia exteriéru ako tak, no dispozične je to úplná katastrofa, prepadák. Pri veľmi rozumnom prístupe za toto zaplatíš 180-200 tisíc. Ak to vyšperkuješ podľa vizualizácie ešte dobre pridaj. Výsledok bude dom z r. 2018/19 s úplným odignorovaním princípu dennej a nočnej časti s mini kúpeľňami, s prístupovou chodbou ako v turistickej ubytovni a s návštevou, ktorá akoby mala po sebe spláchnuť WC radšej si zauzluje nohy ...!?
Odpovedať
Profilova fotka
@ado1986 Ja by som zrušil to zádverie s tým šatníkom a kúpeľňu posunul až k obvodovej stene, tak aby mi vzniklo WC tam kde je teraz zádverie na šírku chodby, ako bolo napísané prehodil by som kuchyňu a hosťovskú, tým že sa zrušilo zádverie hosťovská viac zapadne medzi izby a vznikne miesto pre jedálenský stôl a vchod by som dal na juh síce to nieje ideálne ale aspoň by sa vchádzalo v strede domu, predstavoval by som si ho niekde tam kde je teraz stôl na terase trocha by vyčnieval aby sa doň dalo vstúpiť z rovnakej strany ako sa vstupuje teraz. Ale to sú väčšie úpravy ak sa dajú zmeniť už len maličkosti zvážil by som použitie tak veľkých presklení do izieb na vyzualizáciách to vyzerá dobre ale ja by som v takej izbe bývať nechcel hlavne večer keď vo vnútri zasvietiš a z vonku je všetko vidieť. PS: pozor na komín v obývačke každých pár rokov by sa mal totiž vymetať, možno by bolo dobré ho presunúť aby bol na vonkajšej stene.
Odpovedať
Profilova fotka
vdaka za nazory, tiez som nestastny z toho vstupu asi to budem musiet fatk zmenit na juh takto to bude velmi tmave hlavne na vstupe atd. ak este niekto nieco ma kludne napiste necham si poradit
Odpovedať
Tmavost vyriesi svetlovod, ale preco z toho zadveria nieje vstup do satnika, ale az za dalsimi dverami? Trocha neprakticke.
Odpovedať
@ado1986 poschodovy nechces? na male a nestandardne pozemky (tvoj pripad), by to vyriesilo vacsinu problemov. Pozri napr. moj navrh, ako som si navrhol dom ja sam a teraz ho staviam.
Odpovedať
1
Na pridanie príspevku sa musíte prihlásiť.
Presunutím fotiek môžete zmeniť ich poradie

Nenašli ste čo ste hľadali?