Názro na náš projekt

Zdravím vás. Chcel by som vás poprosiť o názor na náš projekt.
Odpovedať
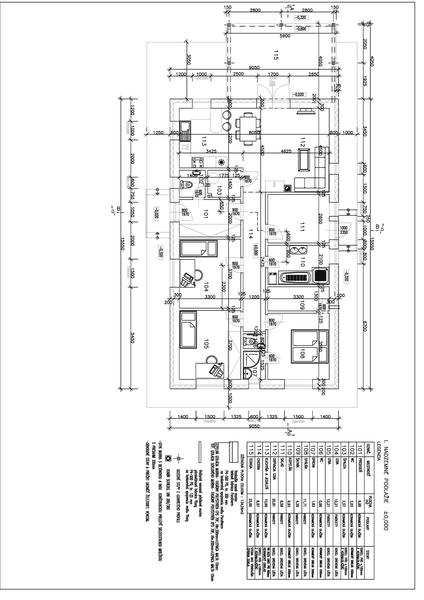
č.111 sklad, potrebujete? projekt je fajn, máme podobný. ale trošku malé izby, ja by som zrušila ten sklad, a radšej zvačšila spalnu a obývačku.
Odpovedať
@margareta83 Sklad je to iba pre stavebný úrad. Bude to pracovňa. Nechceme veľké izby kto to bude upratovať a kúriť.
Odpovedať
Profilova fotka
@palynko Normálny, dobrý, vymyslený... Pekný. Jediná "smietka" z mojej strany: sú tam 3 odbery TUV a každý na úplne opačnom konci domu. Buď tam bude musieť byť cirkulačný okruh teplej vody, alebo budete dlho odpúšťať teplú vodu...
Odpovedať
Ako hovori @leonardom Teraz byvame s nasimi a kupelna a kuchyna su na opacnom konci domu, mame aj cirkulacny okruh, ale kym pride voda do kuchyne, odpustime aj 7L vody. Moj navrh, skusit vymenit pracovnu a sprchu s WC ;)
Odpovedať
PARDON 😊 myslela som satnik vymenit za sprchu a WC 😊
Odpovedať
Profilova fotka
@lubiqe112 Riešením by mohla byť batéria s ohrevom v kuchyni: http://www.delimano.sk/priprava_napoj... Alebo ešte lepšie predsunúť pred prívod teplej šikovný prietokový ohrievač: http://www.hakl.sk/hakl_mk1.html Radšej kvalitný drahší s inteligentným nastavením, ktorý - až už z kotla dorazí teplá voda - prestane ohrievať...
Odpovedať
Ďakujem za názor @leonardom aj @lubiqe112. Uvažujem, že dáme jeden bojler do veľkej kúpelne a jeden menší do rodičovskej tá bude asi využívaná menej čiže tam pôjde časovo nastaviteľná zásuvka. Ten link na ten prietokový som si uložil to je super riešenie fakt ďakujem uvažoval som tam nad prietokovým ale nevedel som, že sú ja takéto ''inteligentné''.
Odpovedať
ved daj jednoduche cerpadielko, casovac, naco 2x bojler v takom malom dome? zbytocnu opachu do kupelne a vyhodene peniaze. . Rodicovska kupelna nebude menej vyuzivana, uplne rovnako ako detska. @palynko
Odpovedať
Profilova fotka
@palynko Nooooo.... inteligentné... Ono sa tam dá (asi ako na všetkom) nastaviť parameter, na koľko sa má voda hriať napr. na 55°C. Takže on hreje a pokiaľ už doňho pritečie voda z kotla, ktorá bude mať takúto teplotu, on už potom nedohrieva. Áno tak sa to aj volá: Prietokový ohriečač na "dohrev" TUV, prichádzajúcej zo vzdialeného zdroja. Aspoň mne takýto u Hakla pred cca 15 rokmi poskladali, keď ma už omrzelo kvôli 1 mastnej lyžici odpúšťať 10 l vody.
Odpovedať
Profilova fotka
- Vchod do miestnosti 103 si dajte z predsiene. Si predstav ze sedis na gauci a kukas na dvere pri chodbe. Trosku neesteticke. - co je v izbe 111 ? - moj nazor je ze satnik 109 je zbytocne velky, ten ste mohli rozdelit na 2 a umiestnit tam 106 a 107. Pretoze mne osobne by vadilo ak by som spal a vedla v izbe mi tecie sprcha, alebo splachuje zachod.
Odpovedať
@mato666222 projektant to nezmenil, 103 bude mat vchod z predsiene. 111 je pracovna. Satnik chcem vacsi toho sa nevzdam. A ano chcem dat nieco na tu stenu co je medzi 106, 107 a 105 co bude tlmit hluk.
Odpovedať
Profilova fotka
@palynko Ono co je na projekte nemusi byt aj v skutocnosti. S tymi dverami do technickej miestnosti porozmyslaj. Pracovna zbytocne velka. To mi ver.
Odpovedať
Profilova fotka
@leonardom už je aj takýto ohrievač http://www.club5.sk/ponuky/kuchyna_a_...
Odpovedať
@mato666222 Pracovna je aj pre mna aj pre manzelku. Podla mna bude aj mala.. :-)
Odpovedať
@mama112 dakujem, link ulozeny
Odpovedať
1
Na pridanie príspevku sa musíte prihlásiť.
Presunutím fotiek môžete zmeniť ich poradie

Nenašli ste čo ste hľadali?