Nazor na studiu RD

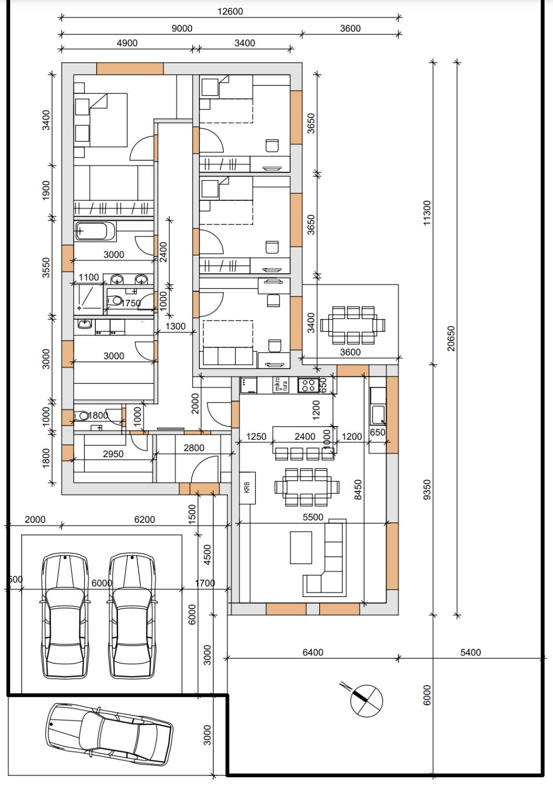
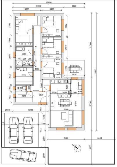
Ahojte, chcela by som Vás poprosiť o postrehy a nápady na štúdiu nášho rodinného domu. Už sme to prerobili viackrát ale ešte stále nie sme na 100% spokojný. Hlavne čo sa týka tej časti kde je vchod a usporiadanie celej dennej časti. Na to sme skúšali viaceré možnosti ale nevieme sa rozhodnúť ako najideálnejšie rozložiť aby to vyhovovalo na každodenné užívanie. Ďakujem za každú radu.☺️
Odpovedať
1
Na pridanie príspevku sa musíte prihlásiť.
Presunutím fotiek môžete zmeniť ich poradie

Nenašli ste čo ste hľadali?