Kde dať špajzu

Profilova fotka
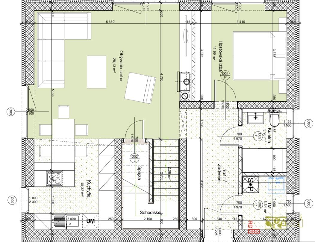
Ahojte prosím Vás nejaké nápady kde vtesnať špajzu , ak ju nechceme pod schodami? Pod schodami by sme dali skôr šatník ako špajzu.... za akékoľvek nápady vopred vďaka 😊
Odpovedať
Napríklad takto. Inak podarený pôdorys prízemia, podľa mňa. Mne tam špajza nechýba.
Odpovedať
Profilova fotka
@zltalienka ďakujeme , tam sme ju nechceli dole tu špajzu ako ste ju nakreslila, kvôli tomu že tam bude okno, ešte sme rozmýšľali že to posunieme tie schody na úroveň skrini na chodbe a tým pádom sa skriňa zruší ...
Odpovedať
@pauliganka neposuvala by som, netreba vobec spajzu, teda mne nechyba ani ju nemam.. Nejake vacsie veci mozu byt v technickej.. Kuchyna je velka, vsetko sa tam pomesti bezproblemov..
Odpovedať
Profilova fotka
Ahoj. Com sa da hybat v podoryse, kam sa da posunut? Co ma byt uskladnene v spajzi? Skrina v zadveri je potrebna, sadnut si, odlozit topanky, kabaty, dazdniky, ciapky, rukavice. Mozno to zadverie nemusi byt take siroke. Okolo stola nie je miesto. Tie dve skrine v kuchyni by uz nemali byt. Skoda mat takto prilozeny stol k ostrovu, je to take z nudze cnost. V obyvacke na dlzku vela miesta a okolo stola do kuchyne tlacenie, stale zasuvanie stoliciek. Ten co si sadne do kuta ani nebude pomahat/odbehovat od stola ked bude treba nieco zabudnute priniest. Keby sa schody dali oproti, TV by bola pod schodami, krb oproti, kuchyna by sa rozsirila + spajza vedla nej. Este by sa dalo vymenit izbu s kuchynou. Otvaranie dveri by som dala do kupelne, ale vchod do sprchy od wc, aspon nebudete sliapat na kobercek zo sprchy pri kazdom umyvani ruk.
Odpovedať
S tymi schodami to nie je zly napad. Ak by sa tak prelozili, vznikol by veru zaujimavejsi a vacsi priestor na vsetko. Celkom dobre si to tak viem predstavit a aj by sa mi to tak viacej pacilo
Odpovedať
1
Na pridanie príspevku sa musíte prihlásiť.
Presunutím fotiek môžete zmeniť ich poradie

Nenašli ste čo ste hľadali?