O nás
Staň sa PRO!
Modrastrecha.cz
Mojasvadba.sk
Beremese.cz
Záhrada.sk
Mojdom.sk
Fórum
Fotoblogy
Bazár
Profesionáli
Magazín
Zadajte hľadaný výraz
Prihlásenie / Registrácia
Fórum
Kategórie
Najnovšie diskusie
Kde sa diskutuje
Kam som prispel
Sledované diskusie
Sieň slávy
Fotoblogy
Všetky príspevky
Môj výber
Priatelia a obľúbené
Zoznam skupín
Moje skupiny
Kolekcie
Inšpirácie
Bazár
Všetky inzeráty
Môj bazár
Profesionáli
Všetci Profesionáli
Inzeráty Profesionálov
Magazín
O nás
Zadajte hľadaný výraz
Kategórie
Najnovšie diskusie
Kde sa diskutuje
Kam som prispel
Sledované diskusie
Sieň slávy
0
lajkov
5
správ
Fórum
>
Projekty
Zapnúť upozornenia
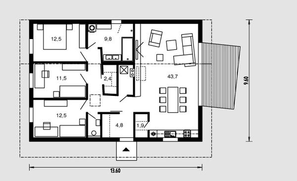
Čo poviete na projekt bungalovu "4in" ďakujem :-)
Zobraziť profil
robho
robho
Autor diskusie
30.08.2016
Zmenili by ste niečo? Prosím o info ak ho niekto má postavený alebo ho plánuje stavať.
0
Páči sa mi to
Odpovedať
Viac...
Poslať súkromnú správu
Nahlásiť príspevok
Zoradiť podľa:
najstaršieho príspevku
najnovšieho príspevku
0
lajkov
Zobraziť profil
jan45
jan45
31.08.2016
žiadne dvojumyvadlo, radšej druhé WC
0
Páči sa mi to
Odpovedať
Viac...
Poslať súkromnú správu
Nahlásiť príspevok
1
lajkov
Zobraziť profil
robho
robho
Autor diskusie
31.08.2016
Ďakujem za reakciu, ale máte úplnú pravdu, toto je ešte pôvodný pôdorys bez úpravy, ale umývadlo bude určite jednoduché, wc v kúpelni a namiesto wc bude volná odkladacia miesnosť.
1
Páči sa mi to
Odpovedať
Viac...
Poslať súkromnú správu
Nahlásiť príspevok
0
lajkov
Zobraziť profil
mr79
mr79
31.08.2016
Na jedno spolocne WC s kupelnou zabudni.... To je blbost na N-tu. jan45 myslel druhe WC a nie to samostatne zrusit...
0
Páči sa mi to
Odpovedať
Viac...
Poslať súkromnú správu
Nahlásiť príspevok
sponzor fóra
0
lajkov
Zobraziť profil
robho
robho
Autor diskusie
31.08.2016
Ide mi práve o to nechať si poradiť od skúsenejších, určite budem nad tým uvažovať...
0
Páči sa mi to
Odpovedať
Viac...
Poslať súkromnú správu
Nahlásiť príspevok
Nahlásiť nevhodnú diskusiu
1
1
Zapoj sa do diskusie
Na pridanie príspevku sa musíte
prihlásiť.
Pridať fotky
Presunutím fotiek môžete zmeniť ich poradie
Pridať príspevok
Nenašli ste čo ste hľadali?
Zadajte hľadaný výraz
Hľadať
x
x
Hľadať ďalšie diskusie
Hľadať ďalšie albumy
Zobraziť ďalšie články