Aký je váš názor na tento projekt domu?

Zobraz úvodný príspevok
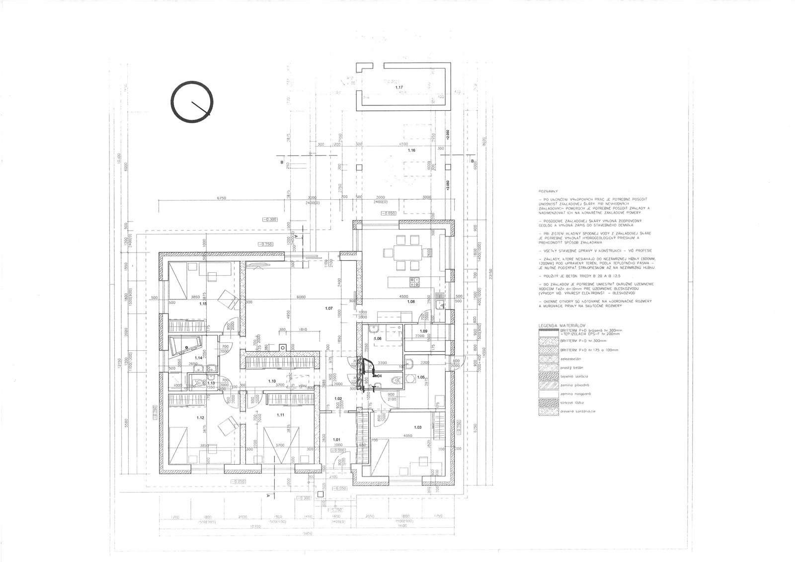
Ahojte Tento rok by sme chceli zacat stavat. Pozemok mame kupeny, 26 x cca 30 metrov. Mame vybraty projekt z euroline - Junior 55 - 7,5x14,25 m, heluz 38 + 15cm polystyren http://www.eurolineslovakia.sk/sk/pro... Trosku sme ho upravili podla nasich poziadaviek - otvoreny priestor obyvacky a kuchyne, rodicovske spalna na prizemi, krb, velke okna na terasu, garaz. Roh domu, kde je jedlansky stol je orientovany na JUH. Garaz sme presunuli vedla obyvacky. Je dlha 665cm takze sa tam najde aj priestor pre policu, prip skrinu na cokolvek. Tiez je v garazi komin od krbu. Pod schodami je spajza. Na poschodi vedla schodov je technicka miestnost (plynovy kotol - podlahove kurenie) s weckom. Najmensia izba hore je pracovna. Ratame aj detmi, takze urcite 5-6 clenna rodina by sa v dome mala citi prijemne. Dakujeme za kazdy vas navrh alebo pripomienku :) K&J
Odpovedať
1
2
Profilova fotka
@juryi to rozsirenie vstupnej chodby prediskutuj s projektantom. On urcite bude vediet ako na to. Mozno sa ti o nieco zvacsi schodisko, ale tym padom ti narastie aj ulozny priestor... suhlasim s @santorotn, tiez by som ten vchod do kupelne (dolnej) riesila z obytnej casti. Mas tam mensiu miestnost za kupelnou, to je co? Neviem identifikovat. Vchod je z vonku. Mozno by som tu miestnost zrusila, namiesto toho spravila tu kupelnu... My sme nieco podobne riesili pri vchode do domu. Potrebovala som predlzit zadverie. Vznikla mala chodbicka a z nej je vstup do izby, do kupelky/ Wcka a technickej...
Odpovedať
@lenka_21 ako vravis, prejdeme to s projektantom. Zatial sme si to len nacrtli takto. O 40 mozno 50 cm sme posunuli stenu s TV smerom do obyvacky. Kuchynska cast ostala nezmenena. Tym padom vznikol priestor na vstavanu skrinu a este aj mozno 190cm na pohyb. Plus tam bude mala komoda na "blbosti" a kluce :) Ta miestnost za kupelkou je satnik pre spalnu :) To dvojkridlove nie su dvere ale okna. Tiez v spalni. Tu je to uz lepsie vidno snad :)
Odpovedať
@juryi toto je už o niečo lepšie, ale určite sa treba poradiť s človekom kotrý sa tomu profesionálne venuje :-) aké rozmery by ti vychádzali na ten šatník? A načo tie dvere z garáže? :-)
Odpovedať
Profilova fotka
@juryi ak by sa Vam podarilo tie dvere inac priemiestnit, tak by Vam vznikla pekna chodba. 190 cm je fajn...na skrinu musis ratat 65 cm (menej nie!). Mame teraz spravili uzsi roldor a je to katastrofa... Ako som pisala, my sme nakoniec mierne zmensili jednu izbu, vznikla nam mala chodbicka a odtial mame vstup do 3 miestnosti... Presuvali sme aj dvere do kupelky a Wcka, su tiez v tej chodbicke, len to nemame zakreslene... skusala som opravit tak ako to mame :-D Snad sa z toho vyznas ;-) Tiez sme mali povodne vstup zo zadveria do izby a sucastou izby bola kupelna. Lenze to sa nam zdalo neprakticke a tak nam to projektantka upravila takto... Tym sa predlzila chodba, vieme tam dat druhe dvere, ktore by si mal mat aj ty, aby si to zadverie uzavrel...
Odpovedať
@patuscha sirka cca 140 x 280 myslim. Police budu do L. To uz bude v rezii pani manzelky cakatelky :) Dvere z a do garaze? Cokolvek, co budem potrebovat ist vziat do garaze, pojdem zobrat cez zadne dvere, nie cez prednu branu. Tiez tam zatial, kym nebude zahradny dom - ak vobec bude - budu veci ku grilu, kosacka atd atd. Casom z garaze bude aj taka mala dielnicka, preto tam bude aj umyvadlo, odpad a pri komine (biely obdlznik) bude piecka na prikurenie v zime.
Odpovedať
@lenka_21 Velmi pekne to mate, premyslene. Mate domisko ako svet :) Mas pravdu, to zadverie treba uzavriet. Predlzime priecku, ktora nam robi vstavanu skrinu v zadveri az ku kupelke a do nej dame dvere.
Odpovedať
@juryi áno? tak to je celkom v pohode rozmer som mala pocit, že to je menšie. Čakateľky? :-) krásne to znie, To kamarátkin budúci svokor jej bol prevziať nejaký balíček a podpísal sa, že budúci svokor a meno :-D Zdá sa ti to praktické? že keď budeš chcieť ísť z domu do garáže z vnútra dajme tomu pre kladivo, tak budeš musieť ísť dozadu?
Odpovedať
@patuscha to mi az tak vadit nebude. Zadom pojde z terasy chodnik, ktory bude kryty previsom strechy. Najskor som chcel mat vstup z garaze do domu. Potom sme to ale v ramci kompromisu zmenili na taketo riesenie. Vsetci spokojni :)
Odpovedať
Profilova fotka
@juryi Ked zacnes pocitat ten svoj, tak zistis, ze si plus minus tam kde my :-D :-D :-D Akurat ty ho budes mat poschodovy... ;-)
Odpovedať
@juryi tak ja som sa na to pozerala z tohto pohľadu, ale keď to máš takto vyriešené premyslené, tak v poriadku :-) čo sa týka prechodu priamo do domu tak to je jasné tiež to má svojich obhajcov aj odporcov :-)
Odpovedať
Z mojho pohľadu kuchyna je hrozne malá. ale ak moc nevaríte tak stačí. Šatník je velmi malí. To bude stačit tak pre jednu osobu. Vela strateného priestoru v dome. Daj si na to pozor. každý m2 v dome je cca 800euro. Detská izba je krásna velká. Ale mysli na to ze raz ju budú chciet oddelene.Aj ked ju teraz necháš otvorenú, mysli na to aby sa dali urobit dva vchody. Oddel si spiacu a dennu cast domu. Celkovo je projekt dost chaotický. Nechcem ta vazne urazit ale trosku si to este premysli, poprehadzuj a eliminuj zbytočné priestory.
Odpovedať
@pa5786 Kuchyna, ak si vezmes podorys 2,6x3,6, je nieco cez 9m2 - bez toho jedalenskeho stola. Priblizne takyto rozmer maju buduci svokrovci. Na zaklade toho sme si to takto dali, kedze u nich to staci pri klasickom vareni pre 6 clennu rodinu. Nerozumiem tomu stratenemu priestoru. Kde myslis? Ziadne zbytocne chodby, zakutia, rohy. Ak bude treba, vieme dat do obyvacko kuchyne dvere, tym sa oddeli spacia a denna cast. Zatial neplanujeme. Ako by to bolo menej chaoticke?
Odpovedať
1
2
Na pridanie príspevku sa musíte prihlásiť.
Presunutím fotiek môžete zmeniť ich poradie

Nenašli ste čo ste hľadali?