_Individuálny projekt_

Dobrý deň, chcem vás poprosiť o rady, názory na náš projekt. Čo tam podľa vás chýba, alebo naopak či tam nieje niečoho moc :) Čo sa týka dispozície tá sa nám ľúbi a tu meniť nebudeme. Vopred Ďakujem
Odpovedať
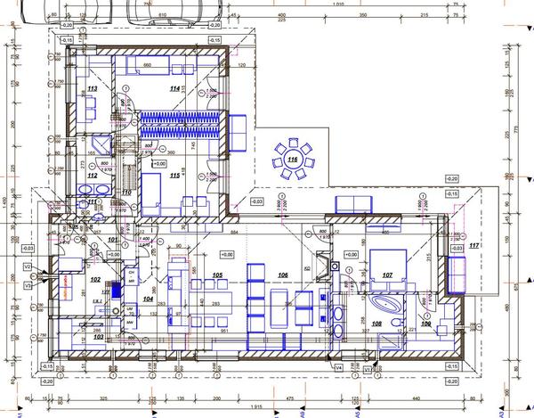
detske sa mi zdaju dost male, btw. co ma predstavovat 113? 109 je zrejme satnik, ale je tam nakresleny stol so stolickou? nechceli ste nejake umyvadlo/drez alebo vylevku v technickej na "spinave" umyvanie, oplachovanie, atd.? ako bude oddelena varna/drezova zona od jedalenskeho stolu?
Odpovedať
@horsey Ahoj Dakujem za pripomienky. Detske Izby su velke 14,5m2 a 15m2 - nie su velke, no z mojho pohľadu akurát. 113 - je taka mala pracovna. 109 - je satnik, s tym ze tam chcela moja polovicka maly stolik zo zrkadlom a s malovatkami, vseliakými sererpetickami na tvar :) CO by som prenu nespravil :) s tým umývadlom v technickej miestnosti to je dobry napad ! nato som ani nemyslel. drezova zona by mala byt oddelena od jedálenskeho stolu takým zvýšeným pultom. Resp. Ak by si mal nejaky lepsi nápad kludne mi daj vediet,rad si dam poradit.
Odpovedať
vela umyvadiel, chyba wc pre navstevy, vo vstupe mala skrina, tam date tak topanky. ten toaletny stolik, neskor date do spalne a v satniku pridate na vesiakoch.
Odpovedať
@atlaska Dakujem za pripomienky. WC pre navstevy je izba 111. Skrina vo vstupe je rovnako velka ako mame teraz ( 4 ludia ) stačí nám to. Toaletny stolik by som dal aj ja do spalne, resp. by som ho zrusil uplne ( sak mame kupelnu), ale polovička je tvrdohlava :) :)
Odpovedať
To je wc deti ak dobre vidim a je v casti detskych izieb. Tu skrinu otvorenu by som chcela vidiet,kolko bund, mikin, kabeliek,,ruksakov, prilieb,ciapok,salov,rukavic, lyziarskeho oblecenia, topanok, dazdnikov, sprejov a cisticov na topanky, papuc tam das? ten toaletny stolik vizbe bez okna, medzi vysokymi policami je fakt zle riesenie, ale clovek sa uci na vlastnych chybach.
Odpovedať
@atlaska Ano WC pre deti je aj WC pre navstevy. nebudem predsa robit zvlast WC pre navstevy :D navsteva je u nas raz za cas nie kazdy den ! Nemame vsetko v jednej skriny. Zimne veci mame v lete inde (napr. na povale) a zas opacne ked je zima tak opacne. Ale ano niekomu to moze byt malo. My sme tak nauceny a fungujeme tak bez problemov. Toaletny stolik - na maľovanie nepotrebujes mat okno, je aj svetlo. PS. videl som to vo viacerych domoch a vobec to nevyzeralo zle prave naopak. Ale ako som pisal ja by som to tam vobec nedal.
Odpovedať
@onats Presne som ccela napísať to isté čo @atlaska oľadom toho kozmetického stolíka v šatníku. Už manželku vidím ako sa tam ez okna medzi skriňami maluje ;-) A tiež sa mi zdá predsieň maličká a málo úložného priestoru. Ked vezmeš do úvahy ešte aj 4 dvere ... no neviem. Tam by som zvažovala každý centimeter. To wcko pre návštevy podľa mňa stačí spoločné s detskými, pokial nie je v kúpelni (akože nie je). Pokial teda nie ste nejako extra spoločenská rodina že sa u vás návštevy nestriedajú medzi dverami. Ja by som dalšie určite tiež nedávala. To už teda maximálne by sa dalo dať ešte jedno wcko do tej detskej kúpelne. A toto by zostalo výlučne pre dennú zonu, keby ste veľmi chceli, nič viac by som ja osobne neriešila.
Odpovedať
projekt sa mi páči mám iba pár pripomienok: veľkosť spálne - tá mi príde dosť úzka - 3,15 m je málo na posteľ a komodu - ak rátaš posteľ 2,1 m a komodu 0,5 m - tak ti zostane 0,5 m na prechod -to je nepraktické - najmä ak bude niekto vyberať veci z komody - tak neprejdete - tam by som ešte uvažoval - min. tých 3,4 m by som dal - máme to aj my a príde mi to tak-akurát. Ostatné veci sú riešené podľa mňa veľmi vkusne a dobre - možno v kuchyni by som radšej urobil ostrov prístupný resp. prechodný z každej strany - z toho výkresu mi nie je jasné či je to poloostrov alebo ostrov :). Ostatné pripomienky ľudí ber s rezervou - WC pre hostí??? to už kto robí v dome WC pre hostí -resp. návštevu? - no neviem, ale toto mi príde dosť snobské a zbytočné - dve toalety na taký dom bohato stačia, nakoľko máš súkromnú kúpelňu a samostatnú kúpelňu - takže de-facto tri kúpelky - čo je nadlimit. Okrem iného by som možno - ale to je vec vkusu vyriešil trochu inak rodičovský apartmán - teda jeho časť so šatníkom a kúpelkou - my sme napr. nechceli aby boli oddelené ale aby bol šatník prestupný - najmä z praktického hľadiska - keď sa človek ráno osprchuje - hneď sa oblečie... - jedny dvere v spálni namiesto dvoch, atď - ale každý má iné priority a podmienky, takže to nechám na tebe inak sa mi dom páči - bude krásny svetlý, a zo sedačky uvidíš na terasu a záhradu - čo je veľké plus a málo-kto takto rozumne uvažuje. Držím palce pri výstavbe.
Odpovedať
napíšem len dve veci, ktoré by mne vadili. 1. načo rohová vaňa ?? zaberá zbytočne veľa priestoru.. a hlavne sa k tým ostatným komponentom nehodí. ja by som stavila na obyčajnú pravouhlú. Sprchový kút bude hranatá dizajnovka, tak sa k nej hodí viac hranatá vaňa :) 2. hlavná terasa - môže byť väčšia, kvôli rodinným akciám /nech sa dá rozložiť stôl aj pre 12 osôb. no tá pri spálni mi príde úplne zbytočná. chodníček k hlavnej terase je v pohode, ale neviem si predstaviť, že si tam idete vypiť kávu a pod..
Odpovedať
Profilova fotka
@fakteass prave ta rohova vana tam zaberie menej priestoru :). Ked das rovnaku "pravouhlu" tak bude dlhsia, zaberie priestor smerom k umyvadlam, pricom vznikne priestor pri WC, ktory bude nevyuzitelny.
Odpovedať
1
Na pridanie príspevku sa musíte prihlásiť.
Presunutím fotiek môžete zmeniť ich poradie

Nenašli ste čo ste hľadali?