Návrh prípojok

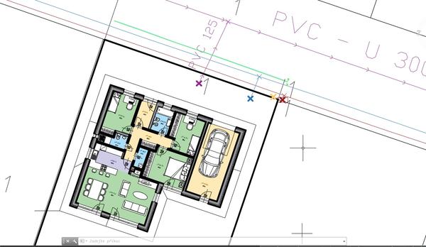
Dobrý deň, prosím Vás o názor kadiaľ by ste viedli prípojky k domu viď nákres. Hrubšie farebné krížiky sú body napojenia na už vyvedené prípojky na môj pozemok z hlavnej siete. Fialová - kanalizácia Modrá - vodovod Červená - Elektro Žltá - plyn Mne to vychádza tak, že sa asi križovaniu prípojok nevyhnem... Budem vďačný za akékoľvek postrehy. Tí čo ma budú hneď posielať za projektantom odkazujem vopred, že za ním pôjdem ale chcem si to všetko najprv vyriešiť a návrh urobiť sám. Ďakujem
Odpovedať
@miroslav_kezmarok zabudol si nakreslit kde mas vyvedene pripojky ty, dom uz stoji alebo sa len pojde stavat? Ale podla mna to je jedno ked sa aj budu krizit, oznacis foliami a je to bez problemov
Odpovedať
Dom sa len pôjde stavať. Prípojky sú vyvedené tak ako som naznačil krížikmi
Odpovedať
Nikto neporadí? |-|
Odpovedať
mohlo by to byť nejako takto? :-|
Odpovedať
Krizovat sa sa mozu pripojky preco nie. Voda cca 1.20 a elektrika cca 1.0 meter. Kde je problem vsetko sa patricne oznaci a ulozi do zeme a je hotovo
Odpovedať
@miroslav_kezmarok pripojky sa krizovat mozu, sor by si mal rozmyslat nad technologiami, ak chces solarny ohrev alebo rekuperaciu treba ti vacsiu technicku mistnost, pivnicu, podkrovie.
Odpovedať
1
Na pridanie príspevku sa musíte prihlásiť.
Presunutím fotiek môžete zmeniť ich poradie

Nenašli ste čo ste hľadali?