Hrúbka OSB na pochôdzny krov

Dobrý deň. Je tu síce viacero podobných diskusií, ale rád by som sa spýtal konkrétne na môj prípad ohľadom pochôdzneho krovu. Plocha krovu je 180 štvorcov, pričom pochôdznu časť mám v strednej časti pôdorysu, o ploche 30m2. Mám drevený strop, drevené trámy pre pochôdznu časť majú rozpon 5200mm, prierez 180x100mm a ukladané sú v osových vzdialenostiach 600mm od seba. Sú navrhnuté na permanentnú záťaž 170kg na meter. Môžem použiť nasledovnú skadbu pochôdznej časti? : 1. na trámy priečne poukladám dosky 2,5m vo vzdialenostiach 1m od seba 2. na dosky priečne poukladám OSB dosky 20mm (ostrá hrana) 3. preklincujem OSB cez dosky až do trámov Ďakujem za reakcie
Odpovedať
Profilova fotka
Osobne si myslím, že lepším riešením budú obyčajné foršne 5 cm hrubé (nosnosť vyššia ako požadovaných 170 kg na m2 a cena niekde na úrovni 300 Eur). Rovnako by sa dala použiť skladba hranolčeky 6x6 naprieč hranolov v rozostupe 40 cm a na to 23 mm OSB dosku.
Odpovedať
Profilova fotka
Tiež by som sa prikláňal k stevoskovi. Lepšie a bez rôznych rizík. O.i. aj z toho dôvodu, že tú pochôdznu vrstvu budeš mať akiste položenú na zateplenom strope obytného podlažia. A tu je taký malý problém, že OSB doska pôsobí ako parobrzda a teda ak dáš pod ňu minerálnu vlnu, tej to nemusí robiť 2 x dobre, pretože tá by sa mala permanentne odvetrávať... 8-)
Odpovedať
Profilova fotka
Suhlas s chalanmi, tiez sme dali obycajne laty, jednak vetranie izolacie a na druhom mieste financna stranka.
Odpovedať
Diskusia pokračuje po 3 rokoch
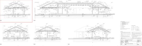
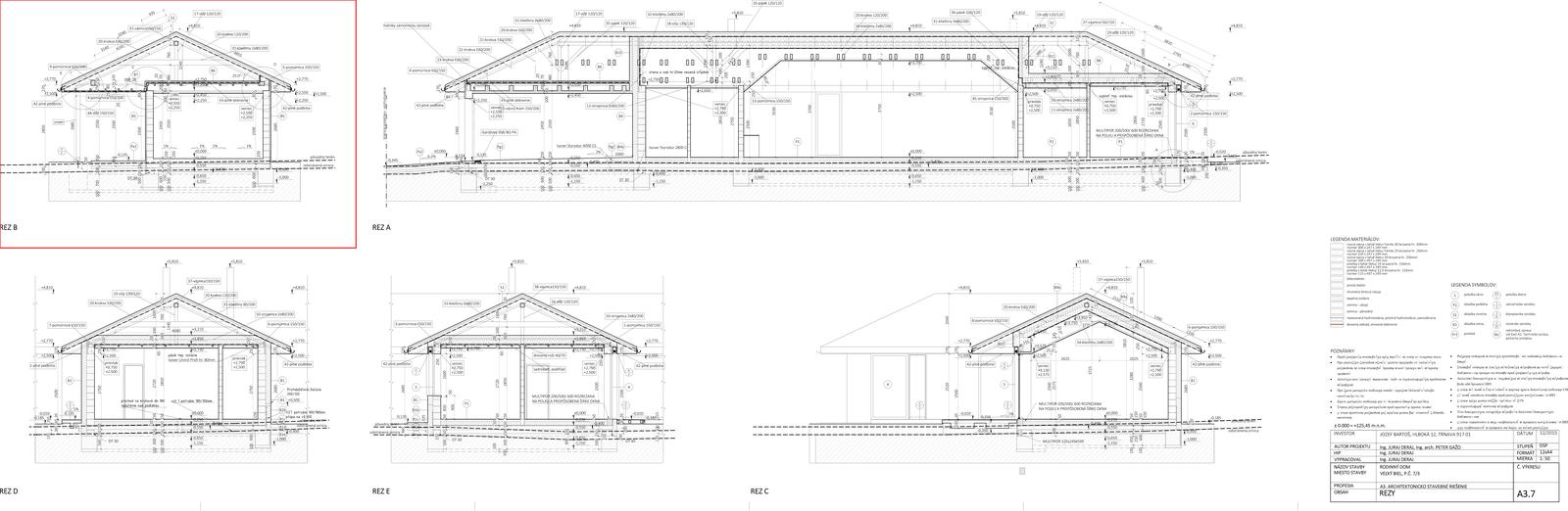
Dobry vecer. Rad by som Vas skusenejsich poprosil o radu. Nemam v projekte uvazovany pochodzny rost nad garazou, ale rad by som ho tam dal, apson na par veci, s padacimi schodmi. V prilohe zasielam rez a krov. Kliestiny mam v tych miestach 1m od seba. Neviem ako to vyriesit z hladiska unosnosti a z hladiska izolacie. Viem ze OSB=parozabrana,ale keby som pouzil na dreveny krov a na kliestiny iba nabil 25mm OSB a pod to dal nie vlnu ale EPS,alebo styrodur? Dakujem za rady.
Odpovedať

Odpovedať
1
Na pridanie príspevku sa musíte prihlásiť.
Presunutím fotiek môžete zmeniť ich poradie

Nenašli ste čo ste hľadali?