Prosim poradte ako zariadit malicku obyvacku

Profilova fotka
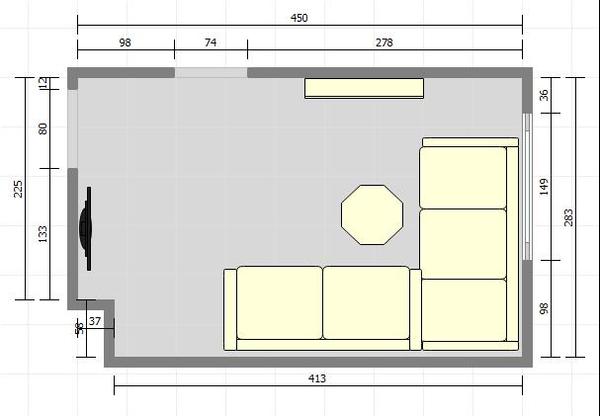
Ahojte, trapime sa trosinku s tym, ako si poradit s malickou obyvackou. Rozmery a rozlozenie miestnosti prikladam v prilohe. Hned pri dverach by mala byt telka (vo vyske na stene), pod oknom sedacka. Tu sa trapime s velkostou sedacky - v podstate by sme chceli vacsiu ako je aj na obrazku, ale zaroven nam zaberie v podstate vacsinu priestoru, tak sa obavame, ako by sme sa tam citili.... na dlhsej strane, kde su dvere (do spalne) si predstavujeme nejaky velmi nizky nabytok priamo na stene a nad nim biokrb, nic viac... v podstate by v tomto rieseni do obyvacky ani nic ine nevoslo.... mozem poprosit skusenejsich, co si o tomto rieseni myslite? Ocenim kazdy pohlad "zvon", dakujem velmi pekne :)
Odpovedať
@1sunny podla mna na velkosti gauca "nesetrite" ak sa tam chcete citit pohodlne a prijemne a ma si tam posediet aj navsteva... nabytku by som dala urcite nevyhnutne minimum,... mozno by som porozmyslala ci by nebolo vhodnejsie gauc prehodit na tu spalnovu stenu a TV dat oproti, nabytok ku dveram tam kde je TV a nieco nizke pod TV a vedla...
Odpovedať
Profilova fotka
@mirkita Povodny plan bol podobny - na stenu, kde je spalna mala ist telka a oproti gauc... len sa nam zdalo, ze budeme sediet blizko telky... tak sme prisli s napadom, ze telku dame na stenu k dveram.... prave ten gauc nas trapi najviac... sme typy, co si pred telku radi lahnu a maju pohodlie.... takze o nejakej malickej dvojsedacke a kreslach ani neuvazujeme.... dokonca sme si nasli gauc, ktory sa nam naozaj velmi velmi paci, len ma rozmer 300 x 200, tak sa obavame, ze nam zaberie polovicu izby.... fakt ale je, ze v nej planujeme naozaj len gauc, telku, biokrb a uplne minimum nabytku....
Odpovedať
@1sunny urcite potom chodte do velkeho gauca, vsak je to pre vas ;-) a nakoniec mozete spravit aj to ze TV nezavesite hned na stenu ale poskusate par dni/tyzdnov ako sa vam najlepsie na nu pozera... je pravda ze z necelych 3 m sa na velku TV asi horsie pozera - ak je obrovska tam by mala byt dalej, ale to si musite spravit podla seba
Odpovedať
Profilova fotka
@mirkita Dakujem velmi pekne za nazor :) Prave ze si chceme trosku setrit oci a nedavat telku blizko... aj ked toto mozno nebude uplne idealne riesenie, ale - aspon na oci setrne :) a teda - aj pre nas pohodlnejsie ;) Len sa nejako neviem rozhodnut s tou velkostou v priestore.... Najhorsie je, ked uz clovek uvidi v obchode nieco, co sa mu fakt veeelmi paci a potom uz nehladi na ine veci :D
Odpovedať
@1sunny Váš pôvodný návrh bol podla mňa dobrý ... Telku by som dal na stenu, kde je spálňa a gauč by som dal na stenu oproti, kde sa úplne v pohode zmestí aj ten 300 x 200 CM ... Od TV budete približne 2,5 metra, čo nie je najviac, no rozhodne si nemyslím, že by to bolo málo :) Ak už chcete biokrb, dal by som ho tam, kde teraz plánujete telku ...
Odpovedať
@1sunny podla mna, ak mate aj ine priestory v dome - napr. jedalen, pracovna a pod, v obyvacke naozaj moze byt aj velky gauc a netreba tam nic ine cpat... my mame v byte obyvacku 4x4 a mne pride dostatocne velka, mame tu gauc 2x3 m, maly pracovny priestor s PC, TV, skrinky, obrovsku komodu, stolik a este aj deti tu maju dost priestoru na hranie, aj navstevy tu posedia... ;-) ale v dome to bude vzdusnejsie, lebo budeme mat otvoreny priestor, tak aj gauc by sme chceli vacsi, tiez si tu radi polezime ;-)
Odpovedať
Profilova fotka
@lubk0 Dakujem za nazor :) Toto riesenie by este teoreticky bolo mozne, akurat uz by sme museli zapojenie telky riesit predlzovackami... uz mame na komplet spravenu elektriku a vsetky zasuvky pre telku su tam, ako som zakreslila... ale - riesitelne to este stale takto je... musime sa rychle rozhodnut.... ak by sme chceli este ziskat lepsiu cenu na gauc, ktory sme si vysnivali :)
Odpovedať
Profilova fotka
@mirkita Ano, ano, jedalen je spojena s kuchynou a miesto nam nechyba... pracovna ma tiez svoje miesto... obyvacka by mala sluzit vyslovene na relax a teda - navstevy :) Sme zatial len my dvaja :) Na jednej strane mam pocit, ze to bude oki, na druhej obavu, ci to nebude vyzerat "smiesne", ked tam bude taky velky gauc :D
Odpovedať
@1sunny Ja by som na reči iných nedával :) Ja sám mám gauč 3,25 x 2 m a menší by som už nechcel ... 2 ja sa tam rozložíme viac ako královsky a keď príde návšteva, 6 ludí sedí celkom v pohode :) Jasné, že by sa tam hodila viac ultramoderná minimalistická sedačka ... Ale to už by bolo na úkor pohodlia :)
Odpovedať
Na tuto vzdialenost potrebujes velku TV, aby tam nevyzerala smiesne ako obor. Sedacku kludne daj az po stenu co susedi so spalnou. Biokrb si premysli, smrdi to, budes vkuse vetrat.
Odpovedať
Profilova fotka
@lubk0 :-) Podobne je to u nas - pohodlne a ako pises - kralovske by bolo mat gauc 3 x 2 m a maximalna spokojnost :-) Pre pohlad dizajnerov, jednoznacne minimalizmus.... ale - pohodlie by sa stratilo..
Odpovedať
Profilova fotka
@atlaska Ano, mame predstavu mat velku telku :) Chceli sme povodne sedacku az po stenu co susedi so spalnou, len sme si nie isti, ci urobime dobre, ked si takto zakryjeme cely radiator, ktory je pod oknom.... inak by bolo podla mna idealne dat ju na celu sirku....
Odpovedať
Minimalisticka moderna sedacka nemoze byt pohodlna? Ved na obr. mas 3x2m sedacku.
Odpovedať
Profilova fotka
@atlaska Urcite moze byt pohodlna, len moj priatel si predstavuje relativne velke letisko, takze preto hladame taku 3 x 2 m :) Pacia sa mi aj male pohovky, velmi, su krasne.... a na navstevach aj velmi prijemne a pohodove... len ked na tom chceme lezat, tak hladame cosi rozmeru ako mam na obrazku :) A k tomu biokrbu - je pravda, ze nepoznam vela ludi, ktori ho maju.... jedni sa stazuju na smrad, druhi vobec.... ale - rada si vypocujem dalsi nazor :)
Odpovedať
mozem poprosit o radu aj ja? tiez ideme konecne zariadovat obyvacku.teta ideme menit-z obyvacky spravime detsku izbu a z detskej obyvacku. izba je obdlznik-2,82 x 4,91m. na tej kratsej stene je okno,pod nim radiator a tam by sme cheli dat na celu stenu sedacku do tvaru U alebo L. este nevieme ako nam to vyjde. stenu oproti chceme telku,jednu skrinku a komodu. na dlhsej stene ,kde planujeme TV su dvere na chodbu. nemam to nakreslene,lebo sa v tom nevyznam.neviem si najst planovac... myslite,ze by to mohlo byt takto dobre.TV mame velky,myslim,ze uhlopriecka 101cm, tak by to nemalo byt daleko cez celu izbu. ci ano? budem rada ak mi niekto poradite.popripade vie to niekto nakreslit? budem velmi vdacna. @mirkita @lubk0 @atlaska
Odpovedať
@mayusik Veď ale v tom Vašom popise si odporujete ! Hovoríte o obdĺžniku 282 x 491 cm. Teda predpokladám, že kratšia stena je 282 cm a dlhšia je 491 cm. Citujem Vás : "na tej kratsej stene je okno,pod nim radiator a tam by sme cheli dat na celu stenu sedacku do tvaru U alebo L" = to znamená, že sadačka má ísť na stenu 282 cm širokú. Ďalej píšte: "stenu oproti chceme telku,jednu skrinku a komodu." ... Oproti je podľa mňa stena oproti, tj ďalšia krátka 282 cm. Následne píšete: "a dlhsej stene ,kde planujeme TV su dvere na chodbu". Tak kde vlastne plánujete TV ? Na kratsej ci dlhsej stene ? Neviete zobrat kus papiera, nakresliť ako vyzerá izba, kde to chcete, cvaknúť mobilom a vložiť sem obrázok ? Alebo to nakresliť v PC v skicári ?
Odpovedať
Článok sa načítava...
@lubk0 ano dobre ste to pochopil,na tu kratsiu stenu pod okno chceme sedacku a oproti TV. ospravedlnujem sa,ak som zle napisala. dvere su na dlhsej stene. kôli tomu necheme dat sedacku na dlhsiu stenu a oproti TV,lebo by to bolo velmi blizko .
Odpovedať
1
Na pridanie príspevku sa musíte prihlásiť.
Presunutím fotiek môžete zmeniť ich poradie

Nenašli ste čo ste hľadali?