Máte skúsenosti s betónovým stĺpom v obvodovom murive?

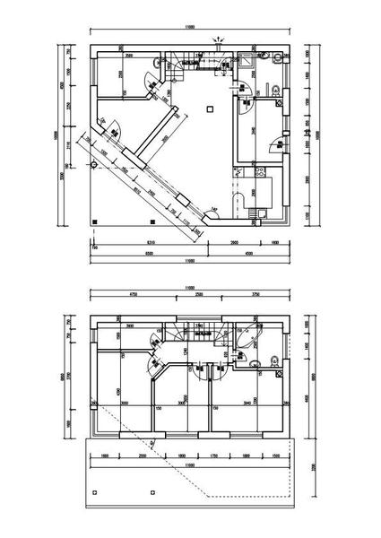
Chcem vás poprosiť o informáciu príp. fotografie ako ste do obvodového muriva zakomponovali betonový stĺp-múr (vizuálne si to predstaviť viem ale ako je to v praxi nie)..statik nám ho navrhol do múru na prízemí a to z dôvodu aby bola spevnená časť prechodu z pevnej deky na voľnú ktorá je podopretá dalším stĺpom..neviem si predstaviť ako sa to preväzuje s murivom v našom prípade z tehlou (mám obavu z prípadného puknutia v spojoch)..a ako to potom treba ošetriť kvôli tepelnému mostu..za všetky rady a informácie dakujem.. Betónový stĺp je na obrázku zakreslený na tej šikmej časti medzi vchodom a francúzskym oknom kde sú priečky v tvare T.
Odpovedať
http://www.modrastrecha.sk/blog/rhodo...
Odpovedať
Profilova fotka
@zuzinka0101 veľmi pekný dom, ale náročný na riešenie. Nečakajte tu riešenie detailov, ktoré musí riešiť projektant komplexne. Z prevádzkového hľadiska je pr hornú Oravu problematický. @stowasser tiež veľmi pekný dom, vkusne upravený, dobre urobený, len si myslím, že stál 2x toľko, ako má cenu.
Odpovedať
1
Na pridanie príspevku sa musíte prihlásiť.
Presunutím fotiek môžete zmeniť ich poradie

Nenašli ste čo ste hľadali?