Ohodnotte zmenu dispozicie bytu

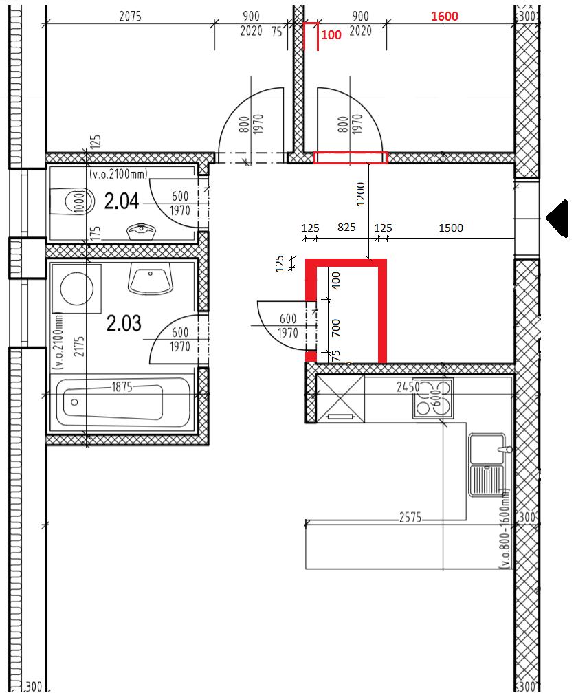
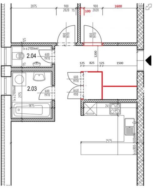
Zvazujem kupu bytu v novostavbe, ktorej vystavba prave prebieha. Nenosne priecky este nie su vymurovane, tym padom by som vedel urobit par uprav - 1, v izbe pri vchode posunut dvere blizsie k stene, aby sa za dverami nerobilo hluche miesto. 2, zmensit komoru a vytvorit v zadveri miesto pre skrine/botnik... Na prvom obrazku je povodny dispozicia. Na druhom a tretiom obrazku je upravena pozicia dveri do izby + zmensena komora + zvacsene zadverie. V druhom obrazku som pocital s prieckami pre komoru hrubky 75mm. V tretiom je varianta s hrubkou priecok 125mm. A teraz by som potreboval vas nazor na: a) nevidite ziadny problem v presunuti dveri do izby, tak ako je to na druhom a tretiom obrazku ? b) bude pre komoru stacit priecka hrubky 75mm alebo radsej 125mm ? (na tieto priecky nebudem asi nic vesat)
Odpovedať
Profilova fotka
V tom, že ich poprehadzuješ nejaký problém nevidím, no radšej by som obetoval tých pár cm a použil priečky v šírke 125cm. Neviem, no mohli by stačiť aj tie 75 ale no ísť cestou istoty, je podľa mňa tá správna voľba
Odpovedať
Profilova fotka
Umiestnenie dveri je podla mna v pohode, pri tych jednych to v podstate ani nemas taku velku zmenu a co sa tyka tych druhych tak ja osobne nie som zastancom toho aby sa dvere otvarali do chodbby ale ty inu moznost nemas takze pohoda.. A pokial si si uz teraz isty, ze tam nic vesat nebudes tak si daj aj 75ky..
Odpovedať
bud samostatný
Odpovedať
@matusko48 @bohuslavs a co hovorite na sirku chodby 1,2 metra ? bude to v pohode ?
Odpovedať
115 kompromis
Odpovedať
Profilova fotka
Posun dverí do izby je dobrý nápad, v pohode.Co sa tyka zväčšenia zadveria, treba sa len zmieriť s faktom,že komora bude fakt mala, ale botník v zadveria fakt nie je inak kam dať.Priecky 125mm kľudne môžeš vešať čo chcete, ak nechceš vešať tak 75mm staci, len potom pozor napr. aby nebol problém so zarubnou na tenkú stenu a tiež či sa stavbárom oplatí kvôli komore kupovať ďalší typ tehál...? Chodba 1200mm je úplný štandardy, dá sa ísť aj do 1100mm menej už ale radšej nie
Odpovedať
co sa tyka velkosti komory, povodna sice bola vacsia ale velmi uzka. A nakolko je umiestnena v strede bytu, nebude v nej extra chlad, cize urcite potraviny tam nebudu moct ist, tak hadam bude stacit :-) oblozkovu zarubnu pre 75mm stenu myslim nebude problem zohnat. Stavebnika sa este budem musiet spytat ci s tym nebude problem.
Odpovedať
Myslím, že je dobrý nápad zmenšiť komoru, aspoň na chodbe vznikne potrebný priestor, ktorý bezpochyby odceníte, najmä v zime, keď sa toho oblečenia nazháňa a ozaj je potrebné ho nikam vešať ja osobne som za. Komora by mohla byť fajn napríklad na zásoby cukru, múky a pod ;-)
Odpovedať
ja súhlasím s tým, že zmenšenie komory a zväčšenie chodby je dobrý ťah. a posunutie dverí do miestností je tiež fajn, tam nevidím žiaden problém
Odpovedať
@peter700 osobne botník (čiastočne aj ako sklad) by som riešila oddelenou priečkou a dverami z chodby pri vstupe (dnes by som botník v našom RD riešila takto) :) a do komory by som vstup riešila od kuchyne - linky, alebo možno by stálo za to komoru umiestniť k obvodovému múru vpravo (aby bola chladnejšia aj vetranie cez obvodový múr by sa dal riešiť) a kuchynskú linku skúsiť preriešiť..
Odpovedať
Toto je byt v novej bytovke vo Varine, vsak? Kupil si to nakoniec?
Odpovedať
@peter700 uplne ti budu stacit priecky o hrubke 100mm :) Tu komoru chces preco vlastne murovanu ??? nestaci ked to budes mat z dreva a rovno aj satnik-botnik ako celok ? :-D
Odpovedať
@tadashi áno presne tak.
Odpovedať
@quakdafak no veru , neviem si predstavit ze by som mal drevenu priecku v byte :-) Komora je uz vymurovana z 12cm priecok, takze vdaka vsetkym za nazor ;-)
Odpovedať
1
Na pridanie príspevku sa musíte prihlásiť.
Presunutím fotiek môžete zmeniť ich poradie

Nenašli ste čo ste hľadali?