Vedenie spalinovej cesty plznoveho kotla vo fasade

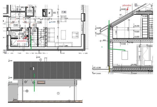
Zdravim Vas, Prosim o nazor na trasu odtahu spalin - koaxialnej rury 125/80 od plynoveho kondenzacneho kotla - z tech. miestnosti cez stenu vonku a vo fasadnom zatepleni nad strechu. Samozrejme vo fasade okolo rury bu bola pouzita nehorlava izolacia. V projekte je odtah vedeny v bet. tvarniciach podla obrazka. Nova trasa je zelenou.
Odpovedať
Ten povodny projekt asi nepocital konkretne s kondenzacnym kotlom, preto je "pre istotu" vyvedeny do komina. Ak vies s istototou, ze pouzijes kondenzacny kotol, tak by bolo dobre ho umiestnit blizsie k obvodovej stene a vyduch rovno cez stenu (nie strechu) von.
Odpovedať
Profilova fotka
@sucky1 - a co sa deje so starym kominom?
Odpovedať
@warm @mgx V dome budu kominy dva. Jeden na odvod spalin z krbu (v strede domu ozn. KV) a druhy na odvod spalin z kondenzacneho kotla. Odvod z KK chcem takto ulahcit cenovo aj pracne, inak, podla projektu, by som mal tahat nevzhladny komin cez dve kupelne.
Odpovedať
@warm Dnes už v novostavbách nemôžeš vyviesť dymovod len cez stenu, musí ísť nad strechu. @sucky1 Ku koncentrickému dymovodu netreba nehorľavý materiál, lebo vonkajšia rúra je nasávanie vzduchu z vonku do kotla a výfuk je vnútornou rúrou. Problém by som videl v mieste dymovodu v znížení hrúbky izolácie na fasáde... Ak sa dá, ťahať ho vnútrom domu, kľudne aj v murive.
Odpovedať
@warm az na to, ze s tzv. turbo verziou cez stenu od 1.1.2020 neskolauduje ziadnu novotavbu :) vsetky nove projekty musia mat komin hore cez strechu!!! nahrada starych kotlov stale moze byt aj cez stenu, ale novostavby nie!
Odpovedať
@petermu @sucky1 No a tu ide o novostavbu, alebo starostavbu?
Odpovedať
@sucky1 teraz sa zamyslime, urcite chcete mat super izolovany dom, len do samotneho zateplenia to nezasijete, ak ano , po case bude presvitat trasa komina, to je na beton… mozem poslat foto ako to bude chodim okolo takej budovy denne :) . ked to budete zasekavat do obvodoveho muriva rozbijete polovicu a to je tiez hlupost. Riesenie? nechajte to presne ako to mate teraz v projekte!
Odpovedať
@warm novostavbu, SP vydane r 2018.
Odpovedať
@sucky1 Potom asi najjednoduchsie (najmenej pracne) je viest to cele vonkajskom nad strechu a po kolaudacii to doriesit. :-)
Odpovedať
Profilova fotka
@sucky1 Pravidla vyustenia upravuje: Príloha č. 9 k vyhláške č. 410/2012 Z. z. nasl. 270/2014 a dalej 252/2016 POŽIADAVKY ZABEZPEČENIA ROZPTYLU EMISIÍ ZNEČISŤUJÚCICH LÁTOK ktora upravuje: najmensiu vysku vyustenia nad terenom min 4m na fasadu je mozne umiestnit vyustenie na fasadu do 12 kW s prirodzenym odvodom spalin a bez nuteneho privodu vzduchu (gamatky) a zariadenia na spaľovanie zemného plynu a skvapalnených uhľovodíkových plynov s MTP < 35 kW, ak ide o budovy s vydaným povolením do 31. decembra 2003, ktoré nemali riešený odvod spalín nad strechu budovy, a pri rekonštrukcii nemožno zo stavebnotechnických alebo požiarno-bezpečnostných dôvodov riešiť odvod spalín nad strechu, ak budú splnené osobitné podmienky zverejnené vo vestníku. co urcite nie je tento pripad takze len cez fasadu nie. Aak bavime o trase vedenia, tak idete oslabit nosnu stenu pre schodisko (na polovicu = 250 - 125 mm vonkajsi priemer dymovodu min.) a zmensite si izolacnu vrstvu, ale to tu uz bolo spomenute. Tiez by som sa zamyslel nad tym, ze budete potrebovat cistiaci a revizny otvor. Bude ho chciet kominar-revizny technik a na kolene nad kotlom mu nebude postacovat. No a potom teda to mozete tahat po fasade, ale nemyslim, ze sa vam to bude pacit. Esteticky a funkcne, hlavne v zimnom obdobi, kedy v exterieri moze dojst k zamrzaniu v patnom kolene
Odpovedať
@jan45 @daralbajda @gkrivanek co si vy myslite o takejto realizacii?
Odpovedať
@schiedel_maros_plsko tie 4 metre nad terénom sa rozumie aj rekonštrukcia s kond.kotlom? že by ústila rúra z fasády niekde na úrovni4-5m keď kotol je na prízemí (rúra v zateplení)? Nenašiel som nikde konkrétnu odpoved ako to môže/nemôže byť
Odpovedať
Profilova fotka
@cotibebemore ak podlieha rekonstrukcia stavby stavebnemu konaniu, teda ste poziadali alebo nahlasili stavebnemu uradu svoju cinnost, tak je vasou povinnostou, a projektanta navrhnut, zrealizovat stavbu v zmysle platnych predpisov a noriem. Dana vyhlaska je platna, teda je povinnost ju dodrzat. Ak rekonstruujete na hulvata, teda po slovensky bez ohladu na predpisy tak sa vas pochopitelne predpisy netykaju. Ak vyustite zo steny v deklarovanej vyske nad terenom plati pre vas este aj Vestnik MZP SR o odstupoch od stavebnych konstrukcii. Pri vyske 4 m nad teren ste uz bud nad strechou( a riadite sa napr. 15287-1) alebo v tesnej blizkosti konstrukcie strechy zospodu a musite prijimat "dodatocne" opatrenia. Lebo riesit take vyustenie na stitovej casti ... no neviem neviem ... A vyustenie nad strechou tiez nemusi byt dostatocne vysoko pre stresnu krytinu. Teda aj rekonstruovat treba vediet...
Odpovedať
Profilova fotka
@sucky1 na to je schiedel_maros_plsko
Odpovedať
@schiedel_maros_plsko toto su ine extremy:))
Odpovedať
@sucky1 napiste mi hrubku izolacie. Ale za mna v poriadku robime to pri tychto typoch domov bezne ked to neide cez poschodie. Otazka je hrubka izolacie lebo Vam to bude v urcitych poveternostnych podmienkach presvitat.
Odpovedať
Článok sa načítava...
@gkrivanek hrubka izolacie je projektovana 20 cm EPS , este som rozmyslal rozdelit nasavanie a vyfuk z Kk. Nasavanie kratkou rurou z fasady a vyfuk nad strechu. Na zateplenie fasady v trase vyfuku by som pouzil min. vatu s presahom. Este aj revizny otvor v kolene vo fasade (mala skrinka) aby to bolo kontrolovatelne.
Odpovedať
@gkrivanek co myslite bude druhy revizny otvor potrebny?
Odpovedať
@sucky1 my davame len jeden a to hned nad kotol inak som nikdy nepochopil co chcu páni kominari kontrolovat na kondenzacnom komine so zrkadlom za 2 Eura. Ked to my servisni technici kontrolujeme s pristrojom za 2000€. Co uz zakon je zakon.
Odpovedať
Diskusia pokračuje po 8 mesiacoch
Zdravím, riešim podobný problém. Rekonštrukcia RD. KK bude zavesený na obvodovej stene, asi 1m nad terénom bude vyústenie von a teraz sa rozhodnúť. Po podbitie strechy to je od kolena rovno hore cca 5m. Vedľa trasy odkúrenia je iba jedno okno zo schodiska. Zateplenie 15cm, ešte by šlo vyseknúť brizolit 3-5cm a takto schovať do zateplenia. Preferujem schovať komín, pretože plánujem na tejto strane domu prilepiť o fasádu prístrešok vo výške 3m. Alebo ušetriť na priemere odkúrenia a mať hrubšiu izoláciu - hore potiahnuť v izolácii nobasilom iba plastovú rúru na spaliny a nasávanie riešiť dole v päte komína? Aké má nevýhody oddelenie spalinovej a nasávacej rúry oproti súosému vedeniu? Iba nižšia efektivita kotla...?
Odpovedať
@henry_sk rozdelit komin a pojdes v izolacii 60 kou rurou. Nic to na efektivite neubere kotlu. V tej izolacii nobasil by to v podstate nemalo preco kondenzovat , nech sa este vyjadria ostatny ci
Odpovedať
@gkrivanek No rátal som s tým, že nejaké % účinnosti je zo súosého vedenia.
Odpovedať
@henry_sk moderne zariadenia, ti nastavuju otacky ventilatora podla tlaku ,teplote atd atd. To je zanedbatelne ci tam mas 1 alebo 3 kolena
Odpovedať
@gkrivanek Nejde o kolena, ale rozdiel suosé vedenie vs. rozdelené vedenie. Na cca 6m s 3 kolenami...
Odpovedať
Diskusia pokračuje po 3 rokoch

Odpoveď na príspevok od henry_sk:

Zdravím, riešim podobný problém. Rekonštrukcia R…
@henry_sk Ako si to prisim ta vyriesil nakoniec?
Odpovedať
1
Na pridanie príspevku sa musíte prihlásiť.
Presunutím fotiek môžete zmeniť ich poradie

Nenašli ste čo ste hľadali?