"Projket" repkuperácie pre RD

Dobrý deň, chcel by som sa vás popýtať (vaše názory, pripomienky, kritiku,...) ohľadom nášho rozmiestnenia vstupov/ odťahov rekuperácie v jednotlivých izbách . ďalej by ma zaujímalo či sa odťahy umiestňujú hore ( pri strope ) alebo na podlahu. Resp. aké je optimálne riešenie. ďakujem
Odpovedať
tie sipky su kazdy oddtah a vpust?
Odpovedať
@atlaska Ahoj ano
Odpovedať
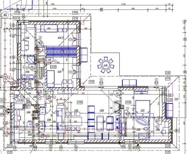
Pani aký máte nato názor @janvirostko @jozopan @medtop @asex Toto mám v rámci projektu domu. ďakujem
Odpovedať
Profilova fotka
@onats tento navrh je od profesionala alebo vas ? chyba popis miestnosti .
Odpovedať
@onats uplne som z toho nevycital vsetko, co by som chcel. Pri niektorych miestnostiach neviem ich vyuzitie. Co sa tyka principu vedenia, tak by som to riesil viac s ohladom na znizenie tlakovej straty a na znizenie presluchov medzi izbami. V skratke vela tvaroviek L a T ...a malo Y :-) Vyustky umiestni standardne do stropu/podhladu. Skus aj vysvetlit tento tvoj system. To bude aj teplovzdusne vykurovanie? Preco su v niektorych izbach aj privody aj odtahy?...dokonca blizko pri sebe.
Odpovedať
Profilova fotka
@onats treba mi poslať do mailu plnohodnotný pôdorys a spravím na to vlastný návrh rozvodov... Myslené je to možno dobre, ale dá sa to vysvetlovať rôzne hlavne to kvantum šípok....
Odpovedať
Profilova fotka
Mam taky pocit ze ten co toto navrhoval nema paru o tom ako to ma byt urobene spravne. Chybaju mi tam navrhove objemy vetracieho vzduchu, odtahy a privody rozhodil ako keby vetral nejaku prevadzku kde chce eliminovat prenos pachov, same odbocky do T -cok, nemeni po rozvetveni dimenziu potrubia, atd... Cele zle mi to pride... :-|
Odpovedať
nejak vela toho tam mas, nie som odbornik na reku, iba uzivatel , u nas su v izbach len privody vzduchu a odtahy v kupelniach,weckach, kumbaloch. V obyvke vacsej od tvojej mame jeden velky privod.
Odpovedať
@onats vlastna tvorba? reku veru nie je na svojpomoc, za usetrene mozes neskor doplatit
Odpovedať
@peto99 Ahoj neviem či to myslis ironicky alebo nie :) ale "projektoval" to projektant domu - mame individuálny projekt
Odpovedať
@atlaska Ahoj dik za nazor. Musime to este prepracovat, resp. projektant (robí na realizačný projekt domu), ale ako tu čitam názory iných tak asi sa tomu neorozumie :(
Odpovedať
@abobo Ahoj dakujem za rady. Ono aspon je na výkrese poznámka ze: Jedná sa o ideový nárh rekuperačnej VZT. Predpokladané sú hladké potrubia vedené v izolačnej vrstve stropu. Vstupný nasávací otvor je na zadnej strane domu pod rímsou strechy. Výstupný otvor je predpokladaný nad strechou. Vstupné i výstupné potrubia sú približne vodorovné so spádovaním zo stavby von aby prípadný kondenzát vytekal mimo stavby vo vonkajšom prostredí. Obidve potrubia budú uložené v izolácii.Smerovými výustkami bude Ale asi to teda nieje dobre aj podla nazoru druhých usmerňované množstvo i smer prúdenia vzduchu. Podrobné riešenie bude predmetom dodávateľskej dokumentácie.
Odpovedať
@asex Ahoj poslal som ti správu.
Odpovedať
@janvirostko Ahoj dakujem za postrehy a pripomienky. Ak mam pravdu povedat mam nieco nastudovane o rekuperáciach ale este sa len v tom hladam :) Mame L kovy dom, a aby sme dosiahli energeticku triedu A (alebo A1) vychádza to tak že musime mať aj rekuperáciu. Projektant čo nam robí individuálny projekt tak tam navrhol aj taketo rozvody.
Odpovedať
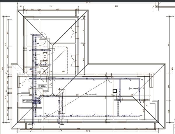
Tu su aj jednotlive izby. P.S. je tam este predchádzajúca verzia rozvodov pre rekuperáciu. Aktuálna verzia je na obrazku hned na zaciatku.
Odpovedať
@onats ten navrh bybol v podobe ako ho nakreslil projektant nefunkcny, resp by rekuperacia mala nizku ucinnost. Projektant ma mozno v softe nejaky automaticky navrh vedenia, ale on s tym urcite nema vela skusenosti, skor mi to pride, ze sa projektanti domov montuju do specializovanych profesii s cielom zarobit na projekte o nieco viac. Umiestnovat v podstate vo vsetkych miestnostiach privod aj vyvod vzduchu nie je spravne a ako bonus je detska izba vpravo hore, tam su rury polmetra od seba-tam konverguje ucinnost rekuperacie k nule.. Investujte par eur do navrhuju od renomovaneho odbornika a investicia sa vam rychlo vrati a bude vam dlhodobo prinasat uzitok.
Odpovedať
Článok sa načítava...
1
Na pridanie príspevku sa musíte prihlásiť.
Presunutím fotiek môžete zmeniť ich poradie

Nenašli ste čo ste hľadali?