Kuchyňa 4x5m

Ahojte..potrebovala by som nestranný názor.Ja tvrdím,že 4x5m je na kuchynu a jedalen malé ,manzel zas tvrdi ze to je velikanske.Kuchyna by bola vo vyklenku,vstup by bol "cez jedáleň"Pokúsim sa pridat foto ak mi to pojde cez mobil
Odpovedať
Hm,ja chcem kuchyňu 3,5x5m,a bez jedálne😊 ale ja nebudem mať horné skrinky,čiže všetko potrebujem dať dolu,preto bude užšie a dlhšie U. Ale myslím,že 20m2 na kuchyňu a jedáleň nie je veľa. V tomto dennom priestore budete všetci najčastejšie,radšej preto viac ako menej. Ale to je môj názor. Závisí to aj od budgetu,každý m2 stavby cca 800-1000€ navyše.
Odpovedať
@siska1313 nejde mi pridat fotku..vedla je hned obyvacka 30m2 .. pred tym bola 3,6x6,8 ale mne dom skracovali a rozsirovali..Skusim pridať z domu fotku
Odpovedať
@martina151515 a koľko by navrhoval manžel? Lebo kto často varí,musí sa v kuchyni cítiť dobre. Ak k tomu potrebuje väčší priestor,a samozrejme,na to má,išla by som do väčšej dennej časti,aj na úkor nočnej časti.
Odpovedať
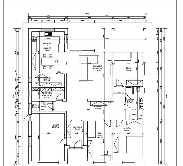
@siska1313 no ja chcem aby sa projekt upravil a kuchyňa bola 6x4.. on by to chcel ponechať na 4x5.. izby su tam 14,17 a 17m2..zmensit sa nedaju nijak .. a obyvacka 30m2 je ok?
Odpovedať
Povodna obyvacka 5050x6850,kuchyňa 3600x6800.. Nova obývačka 5700x5510, kuchyňa 4000x5000
Odpovedať
@martina151515 kuchyňu s jedálňou určite 6x4
Odpovedať
Profilova fotka
Chcelo by to asi fotku projektu alebo coho, aby sme si vedeli predstavit to rozdelenie a po pripade ti poradit, co by bolo v tomto pripade to najalepsie. Ako nemusi to byt malo, pokial sa s tym umiestnenim linky a stolu poriadne vyhras ;-)
Odpovedať

Odpovedať
@martina151515 pokiaľ je to takto navzájom otvorené, tak je to podľa mňa postačujúca plocha. Avšak kuch. linku by som umiestnila do ľavého roha od vstupu do komory, lepší prístup.. a jedal. stôl tam kde je linka, ako je okno hore
Odpovedať
@janetbla ja praveze chcem mat stol hentak,ked bude oslava nejaka alebo nieco a nebude miesto na gauci tak aby mohli sediet pri stole a neboli vopchati niekde v kute
Odpovedať
@martina151515 podľa mňa 20m2 ani nie je málo na kuchyno-jedalen, ibaže rozmer 4x5m nie je vhodný. Vďaka takmer štvorcovemu pôdorysu zostávajú nevyužité m2. Oplatilo by miestnost predĺžiť a prípadne zúžiť, ak nechcete pridávať m2. V tejto situácii by som navrhla zrušiť komoru. Ale asi ju chcete, tak potom by som komore dala rozmer 2,9x2m s tým, že by som ju otočila (dlhšia strana k obv. stene domu). Linka tam kde je, dvere do komory od linky (na stene dlhej 2m) a stôl by bol vedľa komory. Priestor by bol viac otvorený. Čo vy na to?
Odpovedať
@zltalienka to sa mi celkom pozdáva toto,len či aj mati? Kuchyňa 4x5m nie je aspoň pre mňa dobrá z jediného dôvodu,že teraz takú mám a strašne sa tam nabeham. Ja by som ju zuzila a predlzila.
Odpovedať
@zltalienka praveze viem jedine spravit to ze bude mat 4x6 ale z tych4 nevieme ubrat.. neda sa to zuzit lebo 4 metre ma garaz a ide do zarovno
Odpovedať

Odpovedať
@martina151515 ja by som to urobila tak,že z tej strany kuchyne,kde je prechod do jedalne,by som dala ešte spodné skrinky,predĺži sa pracovná plocha,uzavrie sa kuchyňa,zmenši vnútorný priestor,čiže bude menej behania,a popred chladničku nechať cca meter na vstup do kuchyne. Jedalensky stôl otočiť po dĺžke a oprieť ho o linku,o tú časť,čo som ti tam teraz pristavila. Ale tá komoda by tam už asi nevosla.
Odpovedať
@martina151515 a rozmery by som potom nechala ako sú
Odpovedať
Článok sa načítava...
ako podľa mňa to je dostatočný ale keď ho chcete zväčšiť tak sa to dá a to špajzu zúžiť o 30cm a dať regál iba jednu stranu podľa mňa aj pri 1,45m ho dáte iba jednu stranu a pri dĺžke 4m stačí na regál iba na jednej strane. Potom spojiť WC a technickú a zrušil by sa potom ten výklenok a mohla by sa potom a technická zúžiť o 30cm a pritom by mala rovnaké štvorcové metre a kuchyňa by bola o 60cm dlhšia. Možno aj zmenšiť o 60cm ten prechod do kuchyne a mate o jednu skrinku naviac. Ale čo sa mne nepáči je obývačka má síce dosť m2 ale tým že sa tam prechádza do kuchyne a terasu tak tam musí zostať cestička aspoň 1,5m čo vám z nej zoberie aspoň 9m2 a hneď bude malá aj keď rozmerovo je veľká
Odpovedať
@martina151515 komoru by som skúsila presunúť k vonkajšiemu múru vpravo ako je terasa, jedálenský stôl by bol posunutý smerom dole...a nevznikne ulička za sedačkou ... či ?
Odpovedať
@jumt manzel nechce dat wc do technickej.ze ako to bude ked pride domov pojde z garaze (povodne bol vchod z garaze cez technickú) a niekoho prekvapi na wc..jedine tu technicku a spajzu nejak inak otočiť..zbytocne to ma 4m
Odpovedať
@martina151515 asi bude od garáže, cez TM a komoru až ku kuchyni nosná stena, preto je všade rovnako 4m. Možno by sa to dalo poriešiť prekladom, aby nemuseli mať TM a komora práve 4m. Ale teraz je už vchod z garáže do zadveria, tak môžte nejak pospekulovat so zmenou WC, TM a komory. Vy viete najlepsie, kde potrebujete koľko m2 a aky rozmer potrebujete.
Odpovedať
@martina151515 priestor kuchyne 4x5m s jedálňou je úplne v pohode, trochu sa treba pohrať s ergonómiou a dokonca by som si tam dovolil umiestniť pracovný ostrov (bez ktorého si už dnes kuchyňu ani neviem predstaviť) a radšej skrátil kuch. linku na tej najkratšej stene okná posúvať môžeš tiež nie?. Pri pohľade na pôdorys by som tam nemal problém umiestniť dlhý stôl pre aspoň 10 osôb, ale vidím že projekt priestorom dosť mrhá tam kde ho netreba, napr. v strede domu máš dve kuchyne hluchého priestoru, ale pri 200tis. domoch toto nerobí problém.
Odpovedať
aby som to uviedla na spravnu mieru.. ten "projekt" je len nacrt od manzelovho znameho.. nie je to projekt od projektanta.. je tam dany nabytok len tak provizorne aby sme si to ako tak vedeli predstavit ale kuchynu by som najradsej dala inak ako je tam nakreslena.. Chcem pocut od Vás ci mate nejake napady ako vyuzit najlepsie tych 4x5m.. ci sa tam da nieco vobec vykuzlit lebo cim viac hlav tym viac napadov
Odpovedať
videla som original projekt aj fotky z interieru a bolo to velmi pekne ale nemali tam spajzu tak my sme tam tu spajzu dopnili,vysunuli kuchynu a tym padom nam nebudu vidiet susedia na terasu ( susedia su socialne zariadenie)
Odpovedať
Profilova fotka
Moja kuchyna s jedalnou je 3,8x5,6m,a bohate staci na linku do G a stol 1,8x0,9m...linku mam od chladnicky 1,2x3,8x2,6x1,65poloostrovcek pri ktorom mam 2 stolicky,je tam plno miesta na prechadzanie ako popri stole tak popri ostrovceku,myslim si,ze 4x5m bude stacit ak nechcete poloostrov
Odpovedať
@szivem vedeli by ste mi to odfotit prosim? ak Vam to teda nevadi,ze by som nahliadla do Vášho sukromia..kludne aj do ip
Odpovedať
Profilova fotka
@martina151515 samozrejme
Odpovedať
Profilova fotka
A z druhej strany
Odpovedať
Profilova fotka

Odpovedať
@szivem krásna kuchyňa😊
Odpovedať
Profilova fotka
@siska1313 dakujem,este nemame zastenu,lustre a stol so stlickami ,ale pomalicky robime...snivala som o nej 3roky a sen sa splnil
Odpovedať
1
Na pridanie príspevku sa musíte prihlásiť.
Presunutím fotiek môžete zmeniť ich poradie

Nenašli ste čo ste hľadali?