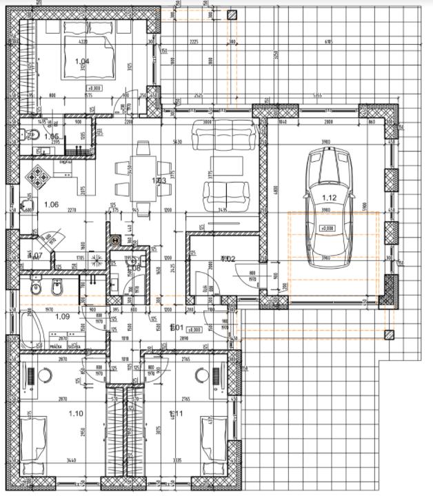
Postupne budem pridávať fotky krok za krokom :) 9/2019 - Kúpa pozemku 610 m2 v Lipt. Štiavnici (okres Ružomberok) 11/2020 - Realizácia projektu 12/2020 - Žiadosť o stavebné povolenie 4/2021 - Terénne úpravy 5/2021 - Právoplatné stavebné povolenie…
Postupne budem pridávať fotky krok za krokom :) 9/2019 - Kúpa pozemku 610 m2 v Lipt. Štiavnici (okres Ružomberok) 11/2020 - Realizácia projektu 12/2020 - Žiadosť o stavebné povolenie 4/2021 - Terénne úpravy 5/2021 - Právoplatné stavebné povolenie 6,7/2021 - Realizácia základov 8/2021 - Nopova fólia, hydroizolácia 9/2021 - Konečne Ytong, stavba múrov 10/2021 - Šalovanie + armatúra venca 11/2021 - Zalievanie venca 12/2021 - Realizácia strechy na kľúč