Dĺžka vetvy v podlahovom kúrení

Profilova fotka
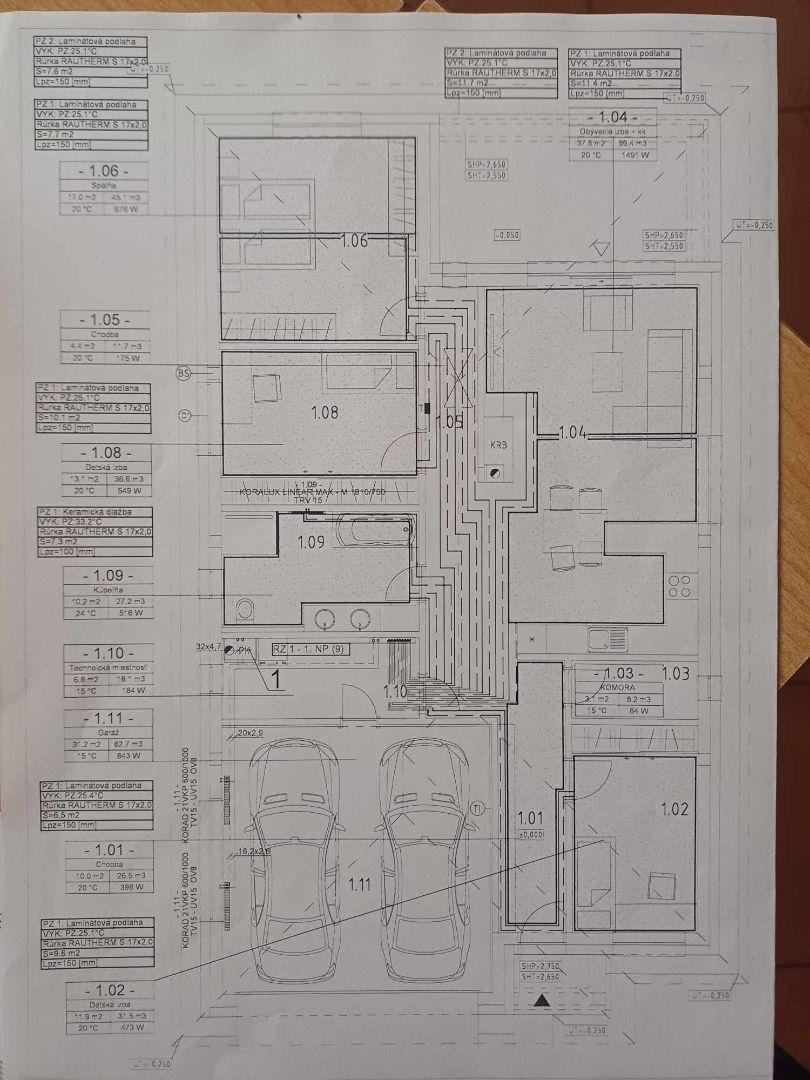
Dobrý deň, chcela by som vás poprosiť o odbornu radu. Pri pokládke podlahového kúrenia nám vyšli vetvy rôzných dľžkách od 59 do 115 m. 1.vetva - 102m 2.vetva - 114 m 3.vetva - 77 m 4.vetva - 115 m 5.vetva - 94 m 6.vetva - 70 m 7.vetva - 95 m 8.vetva - 59 m Otázka je či dlhé okruhy nebudú robiť problém? Máme tam 9 okruhový rozdelovač. Potrubie je REX-AL-PEX 16x2 mm. Do rozdelovača podlahovky nám dali aj čerpadlo. Podlahové kúrenie robí nám jeden kúrenár ale jeho prácou nie sme až tak nadšení a preto sa pýtame. Za každú jednu radu vopred ďakujem.
Odpovedať
1
2
V rozdielnych dĺžkach problém nevidím, to sa dá vyregulovať. Otázka je, či k tomu máte nejaký výpočet, projekt, alebo to valí od oka. Kúrite čím? Zateplená novostavba, alebo nejaká prerábka...?
Odpovedať
Inak aspon na prívody mohol dať teda husí krk... Takto spiatočky ochkadzujú prívody hneď pri rozdeľovači, to sa tak nerobí. A kontrolujte si, či niekde nezalomil trubku.
Odpovedať
Profilova fotka

Odpoveď na príspevok od kejsix:

V rozdielnych dĺžkach problém nevidím, to sa dá v…
@kejsix Ide o novostavbu - bungalov. Projekt máme ale až teraz sme si všímli, že kúrenár až tak neide podľa projektu. :-( Kúriť budeme pylnom. Prikladám aj projekt. Ďakujem
Odpovedať

Odpoveď na príspevok od tundehegedus:

@kejsix Ide o novostavbu - bungalov. Projekt mám…
@tundehegedus aj ste to s nim riesili? V akom štádiu stavby ste?
Odpovedať
Profilova fotka

Odpoveď na príspevok od cukrik25:

@tundehegedus aj ste to s nim riesili? V akom štá…
@cukrik25 Okná a dvera už máme. Voda a elektro tiež. Akurát teraz robia na podlahovom kúrení. Potom by sme chceli ( ale už len okolo marca keď bude lepšie počasie) vyliať podlahu cementovým poterom. My sme už s ním to začali riešiť ale že je to v poriadku a že sa nemusíme bať .
Odpovedať

Odpoveď na príspevok od tundehegedus:

Dobrý deň, chcela by som vás poprosiť o odbornu r…
@tundehegedus nejde ani tak o to, či to bude stíhať kúriť. Pri dobrom zateplení to bude, no ten najdlhší okruh je už dosť cez. Pri týchto okruhoch mohla byť použitá skôr rurka 17x2. Problém bude hydraulicky to vyregulovať, keďže v dlhých okruhoch bude veľký odpor prúdenia. Minimálne tie okruhy 100m a viac mali byť rozbité na 2 okruhy každý. Keď to budete regulovať, odporúčam použiť infra teplomer a merať teplotu na spiatočkach. Mala by byť na každej rovnaká. Vtedy to bude rovnomerne kúriť.
Odpovedať

Odpoveď na príspevok od wilson1281:

@tundehegedus nejde ani tak o to, či to bude stíh…
@wilson1281 Mám dve podlažia 6+6okruhov 50-120m a kotlové čerpadlo nemá najmenší problém, funguje to asi 7-8 rokov...
Odpovedať

Odpoveď na príspevok od tundehegedus:

@cukrik25 Okná a dvera už máme. Voda a elektro t…
@tundehegedus Pre plynové kurenie je to čerpadlo v rozdeľovači úplne zbytočné! Zbytočne ho zaplatíte, bude žrať elektrinu, môže sa pokaziť. Ten chlap je diletant.
Odpovedať

Odpoveď na príspevok od kejsix:

@wilson1281 Mám dve podlažia 6+6okruhov 50-120m a…
@kejsix to,že niečo funguje u teba neznamená, že to bude fungovať aj u iného. Máš dve podlažia, oni majú bungalov. Už tam je rozdiel hneď na začiatku. Ja mám Octaviu, ty máš Vitaru. Obaja máme auto. Budeme mať tým pádom rovnakú spotrebu, že?
Odpovedať

Odpoveď na príspevok od wilson1281:

@kejsix to,že niečo funguje u teba neznamená, že …
@wilson1281 Veď práve, že ja mám tie tlakové straty väčšie, než budú mať oni 😀 Taktiež u kamaráta sme robili 250m2 jedno podlažie 13 slučiek pexa 16*2 80-130m dĺžky a všetko funguje piatym rokom. Tak načo strašiť. 115m bez problémov
Odpovedať
Profilova fotka

Odpoveď na príspevok od wilson1281:

@tundehegedus nejde ani tak o to, či to bude stíh…
@wilson1281 Bohužiaľ ale spoliehali sme sa na kúrenára, boli sme v tom, že vie čo robí :-( ale asi nie.... v projekte máme tiež navrhnutá rúrka 17x2 mm
Odpovedať

Odpoveď na príspevok od kejsix:

@wilson1281 Veď práve, že ja mám tie tlakové stra…
@kejsix píšem o regulácii. Čerpadlo to samozrejme utiahne a majú tam aj prídavné. Ja mám napríklad okruhy 60-80 m bez projektu. Na prvýkrát nastavené, viac som s tým nikdy nič nerobil a funguje na 100%. Kúriť im to bude, to píšem hneď v úvode. Ide o reguláciu a mohlo to byť aj lepšie a jednoduchšie spravené. Nestraším, kúriť to bude.
Odpovedať

Odpoveď na príspevok od tundehegedus:

@wilson1281 Bohužiaľ ale spoliehali sme sa na kú…
@tundehegedus kúriť vám to bude.
Odpovedať

Odpoveď na príspevok od kejsix:

@tundehegedus Pre plynové kurenie je to čerpadlo …
@kejsix No ale pred čerpadlom je tuším štvorcestný zmiešavací ventil. Mňa by skôr zaujímalo načo tam je. A kvôli tomuto ventilu je pred rozdeľovačom podlahovky to čerpadlo. Systém má dva teplotné spády? Podlahovka iný ako tie dva radiátory v garáži?
Odpovedať
Profilova fotka

Odpoveď na príspevok od toky1:

@kejsix No ale pred čerpadlom je tuším štvorcestn…
@toky1 Budeme mať kombináciu radiátory a podlahovka. Nakoľo kombinacia radiatory/podlahovka vyžaduje dve rozdielne teploty vykurovacej vody kúrenár nám to tak vysvetloval, že ten čerpadlo v rozdeľovači bude len na podlahové kúrenie a zaisťuje obeh vody. Pred čerpadlom je štvorcestný zmiešavaci ventil a ten umožňuje presné nastavenie teploty. Voda do radiatorov pôjde priamo z kotla.
Odpovedať

Odpoveď na príspevok od tundehegedus:

@toky1 Budeme mať kombináciu radiátory a podlaho…
@tundehegedus Tak ale to je zásadný rozdiel... Radiátory do novostavby sú ťažký stredovek a čo jr horšie, posunú pracovný bod kotla do výrazne horšej efektivity prevádzky, než podlahovka všade. Zlé rozhodnutie.
Odpovedať
Článok sa načítava...

Odpoveď na príspevok od kejsix:

@tundehegedus Tak ale to je zásadný rozdiel... Ra…
@kejsix Ak im bude aj do radiatorov stacit voda do 50 stupnov,nebude to s tou ucinnostou taka katastrofa
Odpovedať

Odpoveď na príspevok od tundehegedus:

@toky1 Budeme mať kombináciu radiátory a podlaho…
@tundehegedus Ak ide len o tie dva radiátory v garáži tak ich dajte vo veľkosti nadimenzovanej na rovnaký teplotný spád ako podlahovku a nemusíš mať dva okruhy vykuovania s rozličným teplotným spádom.
Odpovedať

Odpoveď na príspevok od dusan72:

@kejsix Ak im bude aj do radiatorov stacit voda d…
@dusan72 ak ... no a ak sa rozhodnu prejsť časom pre cenu plynu na TČ, tak ich môžu rovno odstaviť a na garáž namontovať na kúrenie klimu. A to sa oplatí.
Odpovedať
Profilova fotka
@tundehegedus - nahrajte projekt vykurovania tak, aby sa to dalo citat, lebo ked to nahrate ako JPG, tak to citatelne nie je. Skuste napr. ako PNG, tak to funguje ( pozn. @admin - toto je dalsia vec na riesenie) K zapojeniu: - ten 4 cestny ventil s pomocnym cerpadlom su tam UPLNE zbytocne, radiatory by pre spad 40/30 stacili aj pre garaz, ale to sa da overit vypoctom - ci su jednotlive vetvy OK aj pre 120m2 zavisi, ake tepelne straty pre jednotlive miestnosti mate. Ak ste na A0, malo by to vyjst (ak teda nie ste niekde v 500mnm na veternom vrsku) Slusne povedane, najdite si ineho kurenara alebo si zavolajte niekoho kto tomu rozumie, pretoze Vas kurenar zjavne nie. Problem je, ze tieto blbosti platite. Privod kotol<>rozdelovac je aky (skuste odmerat cm sirku rurky), tam moze byt dalsi problem. Pre tento typ domu bohato staci kotlove cerpadlo, netreba ziadne mixy.
Odpovedať
Profilova fotka

Odpoveď na príspevok od toky1:

@tundehegedus Ak ide len o tie dva radiátory v g…
@toky1 áno len v garáži a kúpelni budeme mať radiátory. V garaži klasický dvojpanelový a kúpelni rebríkový.
Odpovedať
Profilova fotka
@tundehegedus nahravate TEN ISTY obrazok ako JPG. Musite ho niekde na PC prekonvertovat na GIF alebo PNG a nahrat tak. Modrastrecha JPG nahrava zle.
Odpovedať

Odpoveď na príspevok od tundehegedus:

@toky1 áno len v garáži a kúpelni budeme mať ra…
@tundehegedus v projekte ak ma zrak neklame máš kúpelňový rebrík napojený na rozdeľovač podlahovky. Prečo nedáte aj do garáže podlahovku?
Odpovedať

Odpoveď na príspevok od mgx:

@tundehegedus nahravate TEN ISTY obrazok ako JPG.…
@mgx https://static.4nets.sk/photo/12/5235... staci upravit link...
Odpovedať
Profilova fotka

Odpoveď na príspevok od toky1:

@tundehegedus v projekte ak ma zrak neklame máš k…
@toky1 v projekte možno áno ale v skutočnosti to spravil inak... rura ide priamo do kotla...
Odpovedať
Profilova fotka
@minoo dik, okruhy vychadzaju. @tundehegedus ak si nechate "rovnakeho" kurenara, strazte si s akym typom kolta pride. Predpokladam ze s nejakou starou haraburdou so spodnym vykonom 7kw a viac. Vtedy ho rovno poslite doprec....
Odpovedať
Profilova fotka
@tundehegedus garaz prerobte na podlahovku a rebrik v kupelni prerobte na tepelnu patronu. Ak vam nevadi, ze radiator bude mat len 40c, da sa pripojit aj na podlahovku. 4cestny ventil a tieto rozvody sa mozu zrusit. Je velky rozdiel kurit v KK na spade 50/40-30 a 40/30. V spotrebe.
Odpovedať

Odpoveď na príspevok od tundehegedus:

@toky1 v projekte možno áno ale v skutočnosti to…
@tundehegedus skús zmerať priemer rúrok od kotla. Vidia sa mi volajaké tenké.
Odpovedať
uz len dufat, ze to dobre zalisoval aspon... ale jak vidim ppr, tak ...
Odpovedať

Odpoveď na príspevok od cukrik25:

@tundehegedus aj ste to s nim riesili? V akom štá…
@tundehegedus tym padom nic nieje stratene, prerobit ako pise @mgx, takto ako to mate je to zbytocne komplikovane
Odpovedať
1
2
Na pridanie príspevku sa musíte prihlásiť.
Presunutím fotiek môžete zmeniť ich poradie

Nenašli ste čo ste hľadali?