O nás
Staň sa PRO!
Modrastrecha.cz
Mojasvadba.sk
Beremese.cz
Záhrada.sk
Mojdom.sk
Fórum
Fotoblogy
Bazár
Profesionáli
Magazín
Zadajte hľadaný výraz
Prihlásenie / Registrácia
Fórum
Kategórie
Najnovšie diskusie
Kde sa diskutuje
Kam som prispel
Sledované diskusie
Sieň slávy
Fotoblogy
Všetky príspevky
Môj výber
Priatelia a obľúbené
Zoznam skupín
Moje skupiny
Kolekcie
Inšpirácie
Bazár
Všetky inzeráty
Môj bazár
Profesionáli
Všetci Profesionáli
Inzeráty Profesionálov
Magazín
O nás
Zadajte hľadaný výraz
Arch. štúdia + vizualizácie
🌎 Verejný
8
22.06.2022
VYBRALI SME!
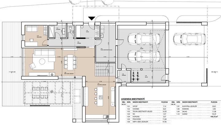
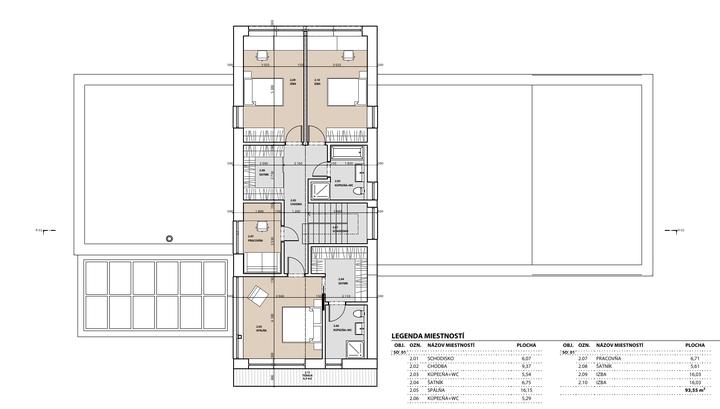
Architektonická štúdia spolu s vizualizáciami nášho budúceho domu. Výstavba naplánovaná na jar 2023.
maros5757
2 albumy
Ďalšie albumy
Zobraziť od najnovších
2
1
4
1
1
2
1
12
Páči sa mi to
Komentovať
Komentáre k albumu:
maros5757
2 albumov
Ďalšie albumy
x
x
Hľadať ďalšie diskusie
Hľadať ďalšie albumy
Zobraziť ďalšie články